Dolce Udomsuk คอนโด Low Rise สูง 7 ชั้น โครงการใหม่จาก SIRAYOS GROUP บนถนนสุขุมวิท 103/2 ใกล้รถไฟฟ้า BTS สถานีอุดมสุข
รายละเอียดโครงการ
- ราคาเริ่มต้น ประมาณ 2 ล้านบาท
- ราคาต่อตารางเมตร ประมาณ 85,000 บาท
- เจ้าของโครงการ Sirayos Co., Ltd.
- ลักษณะคอนโด Low Rise สูง 7 ชั้น 1 อาคาร
- จำนวนห้อง 79 ยูนิต
- เนื้อที่ทั้งหมด 0-3-11 ไร่
- ที่จอดรถทั้งหมด ประมาณ 30 คัน ในช่องจอด (คิดเป็น 40%)
- ที่ตั้งโครงการ ซอยสุขุมวิท 103/2 ถนนสุขุมวิท แขวงบางนา เขตบางนา กรุงเทพฯ
- เริ่มก่อสร้าง ปี 2558
- ปีที่สร้างเสร็จ ปี 2559
สถานที่สำคัญใกล้เคียง
- BI-TEC บางนา
- เซ็นทรัล บางนา
- บิ๊กซี
- Berkeley international school
- โรงพยาบาลไทยนครินทร์
ลักษณะห้องและขนาดห้อง
- 1 ห้องนอน ขนาดเริ่มต้น 31 ตารางเมตร
- 2 ห้องนอน ขนาดเริ่มต้น 67 ตารางเมตร
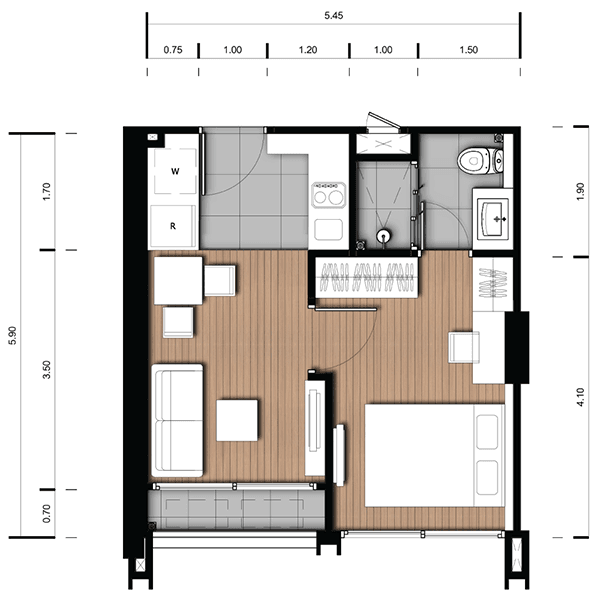
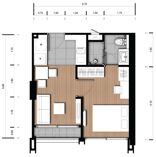
Type A1-1 ขนาด 31.21 ตารางเมตร
Type A1-2 ขนาด 30.59 ตารางเมตร
Type A1-3 ขนาด 31.10 ตารางเมตร
Type A1-4 ขนาด 31.08 ตารางเมตร
Type A1-5 ขนาด 31.90 ตารางเมตร
Type A1-6 ขนาด 31.10 ตารางเมตร
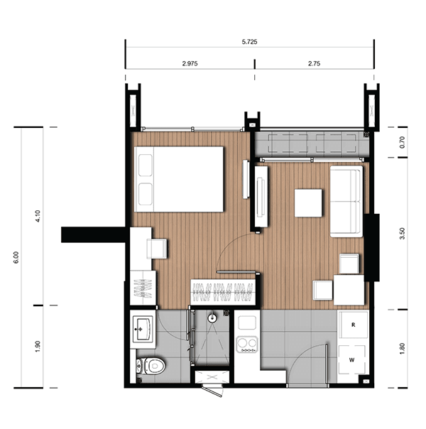
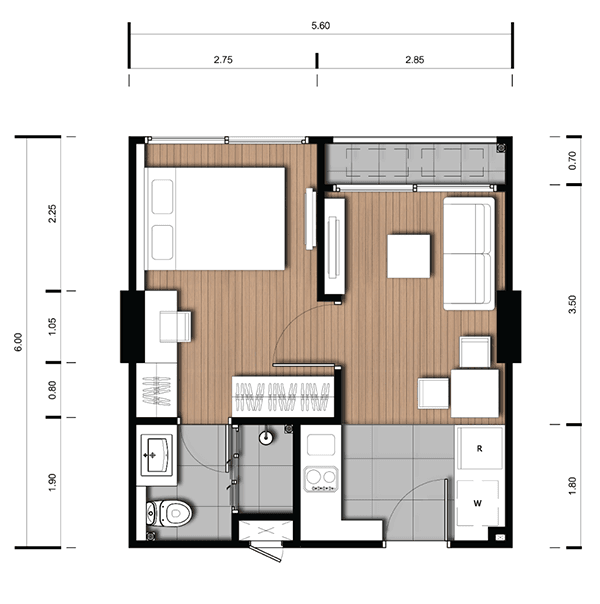
Type A2 ขนาด 30.67 ตารางเมตร
Type A3 ขนาด 33.55 ตารางเมตร
Type A4 ขนาด 66.76 ตารางเมตร
สิ่งอำนวยความสะดวก
- สระว่ายน้ำ ระบบเกลือ ความยาว 13 เมตร
- Fitness
- ห้องนั่งเล่น (ล็อบบี้และห้องสมุด)
- ระบบรักษาความปลอดภัย 24 ชั่วโมง
CCTV
- Key card access control
สอบถามรายละเอียดเพิ่มเติม โทร : 02-399-2220-1
ดูรายละเอียดเพิ่มเติม : www.dolcecondo.com