

รีวิวฉบับนี้เราจะพาไปดูโครงการ Silk Phaholyothin 9 คอนโดมิเนียม Low Rise สร้างเสร็จพร้อมอยู่ในซอยพหลโยธิน 9 หนึ่งในทำเลที่อยู่ระหว่างรถไฟฟ้า BTS สถานีอารีย์ และสะพานควาย และมีบรรยากาศเงียบสงบเหมาะกับการพักผ่อนอาศัยด้วย

การเดินทาง
ตัวโครงการ Silk Phaholyothin 9 ตั้งอยู่ลึกเข้ามาในซอยพหลโยธิน 9 อีกประมาณ 400 เมตร และถ้านับจากปากซอยไปยังสถานีรถไฟฟ้า ก็อยู่กึ่งกลางระหว่างสถานีรถไฟฟ้าอารีย์และสะพานควายพอดี เพียงแต่ถ้าเลือกลงที่สถานีรถไฟฟ้าอารีย์ แล้วขึ้นรถต่อมายังโครงการก็จะสะดวกและง่ายกว่า เพราะเลือกได้ทั้งรถเมล์ รถแท็กซี่ หรือมอเตอร์ไซค์รับจ้างก็ได้ ถ้าอยากออกกำลังกายก็ออกแรงเดินกันได้เลยครับ ระยะเดินเรียกเหงื่อได้กำลังดี เพราะอากาศบ้านเราแดดร้อนได้ที่ แต่จริงๆ แล้วทางเดินในซอยพหลโยธิน 9 ก็ร่มรื่นดีนะครับ
ถนนในซอยมีรถผ่านเข้าออกมากหน่อยเนื่องจากเป็นซอยที่เชื่อมต่อไปได้ทั้งซอยพหลโยธิน11 ถนนประดิพัทธ์ ซอยพหลโยธิน 7 (ซอยอารีย์) หรือจะออกพระราม 6 หนีไปขึ้นทางด่วนก็ได้เช่นกัน และถ้าออกไปตรงแยกสะพานควาย ก็เลี้ยวไปสุทธิสาร ออกถนนวิภาวดีรังสิตได้ด้วย ดังนั้นถ้าใครที่ใช้รถส่วนตัวเป็นหลักก็ถือว่าสะดวกดีใช้ได้เลยทีเดียว เว้นเสียแต่ปัญหารถติดบนถนนรอบๆ บริเวณนี้ที่ติดหนักเอาเรื่อง ยิ่งในช่วงเช้าและเย็นนี่ปริมาณรถแน่นขนัดติดยาวหายห่วงไปเลย ดังนั้นเส้นทางลัดเลาะในซอยแถบนี้จึงค่อนข้างจำเป็นครับ เอาไว้หนีช่วงเวลารถติดหนัก ส่วนถ้าใครเลือกจะใช้บริการรถสาธารณะ ระบบขนส่งมวลชนอื่นๆ ก็มีรถเมล์ผ่านบนถนนพหลโยธินหลายสายมากๆ ป้ายรถเมล์ก็อยู่ถัดไปตรงหน้าตึกชินวัตร 2 เลยปากซอยพหลโยธิน 9 ไปนิดเดียวเอง

แผนที่การเดินทางรอบๆ โครงการ

การเดินทางวันนี้เราเดินทางด้วยรถไฟฟ้า BTS นะครับ มาลงที่สถานีอารีย์

ถึงอารีย์แล้ว ถ้าหันหน้าไปทางสะพานควาย ด้านขวามือจะเห็น La Villa อารีย์ คอมมูนิตี้ มอลล์ เล็กๆ ที่รวมร้านอาหาร ร้านค้า ต่างๆ

เราจะลงทางออกที่ 3 ฝั่งซอยอารีย์นะครับ ทางออกที่ 4 จะลงฝั่ง La Villa อารีย์

จากนั้นเราเดินต่อไปทางสะพานควาย ผ่านซอยอารีย์ ถ้าเดินไม่ไหว จะมีวินมอไซค์ไว้คอยให้บริการอยู่ตรงปากซอยอารีย์เพียบเลยครับ


ฟุตบาททางเดินกว้างขวางเดินได้สะดวกดีครับ

แถวนี้จะมีอาคารสำนักงานและหน่วยงานราชการอยู่หลายที่เลยนะครับ เลยจาก BTS มานิดเดียวจะเห็นอาคาร IBM อยู่ฝั่งตรงข้าม

ติดกับอาคาร IBM จะเป็นธนาคารกสิกรไทย สำนักพหลโยธิน



เดินมาอีกจะเจอกองบัญชาการตำรวจตระเวนชายแดน

อาคารพหลโยธิน เพลส และอาคารชินวัตร 1 อยู่หน้าปากซอยพหลโยธิน 8

2 ข้างทางมีต้นไม้เขียวขจีดูร่มรื่นดีครับ ถ้าอากาศไม่ร้อนจนละลายก็น่าเดินอยู่นะ

ถัดมาอีกหน่อยจะเจอโรงพยาบาลประสานมิตร หรือโรงพยาบาลปอดกรุงเทพ




เดินมาเรื่อยๆ ก็ถึงแล้วล่ะครับซอยพหลโยธิน 9


มี 7-11 อยู่ปากซอยให้ได้ฝากท้องกันด้วย

อีกฝั่งจะเป็นอาคารชินวัตร 2

ตอนเราไปทำการรีวิวเป็นช่วงบ่ายๆ รถก็เริ่มติดกันแล้วนะครับ


อาคาร EVS อยู่ตรงข้ามกับอาคารชินวัตร 2

มีร้านขายอาหารสำหรับชาวออฟฟิศแอบอยู่ข้างๆ ตึก

ภายในซอยเงียบสงบดีครับ รถราไม่ค่อยมีวิ่งพลุกพล่านเท่าไหร่ เนื่องจากซอยนี้เป็นซอยตัน

ซอยชำนาญอักษร ซอยนี้สามารถลัดเลาะไปเข้าซอยอารีย์ 4 ฝั่งเหนือ เพื่อไปออกซอยพหลโยธิน 7 หรือซอยอารีย์ได้

ถึงแล้วครับ Silk Condo อยู่ด้านซ้ายมือ

พอเรามาถึงคอนโด ฝนก็เทลงมาพอดี

ที่จอดรถจะอยู่ใต้อาคารเลยนะครับ
วิเคราะห์รอบโครงการ
เรามาดูบรรยากาศพื้นที่รอบๆ โครงการกันดูบ้าง เริ่มจากทางฝั่งอารีย์ พอลงสถานีรถไฟฟ้ามาก็จะพบกับความอุดมสมบูรณ์ขั้นสุด เพราะเต็มไปด้วยร้านค้า ร้านอาหาร ซุปเปอร์มาร์เก็ต แหล่งช๊อปปิ้ง ตั้งแต่ร้านแบกะดิน ร้านฮิปๆ อินเทรนด์ ไปจนถึงร้านหรูหราไฮโซ (คลิกไปดูรีวิวทำเลแถบซอยอารีย์ได้ที่นี่ครับ) เลือกเอาได้ตามสไตล์เลยครับ เช่นเดียวกันกับทางฝั่งสถานีรถไฟฟ้าสะพานควาย ความอุดมสมบูรณ์ก็ไม่แพ้กันเลย ด้วยความเป็นย่านชุมชนเก่าด้วย ร้านอาหารเก่าแก่ที่เปิดกิจการกันมานานก็เยอะ ร้านใหม่ๆ ไม่น้อย อยู่ย่านนี้ไม่ต้องกลัวอดครับ
นอกเหนือจากเรื่องอาหารการกินที่เราสามารถฝากท้องไว้ได้แล้ว เรื่องสาธารณูปโภคต่างๆ ก็ครับครันไม่แพ้กัน บริเวณนี้มีโรงพยาบาลหลายแห่ง ทั้งโรงพยาบาลรัฐ โรงพยาบาลเอกชน และโรงพยาบาลเฉพาะทาง รวมถึงหน่วยงานราชการ อาคารสำนักงานใหญ่ๆ สถาบันการเงิน และสถาบันศึกษาก็รายล้อมอยู่รอบๆ บริเวณนี้ด้วย ยิ่งถ้าใครที่ต้องทำงานในย่านนี้อยู่แล้วก็ยิ่งเหมาะมากๆ เพราะคงคุ้นชินกับพื้นที่ดีว่าอะไรอยู่ตรงไหน ต้องหาเส้นทางเลี่ยงรถติดยังไง เป็นต้น พอขยับเข้ามาใกล้ที่ตั้งโครงการอีกหน่อย ก็จะเห็นว่าบริเวณปากซอยพหลโยธิน 9 มีบรรยากาศคึกคักมากๆ โดยเฉพาะในช่วงกลางวันของวันทำงาน เพราะตรงปากซอยมีอาคารชินวัตร 2 ซึ่งเป็นอาคารสำนักงานขนาดใหญ่ ตอนพักกลางวันคนจะเยอะมากๆ ร้านอาหารรถเข็นแผงลอยจึงมีให้เห็นเพียบ โดยเฉพาะช่วงปากซอยจะมีรถเข็นขายอาหารเรียงรายกันยาวเหยียด แต่พอช่วงบ่ายแก่ๆ ก็จะเริ่มทยอยเก็บร้านกันแล้ว เหลือก็แต่ร้านสะดวกซื้อตรงปากซอยที่เปิดให้บริการ 24 ชั่วโมง ซึ่งเป็นทีพึ่งพายามฉุกเฉินได้เป็นอย่างดี
บรรยากาศในซอยพหลโยธิน 9 โดยรวมแล้วค่อนข้างเงียบสงบเหมาะกับการอยู่อาศัยดีที่เดียว เพราะท้ายซอยนี้เป็นซอยตัน แต่ช่วงกลางๆ ซอยจะมีซอยแยกเชื่อมไปออกซอยอารีย์ ซอยพหลโยธิน 11 และถนนประดิพัทธ์ได้ครับ พอเลยช่วงนี้ไปแล้วในซอยก็จะเงียบขึ้นมาทันตา ซึ่งโชคดีที่ Silk Phaholyothin 9 ตั้งอยู่ค่อนไปทางท้ายซอย ลูกบ้านจึงวางใจได้ว่าจะไม่ค่อยมีเสียงรถราดังรบกวนเวลาพักผ่อน อีกทั้งรอบๆ โครงการก็ยังเป็นบ้านเดี่ยวเก่าแก่เกือบทั้งหมด เลยไม่ค่อยมีปัญหาเรื่องการบังวิวห้องพัก เว้นแต่ห้องบนชั้น 2-3 เท่านั้นที่อาจจะถูกบ้านติดๆ โครงการบังวิวมากบ้างน้อยบ้าง ซึ่งก็แล้วแต่ตำแหน่งห้องที่ต้องไปลองเลือกจากห้องจริงกันอีกทีครับ
ในส่วนของพื้นที่ส่วนกลาง ทางโครงการก็จัดสรรมาให้ครบถ้วนทั้งสระว่ายน้ำ ฟิตเนส ห้องสตรีมแยกชายหญิง และสวนหย่อมสำหรับพักผ่อนในบริเวณชั้น 1 โซนด้านหลังของโครงการ โดยที่เวลาใช้งานลูกบ้านจะต้องลงจากลิฟท์ เดินผ่านล็อบบี้ก่อนมาออกประตูอีกด้าน จึงอาจจะไม่ค่อยสะดวกเท่าที่ควร แต่ในขณะเดียวกันขนาดของสิ่งอำนวยความสะดวกส่วนกลางก็ไม่เล็กไม่ใหญ่จนเกินไป น่าจะพอเหมาะกับการใช้งานของลูกบ้านทั้งหมด เหมือนกันกับพื้นที่จอดรถภายในอาคาร ที่ทางโครงการแจ้งไว้ว่าสามารถจอดได้มากถึง 60% ของจำนวนห้องเลยทีเดียว รวมถึงระบบรักษาความปลอดภัยตามมาตรฐานตลอด 24 ชั้วโมง ทั้งกล้อง CCTV และ ระบบ Key Card Access

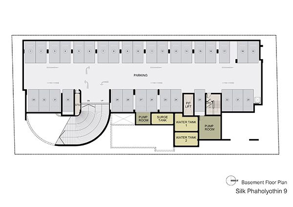
มาเราดูที่แปลนอาคารกันต่อ เริ่มจากชั้น 1 Facility ของโครงการจะรวมกันอยู่ชั้น 1 ทั้งสระว่ายน้ำ, ฟิตเนส และห้องสตรีม โดยส่วนหนึ่งเป็นที่จอดรถและ Lobby

ที่จอดรถจะมี 2 ชั้นนะครับ คือที่ชั้น 1 และชั้นใต้ดิน

ส่วนของห้องพักอาศัยจะเริ่มที่ชั้น 2 ขึ้นไป มีทั้งหมด 13 ยูนิต โดยชั้น 2 จะถูกส่วนของ Facility กินพื้นที่ขึ้นมาถึงชั้น 2 ด้วย แต่ไม่สามารถเข้าจากชั้น 2 ได้นะครับ

ตั้งแต่ชั้น 3 ขึ้นไปจะเป็นส่วนของห้องพักอาศัยทั้งหมด ชั้นละประมาณ 16 ยูนิต

เรามาดูสถานที่จริงกันเลยดีกว่าครับ ว่าจะเป็นยังไงกันบ้าง ตรงนี้จะเป็นที่จอดรถบริเวณชั้น 1

จากลานจอดรถจะมีประตูเข้าตัวอาคาร

ต้องใช้คีย์การ์ดด้วยนะครับ

จะมีลิฟท์ไว้ให้บริการ 2 ตัว

ทางเข้าอีกทางจะผ่านทาง Lobby

Mailbox จะอยู่ที่บริเวณ Lobby

มองตรงผ่าน Lobby ไปด้านหลัง จะเป็น Facility ของโครงการ ใครจะไปใช้ Facility ก็ต้องลงมาที่ชั้น 1 ก่อนนะครับ

ประตูทางออกไป Facility



ขึ้นบันไดมาแล้วจะเจอกับสระว่ายน้ำ




มีสวนหย่อมเล็กๆ อยู่ต่อจากสระว่ายน้ำ

ข้างๆ สระว่ายน้ำจะมีห้องน้ำชาย หญิง

ด้านในจะมีห้องอาบน้ำให้ด้วยนะครับ

ห้องสตรีมจะอยู่ในห้องน้ำ มีเหมือนกันทั้งห้องน้ำชาย ห้องน้ำหญิง

ใกล้ๆ กันจะเป็นห้องฟิตเนส ซึ่งต้องใช้คีย์การ์ดเข้าเหมือนกัน

บรรยากาศในห้องฟิตเนส


มองออกไปเห็นสระว่ายน้ำ

พาชมห้องตัวอย่าง
อย่างที่บอกไปแล้วว่า Silk Phaholyothin 9 สร้างเสร็จพร้อมอยู่แล้ว เราจึงมีโอกาสได้ชมห้องตัวอย่างในอาคารจริง ทำให้เห็นบรรยากาศต่างๆ ชัดเจนยิ่งขึ้น ซึ่ง Layout ของห้อง 1 Bedroom ก็เป็นไปอย่างเรียบง่าย เปิดประตูเข้ามาก็จะเจอกับห้องครัวเปิดที่มาพร้อมกับชุดเคาน์เตอร์ครัว ถัดเข้าไปอีกหน่อยจะเป็นพื้นที่ของ Living Area ติดกับระเบียง พื้นที่ตรงส่วนนี้สามารถตกแต่งเพิ่มเติมได้อีกตามสไตล์ของเจ้าของห้องเลย ซึ่งคนที่มีสไตล์การตกแต่งในใจอยู่แล้ว พื้นที่ตรงนี้ก็จัดได้อย่างเต็มที่เลยครับ


เราเริ่มตั้งแต่หน้าลิฟท์กันเลยนะครับ


ที่ทิ้งขยะจะอยู่ที่หน้าลิฟท์


โถงทางเดินไปสู่ห้องพัก


เมื่อเข้ามาในห้องแล้วมองตรงไปจะเป็นส่วน Living Area

เมื่อมองมาด้านซ้ายมือจะเป็นส่วนของครัวแบบเปิด อยู่ด้านหน้าห้องเลยนะครับ

ตัวท็อปครัวจะเป็นรูปตัว L มีชั้นลอย และตู้เก็บของด้านล่าง

อ่างล้างจานแบบฝัง

เตาไฟฟ้า 2 หัว พร้อมฮูดดูดควันของ MEX


ช่องวางไมโครเวฟจะอยู่ด้านล่าง

เยี่ยงๆ กับครัวจะเป็นพื้นที่สำหรับวางโต๊ะทานอาหาร

พื้นที่ในส่วนของ Living Area ค่อนข้างกระทัตรัตอยู่สักหน่อย ระยะห่างระหว่างทีวีกับโซฟาไม่มากนัก

ระยะห่างของชั้นวางทีวีจากโซฟา

โครงการจะแถมแอร์ให้ 2 เครื่องนะครับ ที่ Living Area กับห้องนอน

ระเบียงจะอยู่ติดกับ Living Area กั้นด้วยประตูกระจกบานเลื่อน 3 ตอน


ความกว้างของระเบียง

คอมเพรสเซอร์แอร์จะติดตั้งไว้ที่ระเบียง มีประตูเหล็กกั้นอย่างมิดชิด


มาต่อกันที่ห้องนอน

จุดเชื่อมต่อของทั้ง 3 ห้อง จะใช้วัสดุปูพื้นคนละแบบกันเลยนะครับ

ในห้องนอนวางเตียง 5 ฟุตกำลังดีครับ มีพื้นที่รอบเตียงนิดหน่อยดูไม่อึดอัด แต่ถ้าใครชอบนอนเตียง King Size ก็มีพื้นที่พอให้วางได้นะครับ

ปลายเตียงเหลือพื้นที่พอให้เดินได้ ถ้าอยากจะดูทีวีในห้องนอน ก็ต้องใช้ทีวีแบบแขวนผนังแล้วล่ะครับ

ข้างเตียงด้านที่ติดกับหน้าต่าง

หน้าต่างในห้องนอนจะเป็นบานเปิด 2 บาน อยู่ด้านซ้าย-ขวา ส่วนที่เหลือเป็นบาน Fix


อีกด้านจะเป็นจุดที่วางตู้เสื้อผ้า

ที่มีให้วางโต๊ะเครื่องแป้งเล็กๆ หน้าตู้เสื้อผ้า

ออกจากห้องนอนมาดูห้องน้ำเป็นห้องสุดท้ายครับ กระจกเงายาวจากอ่างล้างหน้าไปถึงโถสุขภัณฑ์

อ่างล้างหน้าทรงสี่เหลี่ยม มีตู้เก็บของด้านล่าง ของ American Standard

โถสุขภัณฑ์ของ American Standard อยู่ตรงกลางระหว่างอ่างล้างหน้ากับ Shower Box

จุดที่วางเครื่องซักผ้าจะอยู่อีกด้านติดกับ Shower Box

ออกแบบมาได้พอดีกับเครื่องซักผ้ามั่กๆ

ด้านในสุดจะเป็น Shower Box กั้นด้วยกระจกเทมเปอร์


ชุดฝักบัวของ American Standard
