THE ROOM สาทร – เซนต์หลุยส์ : รีวิวคอนโด

การเดินทาง
อ่านรีวิวอื่นที่เกี่ยวกับ
ติดต่อโครงการ


THE ROOM สาทร – เซนต์หลุยส์ (PREVIEW)
THE ROOM สาทร – เซนต์หลุยส์ : รีวิวคอนโด

The Room สาทร – เซนต์หลุยส์ คอนโด High Rise สูง 24 ชั้น โครงการใหม่จาก Land & House บนทำเลใจกลางสาทร เดินทางสะดวกด้วยหลากหลายเส้นทางทั้ง สาทร,จันทน์,นราธิวาส และใกล้ทางด่วนถึง 3 จุด 

รายละเอียดโครงการ

  • ราคาเริ่มต้น 4,500,000 บาท
  • ราคาต่อตารางเมตร ประมาณ 132,000 บาท
  • เจ้าของโครงการ บริษัท แลนด์ แอนด์ เฮ้าส์ จํากัด (มหาชน)
  • ลักษณะคอนโด High Rise สูง 24 ชั้น 1 อาคาร
  • จำนวนห้อง 376 ยูนิต
  • เนื้อที่ทั้งหมด 2 – 3 – 30 ไร่
  • ที่จอดรถ  ประมาณ 70%
  • ที่ตั้งโครงการ ถนนจันทร์ แขวงทุ่งวัดดอน เขตสาทร กรุงเทพฯ
  • ค่าบำรุงส่วนกลาง 50 บาท

สถานที่สำคัญใกล้เคียง

  • โรงเรียนอัสสัมชัญ แผนกประถม
  • โรงพยาบาลเซนต์หลุยส์
  • โรงเรียนเซนต์หลุยส์ศึกษา
  • BTS สุรศักดิ์

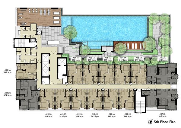
ลักษณะห้องและขนาดห้อง

  • Type 1A – 1D แบบ 1 ห้องนอน 1 ห้องน้ำ  ขนาด 34.2 – 34.9 ตารางเมตร
  • Type 2A – 2D แบบ 2 ห้องนอน 2 ห้องน้ำ  ขนาด 63.8 – 64.3 ตารางเมตร
  • Type 2B แบบ 2 ห้องนอน 2 ห้องน้ำ  ขนาด 66.7 ตารางเมตร
  • Type 2C แบบ 2 ห้องนอน 2 ห้องน้ำ  ขนาด 66.7 ตารางเมตร

สิ่งอำนวยความสะดวก

  • Lobby Lounge
  • Serene Garden
  • Garden Pavilion
  • Swimming pool
  • Fitness
  • Separated male and female
  • Steam room
  • ระบบKey Card ในการเข้าออกทุกทางเข้าและออก
  • พนักงานรักษาความปลอดภัย และ CCTV 24 ชั่วโมง
  • Digital door lock
  • Magnetic door sensor ไฟสว่างเมื่อเปิดประตูเข้าห้อง

สอบถามรายละเอียดเพิ่มเติม โทร : 1198

ดูรายละเอียดเพิ่มเติม : www.lh.co.th

บทความ รีวิวคอนโด ล่าสุด