THE ROOM เจริญกรุง 30 : รีวิวคอนโด

การเดินทาง
อ่านรีวิวอื่นที่เกี่ยวกับ
ติดต่อโครงการ


THE ROOM เจริญกรุง 30 (PREVIEW)
THE ROOM เจริญกรุง 30 : รีวิวคอนโด

The Room เจริญกรุง 30 คอนโด High Rise สูง 23 ชั้น โครงการใหม่จาก Land & Houseบนถนนเจริญกรุง วิวโค้งแม่น้ำเจ้าพระยา ใกล้สถานทูตโปรตุเกส  

รายละเอียดโครงการ

  • ราคาเริ่มต้น 9,000,000 บาท
  • ราคาต่อตารางเมตร ประมาณ 167,000 บาท
  • เจ้าของโครงการ บริษัท แลนด์ แอนด์ เฮ้าส์ จํากัด (มหาชน)
  • ลักษณะคอนโด High Rise สูง 23 ชั้น 1 อาคาร
  • จำนวนห้อง 211 ยูนิต
  • เนื้อที่ทั้งหมด 1 – 3 – 89 ไร่
  • ที่จอดรถ  ประมาณ 80%
  • ที่ตั้งโครงการ ซอยเจริญกรุง 30 ถนนเจริญกรุง บางรัก กรุงเทพฯ
  • ค่าบำรุงส่วนกลาง 55 บาท

สถานที่สำคัญใกล้เคียง

  • สถานทูตโปรตุเกส
  • โรงแรม รอยัล ออคิด เชอราตัน
  • ริเวอร์ซิตี้ ชอปปิ้ง คอมเพล็กซ์
  • โรงเรียนอัญสัมชัญ

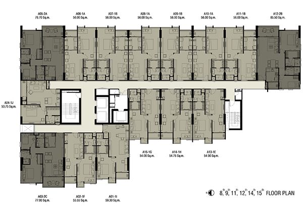
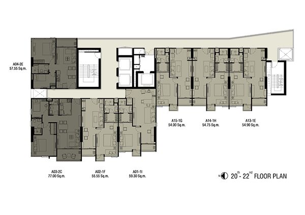
ลักษณะห้องและขนาดห้อง

  • Type 1 C,D แบบ 1 ห้องนอน 1 ห้องน้ำ  ขนาด 54.3 – 56 ตารางเมตร
  • Type 1 G แบบ 1 ห้องนอน 1 ห้องน้ำ  ขนาด 54 – 55.5 ตารางเมตร
  • Type 2B แบบ 2 ห้องนอน 2 ห้องน้ำ  ขนาด 85.5 ตารางเมตร
  • Type 2C แบบ 2 ห้องนอน 2 ห้องน้ำ  ขนาด 76.7 – 77 ตารางเมตร

สิ่งอำนวยความสะดวก

  • Lobby
  • Salt system infinity edge Swimming Pool
  • jacuzzi
  • Fitness
  • indoor & outdoor Reading
  • Lounge
  • Meeting Room
  • Digital Door Lock
  • Key Card Access
  • 24 Hours Sercurity Guard, CCTV

สอบถามรายละเอียดเพิ่มเติม โทร : 1198

ดูรายละเอียดเพิ่มเติม : www.lh.co.th

บทความ รีวิวคอนโด ล่าสุด