inizio ปิ่นเกล้า-ศาลายา โครงการบ้านเดี่ยว 2 ชั้น สไตล์โมเดิร์น บรรยากาศร่มรื่น ด้วยต้นไม้ใหญ่ตั้งแต่ด้านหน้าโครงการ จาก Land & House
รายละเอียดโครงการ
- ราคาเริ่มต้น 3,490,000 บาท
- เจ้าของโครงการ บริษัท แลนด์ แอนด์ เฮ้าส์ จำกัด (มหาชน)
- ลักษณะโครงการ บ้านเดี่ยว 2 ชั้น จำนวน 344 ยูนิต
- เนื้อที่ทั้งหมด ประมาณ 68.75 ไร่
- ที่ตั้งโครงการ ตำบลศาลากลาง อำเภอบางกรวย นนทบุรี
- คาดว่าจะแล้วเสร็จ พร้อมเข้าอยู่
สถานที่สำคัญใกล้เคียง
- มหาวิทยาลัยมหิดล
- พุทธมณฑล
- Lotus
- เซ็นทรัล ปิ่นเกล้า
- เซ็นทรัล ศาลายา
- เดอะมอลล์ บางแค
แบบบ้านและขนาดพื้นที่ใช้สอย
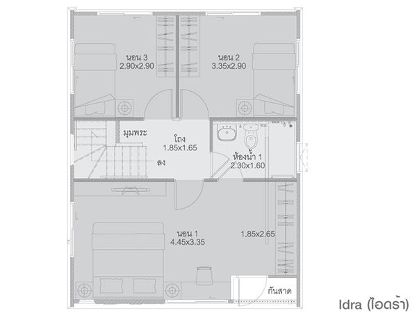
- Idra พื้นที่ใช้สอย 103 ตร.ม. ขนาดที่ดิน 51 ตร.ว. 3 ห้องนอน 2 ห้องน้ำ 1 ที่จอดรถ
- Cedar A พื้นที่ใช้สอย 114 ตร.ม. ขนาดที่ดิน 50 ตร.ว. 3 ห้องนอน 2 ห้องน้ำ 2 ที่จอดรถ
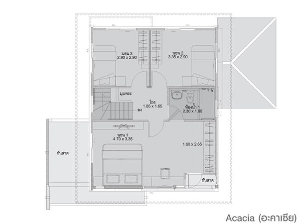
- Acacia พื้นที่ใช้สอย 125 ตร.ม. ขนาดที่ดิน 61 ตร.ว. 3 ห้องนอน 2 ห้องน้ำ 2 ที่จอดรถ
พื้นที่ใช้สอย 103 ตร.ม. ขนาดที่ดิน 51 ตร.ว. 3 ห้องนอน 2 ห้องน้ำ 1 ที่จอดรถ
พื้นที่ใช้สอย 114 ตร.ม. ขนาดที่ดิน 50 ตร.ว. 3 ห้องนอน 2 ห้องน้ำ 2 ที่จอดรถ
พื้นที่ใช้สอย 125 ตร.ม. ขนาดที่ดิน 61 ตร.ว. 3 ห้องนอน 2 ห้องน้ำ 2 ที่จอดรถ
สิ่งอำนวยความสะดวก
- คลับเฮ้าส์
- สระว่ายน้ำ (แยกสระเด็ก/ผู้ใหญ่)
- ฟิตเนส
- สวนพักผ่อน
- สนามเด็กเล่น
- ระบบรักษาความปลอดภัยแบบ Triple Action ดูแลตั้งแต่ทางเข้าโครงการด้วยระบบ Key Card Access, CCTV และตรวจตราตลอด 24 ชม.
- สัญญาณกันขโมยภายในบ้านทุกหลัง
สอบถามรายละเอียดเพิ่มเติม โทร : 1198
ดูรายละเอียดเพิ่มเติม : www.lh.co.th