ลงทะเบียน

CIELA Sripatum คอนโดติดสถานีรถไฟฟ้า ในราคาที่เอื้อมถึง : รีวิวคอนโด

การเดินทาง
อ่านรีวิวอื่นที่เกี่ยวกับ

รายละเอียดโครงการ

ชื่อโครงการ : CIELA Sripatum (เซียล่า ศรีปทุม)
เจ้าของโครงการ : บริษัท แกรนด์ ยูนิตี้ ดิเวลล็อปเมนท์ จำกัด
ที่ตั้งโครงการ : ถนนพหลโยธิน(ฝั่งขาออก) ตรงข้ามมหาวิทยาลัยศรีปทุม
พื้นที่โครงการ : 6-1-17.30 ไร่
ลักษณะโครงการ : High Rise
จำนวนอาคาร : 1 อาคาร
จำนวนชั้น : 28 ชั้น
จำนวนยูนิต : 900 ยูนิต

ที่จอดรถ : 40% ไม่รวมซ้อนคัน

ขนาดห้อง :

– STUDIO 21.5 ตร.ม.

– 1 Bedroom 26.5 ตร.ม.

– 1 Bedroom Plus 31.5 ตร.ม.

– 1 Bedroom Suite A&B 33.5-34.5 ตร.ม.

– 2 Bedroom 60 ตร.ม.

สิ่งอำนวยความสะดวกส่วนกลาง :

– Swimming Pool ลึก1.2 M. ขนาด 4×25 เมตร

– Kids Pool ลึก 30 CM.ขนาด 5×4 เมตร

– SKY FITNESS

– SKY GARDEN

– Sky Lounge

– Co-Working Space

– Lobby

– Access Card

– กล้อง CCTV

– ระบบรักษาความปลอดภัยตลอด 24 ชม.

ราคา : เริ่มต้น  2,050,000 บาท
ราคาเฉลี่ยต่อตารางเมตร : 120,000 บาท/ตร.ม.
ค่าส่วนกลาง : 55 บาท/ตร.ม.
ค่ากองทุน : 500 บาท/ตร.ม.
ปีที่สร้างเสร็จ : กันยายน 2562
จุดเด่นโครงการ : ติดรถไฟฟ้า BTS สายสีเขียว สถานีศรีปทุม 12 เมตร
มีทางเข้า-ออก 2 ทาง ซึ่งสามารถทะลุออกถนนเลียบคลองบางเขนไปถนนวิภาวดี หรือขึ้นทางด่วนได้ง่าย
วัสดุที่ใช้มีคุณภาพ
ระบบขนส่งสาธารณะใกล้เคียง : BTS สถานีศรีปทุม(สถานีในอนาคต)

จุดขึ้น-ลง ทางด่วน : ทางยกระดับอุตราภิมุข
สถานที่ใกล้เคียง : มหาวิทยาลัยเกษตรศาสตร์ มหาวิทยาลัยศรีปทุม เมเจอร์รัชโยธิน  อเวนิวรัชโยธิน เซ็นทรัลลาดพร้าว โลตัสลาดพร้าว โรงพยาบาลวิภาวิดี โรงพยาบาลเปาโล เกษตร โรงพยาบาลภูมิพลอดุลยเดช

ติดต่อโครงการ

ถนนพหลโยธิน ตรงข้ามมหาวิทยาลัยศรีปทุม


CIELA Sripatum คอนโดติดสถานีรถไฟฟ้า ในราคาที่เอื้อมถึง
CIELA Sripatum คอนโดติดสถานีรถไฟฟ้า ในราคาที่เอื้อมถึง : รีวิวคอนโด

หากคุณผู้อ่านได้ติดตามรีวิวคอนโดมิเนียมของเราก็จะพอสังเกตได้ว่า คอนโดมิเนียมจาก GRAND UNITY ในแบรนด์คอนโด ยู หรือยู ดีไลท์ ก็มักจะเน้นโลเคชั่นที่ดี เดินทางสะดวกแม้ไม่ติดรถไฟฟ้า ที่สำคัญคือราคาจับต้องได้ไม่แรงจนเกินไป ซึ่งเมื่อเริ่มต้นปี 2561 นี้ GRAND UNITY ได้แถลงข่าวเปิดตัวคอนโดมิเนียมแบรนด์ใหม่ถึง 4 แบรนด์ 4 โครงการ และหันมาเน้นพัฒนาโครงการในพื้นที่ติดรถไฟฟ้า โดย 1 ใน 4 โครงการนี้ได้เริ่มเผยโฉมออกมาแล้วบน ทำเลสุดฮอตอีกแห่งของกรุงเทพฯ นั่นคือย่านพหลโยธิน-เกษตร โดยในรีวิวฉบับนี้เราจะพาทุกท่านได้เข้าไปดูโครงการแรกของปีในชื่อแบรนด์ CIELA (เซียล่า)

ภาพรวมโครงการ

CIELA Sripatum (เซียล่า ศรีปทุม) คอนโดมิเนียมน้องใหม่ แต่ทว่ามาแรงตั้งแต่เริ่มเปิดตัวครั้งแรก ด้วยทำเลระดับพรีเมียม แต่อยู่ในราคาที่ไม่สูงเลยเมื่อเทียบกับคอนโดติดสถานีรถไฟฟ้า ซึ่งเป็นคอนโดมิเนียม High Rise 28 ชั้น 1 อาคาร, อาคาร 1 ร้านค้า 1 อาคาร และ 1 อาคารจอดรถแยกตัวออกจากตัวอาคารที่พักอาศัย บนพื้นที่ 6-1-17.30 ไร่ ขนาด 21.50-60.00 ตร.ม. ทั้งหมด 900 ยูนิต ที่จอดรถ 40% ไม่รวมซ้อนคัน

 

การดีไซน์สถาปัตยกรรมภายนอกจะแตกต่างจากคอนโดฯ ที่เคยเห็นมาทั้งหมดของ GRAND UNITY โดย CIELA Sripatum จะเน้นความเรียบง่าย สบายตา เหมาะแก่การพักผ่อนที่ต้องเหนื่อยล้าจากภายนอกมาทั้งวัน แต่ใช้เส้นสายให้ดูร่วมสมัย (Contemporary) ที่จะทำให้อาคารดูไม่ล้าสมัย สามารถดูแลรักษาได้ง่ายในระยะยาว อีกสิ่งหนึ่งที่สามารถสะท้อนให้เห็นถึงความใส่ใจรายละเอียดที่มีให้กับลูกบ้านนั่นคือเรื่องของวัสดุที่ถูกคัดเลือกมาใช้ให้เกิดประโยชน์และความปลอดภัยในระยะยาวมากที่สุด เช่น กระจกภายนอกอาคารรวมถึงประตูบานเลื่อนภายในห้องทั้งหมดใช้ Laminated Glass คือเป็น  กระจก 2 แผ่นประกบกันด้วยฟิล์ม ตรงกลางกระจกถูกกั้นด้วยฟิล์มเพื่อป้องกันหากเกิดการแตก ฟิล์มตรงกลางจะช่วยยึดเอาไว้ไม่ให้กระจกร่วงลงสู่ด้านล่าง, บานตู้เสื้อผ้าใช้กระจก Tempered Glass เวลากระจกแตกจะเป็นลักษณะเม็ดข้าวโพดไม่เป็นชิ้นแหลมคมแบบกระจกทั่วไป ช่วยป้องกันไม่ให้เกิดการบาดเจ็บได้, ระเบียงทุกห้องมีการติดตั้งตะแกรงอลูมิเนียมสีเดียวกันกับกรอบหน้าต่าง ช่วยเรื่องความสวยงามเมื่อมองจากภายนอก ช่วยป้องกันสายตาจากภายนอกให้มีความเป็นส่วนตัวมากขึ้น และยังช่วยป้องกันของหล่นลงด้านล่างนอกอาคารได้อีกด้วย และห้องน้ำสำเร็จรูป WC Pod ที่ประกอบเสร็จมาจากโรงงานคุณภาพ ข้อดีคือป้องกันการรั่วซึมลงห้องด้านล่าง ในการซ่อมบำรุงท่อจะสามารถแก้ไขได้จากในห้องโดยไม่ต้องไปรื้อฝ้าเพดานของห้องข้างล่าง สิ่งเหล่านี้คือมาตรฐานวัสดุใหม่ที่จะใส่เข้าไปในทุกโครงการจาก GRAND UNITY

 

อย่างที่บอกไปข้างต้นว่าโครงการนี้มีอาคารจอดรถแยกออกจากตัวอาคารพักอาศัยจึงทำให้ห้องพักอาศัยจะเริ่มตั้งแต่ชั้น 2 ไปจนถึงชั้น 27 มีจำนวน 34-36 ยูนิต/ชั้น ส่วนชั้น 28 จะเป็น Facilities ที่ทางโครงการเตรียมไว้ให้สำหรับผู้พักอาศัย มีลิฟท์โดยสารถึง 5 ตัว และลิฟท์เซอร์วิส 1 ตัว ระบบล็อคชั้นจากแบรนด์ Mitsubishi บันไดหนีไฟ 3 จุด ทั้ง 2 ฝั่งอาคารกับกลางอาคาร และลิฟท์โดยสารที่อาคารจอดรถอีก 2 ตัว

 

Floor Plan

 

Master Plan จะเห็นได้ว่าที่ดินมีลักษณะหน้าแคบ แต่ลึกเข้าไปคล้ายรูปตัว L หน้าโครงการติดริมถนนใหญ่ทางทิศตะวันออก มีทางออกหลังโครงการทางทิศเหนือไปออกถนนเลียบคลองบางเขน ขวามือเป็นตัว Sale Gallery ณ ปัจจุบันที่ในอนาคตจะทำเป็น Shop ต่อด้วยตัวอาคารพักอาศัยที่วางตามแนวที่ดิน และอาคารจอดรถอยู่ด้านท้ายสุดของที่ดิน สวนสีเขียวที่เป็นจุดใหญ่ทั้ง 2 ส่วนถูกเชื่อมต่อกัน

Floor Plan ชั้นพักอาศัย ให้ลิฟท์มามากถึง 5 ตัว + ลิฟท์เซอร์วิช 1 ตัว ถือเป็นโครงการที่ให้จำนวนมาเยอะ ไม่ต้องกังวลช่วงเวลาเร่งด่วนจะรอลิฟท์นานเกินไป

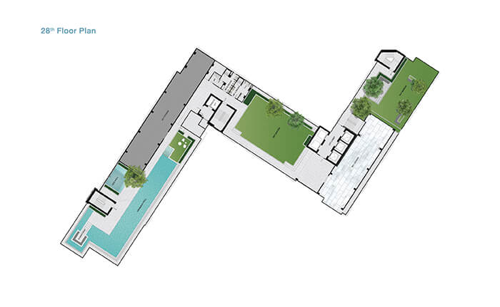
Floor Plan ชั้น 28 ซึ่งเป็น Facilities ชั้นไฮไลท์ของโครงการ

 

 

Unit Room

 

STUDIO 21.5 ตร.ม. ราคาเริ่มต้น 2.05 ล้านบาท

1 Bedroom 26.5 ตร.ม. ราคาเริ่มต้น 2.49 ล้านบาท

1 Bedroom Plus 31.5 ตร.ม. ราคาเริ่มต้น 2.95 ล้านบาท

1 Bedroom Suite A 34.5 ตร.ม. ราคาเริ่มต้น 3.25 ล้านบาท

1 Bedroom Suite B 33.5 ตร.ม. ราคาเริ่มต้น 3.25 ล้านบาท

2 Bedroom 60 ตร.ม. ราคาเริ่มต้น 6.39 ล้านบาท

 

Facilities

เรื่องของรายละเอียดไม่ใช่เพียงเรื่องการใช้วัสดุเท่านั้น แต่ยังรวมถึงการออกแบบ Facilities เพื่อสนองต่อทุกไลฟ์สไตล์อันหลากหลาย โดยจะแบ่งออกเป็น 2 โซน เริ่มจากพื้นที่สีเขียวชั้นล่างรวมแล้ว 2,200 ตร.ม. จากหน้าโครงการแล้วเชื่อมต่อไปถึงตรงกลางระหว่างอาคารพักอาศัยกับอาคารจอดรถ และส่วนล็อบบี้รูปทรงตัว L พื้นที่ประมาณ 410 ตร.ม.

 

ส่วนกลางอีกโซนคือดาดฟ้าชั้น 28 ชั้นสูงสุดของอาคารประกอบไปดด้วย สระว่ายน้ำขนาด 4X25 เมตร ลึก 1.2 เมตร แยกส่วนสระเด็กขนาด 5X4 เมตร ลึก 30 เมตร ถูกวางไว้มุมด้านหน้าโครงการ SKY FITNESS ห้องออกกำลังกายขนาด 185 ตร.ม. ที่มีกระจกสูงล้อมรอบทั้งหมด SKY GARDEN สวนชั้นดาดฟ้ามีพื้นที่รวม 305 ตร.ม. พื้นที่ SKY LOUNGE ห้องรับรองชั้นดาดฟ้า พื้นที่ประมาณ 143 ตร.ม. และ Co-Working Space พื้นที่ 97 ตร.ม. ได้ความเป็นส่วนตัวในช่วงเวลาพักผ่อน ไปพร้อมๆ กับชมวิวเมืองด้านนอกที่มีความเคลื่อนไหวอย่างไม่เคยหยุดนิ่งไปด้วย

 

ทำเล

CIELA Sripatum พื้นที่โครงการตั้งอยู่ริมถนนพหลโยธินฝั่งขาออกตรงข้ามกับมหาวิทยาลัยศรีปทุม อีกทั้งยังใกล้กับมหาวิทยาลัยเกษตรศาสตร์ บางเขน สิ่งอำนวยความสะดวกรายล้อมมากมายตั้งแต่ห้างสรรพสินค้าชื่อดังอย่างเซ็นทรัลพลาซ่า ลาดพร้าว, เมเจอร์ รัชโยธิน, อเวนิว รัชโยธิน, เซ็นทรัลรามอินทรา ไปจนถึงแถวเสนานิคม (ซ.พหลโยธิน 32) ที่มากมายไปด้วย Street Food ตลอดเส้นทางซึ่งสามารถไปทะลุออกวังหิน-โชคชัย 4 แหล่งของกินอร่อยๆ ราคาไม่แพง รวมถึงไม่ไกลจากโรงพยาบาลชื่อดังทั้งรัฐบาล-เอกชน เช่น โรงพยาบาลวิภาวิดี, โรงพยาบาลเปาโล เกษตร, โรงพยาบาลภูมิพลอดุลยเดช เป็นต้น

 

การเดินทางจากโครงการด้วยระบบขนส่งสาธารณะคือรถไฟฟ้าสายสีเขียวส่วนต่อขยาย หมอชิต-สะพานใหม่-คูคต ที่กำลังดำเนินการก่อสร้างอยู่ในขณะนี้ ซึ่งตัวโครงการจะอยู่ห่างจากสถานี BTS ศรีปทุมเพียง 12 เมตร เมื่อเปิดให้บริการเมื่อไรจะใช้เวลาเดินทางเข้าสู่ตัวเมืองตรงเข้าสยามประมาณ 30 นาทีเท่านั้น และห่างจากสถานีที่เป็น Interchange กับสายสีน้ำเงิน บางซื่อ-หัวลำโพง สถานีพหลโยธินประมาณ 6 สถานี, สายสีชมพูแคราย-มีนบุรี บริเวณวงเวียนหลักสี่ประมาณ 2 สถานี และสายสีน้ำตาลแคราย-บึงกุ่ม บริเวณแยกเกษตรประมาณ 2 สถานีเช่นกัน ส่วนการเดินทางด้วยรถยนต์ส่วนตัวก็ง่ายกว่าที่คิดมาก เพราะทางด้านหลังโครงการมีทางออกสู่ถนนเลียบคลองบางเขน (หรือเข้าทางปากซอยพหลโยธิน 49/1) ที่สามารถใช้เป็นเส้นทางลัดทะลุออกถนนวิภาวดี แล้วไปขึ้นทางยกระดับอุตราภิมุข (โทลเวย์) ได้เลย

 

 

ที่ดินริมถนนพหลโยธินในย่านนี้ตั้งแต่ช่วงสี่แยกเกษตรไปจนเชื่อมต่อกับสุดถนนวิภาวดีรังสิตบริเวณอนุสรณ์สถานแห่งชาติ ส่วนมากเป็นที่ดินของราชการไม่ว่าจะเป็นธนาคารเพื่อการเกษตรและสหกรณ์การเกษตร (สำนักงานใหญ่) กรมป่าไม้ การทางพิเศษแห่งประเทศไทย ทหารบก ทหารอากาศ ฯลฯ นั่นหมายความว่าทำเลติดรถไฟฟ้าช่วงนี้ค่อนข้างหายาก และมีความเป็นส่วนตัวมากกว่าเมื่อเทียบกับย่านที่มีผู้คนทั่วไปอาศัยอยู่อย่างแน่นขนัด ซึ่งในกรุงเทพฯ โซนเหนือบริเวณนี้ถือเป็นทำเลสำคัญแห่งอนาคตที่จะทำให้กรุงเทพฯ ดูเป็นเมืองศิวิไลซ์ได้ไม่ยากทั้งสถานีกลางบางซื่อจุดศูนย์รวมคมนาคมระบบรางที่ใหญ่ที่สุดในอาเซียน มีทั้งรถไฟฟ้าสายสีแดงอ่อน สายสีน้ำเงิน สายสีเขียว สายสีแดงเข้มที่ในอนาคตจะเชื่อมตั้งแต่สนามบินดอนเมือง-สุวรรณภูมิ-อู่ตะเภา เชื่อมต่อไว้ด้วยสายเดียวกัน ทั้งหมดพร้อมเปิดใช้บริการประมาณปี 2563 รวมถึงรถไฟฟ้าความเร็วสูงทั้งภาคตะวันออกเฉียงเหนือ ภาคเหนือ ภาคใต้ และยังเป็นทั้งโรงแรม ร้านค้าปลีก ร้านอาหาร รวมไว้อยู่ในที่เดียวอย่างครบวงจร ย่านนี้จึงถือได้ว่ามีการลงทุนจากทางภาครัฐสูงสุดของกรุงเทพฯ

 

สรุปว่าในแง่ของทำเลแล้วคงไม่ต้องอธิบายอะไรมากก็เชื่อว่าทุกคนก็รับรู้ถึงศักยภาพที่มีอย่างเต็มเปี่ยมของย่านนี้ที่กำลังจะกลายเป็น New CBD แห่งใหม่ในอนาคตอย่างแน่นอน

 

 

ชมห้องตัวอย่าง

โครงการนี้จะได้เฟอร์นิเจอร์แบบ Fully Fitted ซึ่งสิ่งที่ทุกห้องจะได้มาเหมือนกัน คือ ตู้รองเท้า, ตู้เสื้อผ้า, ชุดครัว + HOB + HOOD, ผ้าม่าน ส่วนเครื่องปรับอากาศก็มีให้เช่นกันค่ะ แต่จะแยกออกเป็น Type ห้องได้ดังนี้

STUDIO 21.5 ตร.ม. ได้เครื่องปรับอากาศ 1 เครื่อง

1 Bedroom 26.5 ตร.ม. ได้เครื่องปรับอากาศ 2 เครื่อง

1 Bedroom Plus 31.5 ตร.ม. ได้เครื่องปรับอากาศ 3 เครื่อง

1 Bedroom Suite A&B 33.5-34.5 ตร.ม. ได้เครื่องปรับอากาศ 3 เครื่อง

2 Bedroom 60 ตร.ม. ได้เครื่องปรับอากาศ 3 เครื่อง

 

ก่อนอื่นเราเข้าไปดูภายใน Sale Gallery กันก่อนค่ะ ภายในตกแต่งด้วยวัสดุกระเบื้องลายหินอ่อนโทนสีขาว ตัดกับสีดำบางส่วน เพดานสูงโปร่ง ดูแล้วโล่ง ให้ความรู้สึกสบายๆ แต่แฝงความหรูหราเอาไว้ด้วย เข้ากับคอนเซ็ปต์ Contemporary ที่วางเอาไว้ ซึ่งมีห้องตัวอย่างอยู่ 2 ขนาดด้วยกันค่ะ

ห้องตัวอย่างแรก 1 Bedroom 26.5 ตร.ม. เป็นห้องที่มีจำนวนยูนิตมากที่สุดในโครงการ เมื่อเปิดห้องออกมาโซนแรกเราจะพบกับห้องนั่งเล่นค่ะ ความสูงจากพื้นถึงเพดาน 2.6 เมตร ปูพื้นด้วยลามิเนต ใช้ไฟแบบ Downlight

ส่วนฝั่งซ้ายจะมีตู้เก็บรองเท้าทรงสูงใช้ลามิเนตเป็นวัสดุปิดผิว ต่อด้วยพื้นที่สำหรับวางเคาน์เตอร์ทีวีขนาดกลาง

ฝั่งขวามือเป็นพื้นที่สำหรับวางโซฟาขนาด 2-3 ที่นั่ง พร้อมโต๊ะกลาง ต่อจากพื้นที่ห้องนั่งเล่นจะเป็นห้องนอนกั้นด้วยประตูกระจก Laminated Glass แบบบานเลื่อน 3 ตอน ขนาดสูงชิดเพดาน ขอบอลูมิเนียมสีดำ

ภายในห้องนอนสามารถวางเตียงขนาด 5 ฟุตเอาไว้กลางห้องได้ โดยยังเหลือพื้นที่ทางเดินทั้ง 2 ข้างของเตียงพร้อมโต๊ะเล็กตรงหัวเตียง

ข้างเตียงใช้หน้าต่างกระจก Laminated Glass บานใหญ่ แบบเปิดบานกระทุ้งได้ 1 บาน มาพร้อมกับผ้าม่านที่ทางโครงการให้มาด้วยเลยค่ะ

ปลายเตียงเราจะได้ตู้เสื้อผ้าที่มีหน้าบานกระจก Tempered Glass และยังเหลือพื้นที่สำหรับวางชั้นหนังสือ โต๊ะทำงานขนาดเล็ก หรือโต๊ะเครื่องแป้งได้ค่ะ

ระหว่างห้องนอนกับเคาน์เตอร์วางทีวีจะกั้นอีกโซนของห้องด้วยบานประตูค่ะ

โซนถัดมาของห้องจะเป็นห้องครัว ห้องน้ำ และระเบียงค่ะ โดยเมื่อเปิดประตูเข้ามาจะพบกับห้องครัวก่อน ความสูงในห้องครัวจากพื้นถึงเพดานสูง 2.45 เมตร ปูพื้นด้วยกระเบื้องเซรามิค Top ครัวใช้วัสดุหินสังเคราะห์สีขาว ส่วนตู้เก็บทั้งด้านบนและด้านล่างปิดผิวด้วยลามิเนต

เคาน์เตอร์ครัววางแบบ One Wall Kitchen เหลือช่องว่างสำหรับเป็นพื้นที่วางตู้เย็นไว้ด้านในสุดข้างประตูกระจก มีซิงค์ล้างจาน พร้อมเครื่องดูดครัว และเตาไฟฟ้า 2 หัวมาให้ด้วยค่ะ

เชื่อมต่อด้วยระเบียงห้อง กั้นด้วยประตูกระจก Laminated Glass บานเลื่อนขอบอลูมิเนียมสีดำ

ระเบียงห้องถูกกั้นด้วยกริลอลูมิเนียมสีดำ ด้วยบังสายตาจากด้านนอกเพิ่มความเป็นส่วนตัว อีกทั้งยังช่วยป้องกันของตกลงไปด้านล่าง ส่วน Condensing Unit หันหน้าออกนอกตัวอาคาร และพื้นที่ใต้ Condensing Unit มีท่อน้ำเอาไว้ให้สำหรับวางเครื่องซักผ้า

สุดท้ายที่ห้องน้ำค่ะ ความสูงจากพื้นถึงเพดาน 2.3 เมตร พื้นและพนังปูด้วยกระเบื้องเซรามิคลายหินอ่อน

อ่างล้างหน้าใช้แบบแขวนผนัง แยกโซนเปียก-แห้งออกจากกัน ส่วนโซนเปียกมีการเจาะผนังเป็น 2 ช่อง สำหรับวางของใช้ในห้องน้ำ

ห้องตัวอย่างสุดท้าย 1 Bedroom Plus 31.5 ตร.ม. ห้องนั่งเล่นเป็นโซนแรกของห้องค่ะ ความสูงจากพื้นถึงเพดาน 2.6 เมตร ปูพื้นด้วยลามิเนต ใช้ไฟแบบ Downlight

ซ้ายมือมีพื้นที่สำหรับวางโซฟาขนาด 3-4 ที่นั่ง พร้อมโต๊ะกลางค่ะ

ถ้าวางโซฟาขนาดเล็กลงมาหน่อยก็จะเหลือพื้นที่เอาไว้วางชั้นวางของ หรือโต๊ะทำงานก็ได้ด้วย

ฝั่งตรงข้ามโซฟาสามารถวางเคาน์เตอร์วางทีวีเอาไว้ข้างๆ ตู้เก็บรองเท้าทรงสูงที่มุมกำแพงได้

ต่อจากห้องนั่งเล่นเข้ามาดูในห้องนอนกันต่อค่ะ ซ้ายมือเป็นตู้เสื้อผ้าหน้าบานกระจก Tempered Glass สามารถวางเตียงขนาด 5 ฟุตถัดจากตู้เสื้อผ้า

อีกข้างของเตียงยังพอเหลือพื้นที่ให้เดินได้ค่ะ หน้าต่างใช้กระจก Laminated Glass ขอบอลูมิเนียมสีดำ สามารถเปิดบานกระทุ้งได้ 1 บาน มาพร้อมกับผ้าม่าน

ต่อไปออกไปดูอีกโซนของห้องกันค่ะ

อีกโซนของห้องมีช่องประตูตรงหลังเคาน์เตอร์วางทีวีในห้องนั่งเล่นค่ะ จะมีห้องครัว ห้องน้ำ ห้องอเนกประสงค์ และระเบียง

ห้องครัวมีความสูงจากพื้นถึงเพดาน 2.45 เมตร ปูพื้นด้วยกระเบื้องเซรามิค Top ครัวใช้วัสดุหินสังเคราะห์สีขาว ตู้เก็บทั้งด้านบนและด้านล่างปิดผิวด้วยลามิเนต มีซิงค์ล้างจาน เครื่องดูดควัน และเตาไฟฟ้า 2 หัว ทั้งหมดนี้จะได้ไปทั้งชุดเลยค่ะ

มองมุมนี้เราจะเห็นว่ามีพื้นที่สำหรับวางตู้เย็นเอาไว้ฝั่งตรงข้ามกับห้องครัว และด้านขวาของห้องครัวเป็นห้องน้ำค่ะ

ภายในห้องน้ำมีความสูงจากพื้นถึงเพดาน 2.3 เมตร พื้นและพนังปูด้วยกระเบื้องเซรามิคลายหินอ่อน แยกพื้นที่ส่วนเปียก-แห้ง ในส่วนเปียกมีการเจาะผนังเป็น 2 ช่องสำหรับวางของใช้ภายในห้องน้ำ

ออกจากห้องน้ำไปที่ห้องสุดท้ายฝั่งตรงข้ามกันค่ะ เป็นห้องอเนกประสงค์ที่กั้นด้วยประตูกระจกบานเลื่อนแบบเปิดได้ทั้ง 2 ข้าง

ภายในห้องอเนกประสงค์เราสามารถดัดแปลงได้หลากหลายการใช้งานไม่ว่าจะเป็นห้องแต่งตัว ห้องทำงาน หรือห้องนอนที่ 2 ก็ได้ค่ะ

ห้องนี้จะเชื่อมต่อกับระเบียงห้อง กั้นด้วยกระจก Laminated Glass บานเลื่อน 2 ตอน พร้อมผ้าม่าน

สุดท้ายที่ระเบียงห้องค่ะ กั้นด้วยกริลอลูมิเนียมโปร่งสีดำ ส่วน Condensing Unit หันหน้าออกนอกตัวอาคาร และพื้นที่ใต้ Condensing Unit มีท่อน้ำเอาไว้ให้สำหรับวางเครื่องซักผ้า

ความโดดเด่นของโครงการนี้ อย่างแรกคงหนีไม่พ้นเรื่องทำเลที่ว่ากันว่าจะเป็น New CBD แห่งอนาคตไปอย่างไร้ข้อกังขา ด้วยการมาของคมนาคมสำคัญที่จะกลายเป็นการเดินทางหลักให้กับคนกรุงเทพฯ ได้ดียิ่งขึ้น หรือแม้แต่เส้นทางลัดเลาะเพื่อหลีกเลี่ยงปัญหารถติด และช่วยย่นระยะทางไปสู่อีกถนนสายหลักและยังขึ้นทางด่วนได้ง่ายดาย ประกอบกับการสร้างมาตรฐานใหม่ที่ดียิ่งขึ้นจาก GRAND UNITY สะท้อนออกมาให้เห็นผ่านจากวัสดุคุณภาพและการออกแบบเพื่อตอบสนองกับไลฟ์สไตล์ของผู้อยู่อาศัยจริงได้เป็นอย่างดี

เปิดจองโครงการอย่างเป็นทางการวันที่ 10 มีนาคม 2561 ลงทะเบียนเพื่อรับส่วนลดสูงสุด 250,000 บาท >>> https://goo.gl/x1KpeQ โทร. 02 652 4000

 

โปรโมชั่นพิเศษของโครงการ

Promotion:

วันที่ 10 มีนาคม 2561 ลงทะเบียนเพื่อรับส่วนลดสูงสุด 250,000 บาท

วันที่ 10 มีนาคม 2561 ลงทะเบียนเพื่อรับส่วนลดสูงสุด 250,000 บาท

 

บทความ รีวิวคอนโด ล่าสุด