

รีวิวฉบับนี้เราจะพาไปชมคอนโดมิเนียมแบรนด์ใหม่ล่าสุดจากเครือ LPN ในชื่อ Lumpini Mixx (ลุมพินี มิกซ์) ซึ่งปักหมุดในทำเลใกล้สี่แยกศรีเทพา (ถนนศรีนครินทร์ตัดกับถนนเทพารักษ์) เกาะแนวรถไฟฟ้าสายสีเขียวกับสายสีเหลืองอยู่เนืองๆ แถมเปิดตัวที่ราคา 7 แสนเศษเท่านั้น ยิ่งทำให้รู้สึกน่าจับจองเป็นที่สุด ว่าแล้วก็ไปดูโครงการกันเลยดีกว่าครับ

การเดินทาง
การเดินทางวันนี้เราขอยืดรถไฟฟ้าเป็นหลัก ด้วยการมาลงที่สถานีแบริ่ง ซึ่งเป็นสถานีปลายทาง ณ ขณะนี้ แล้วต่อรถมายังตัวโครงการอีกที ซึ่งก็สามารถเลือกได้ทั้งเส้นทางในซอยแบริ่ง มาออกถนนศรีนครินทร์ แล้วค่อยมาเลี้ยวเข้าถนนเทพารักษ์ หรือวิ่งตรงมาผ่านสถานีตำรวจภูธรตำบลสำโรงเหนือแล้วก็เลี้ยวซ้าย วิ่งตรงมาตามถนนเทพารักษ์ยาวๆ เลย พอผ่านแยกศรีเทพา ก็ให้กลับรถแล้วชิดซ้ายเพื่อเข้าโครงการ เนื่องจากที่ตั้งโครงการ Lumpini Mixx อยู่ห่างจากสี่แยกศรีเทพาเพียง 260 เมตรเท่านั้น การต่อรถจากสถานีรถไฟฟ้ามายังโครงการก็ทำได้ง่าย มีให้เลือกทั้งรถสองแถวสีส้ม (บางนา-สำโรง หนามแดง) หรือจะเรียกรถแท็กซี่ หรือใช้บริการพี่วินมอเตอร์ไซค์รับจ้างตรงทางลงรถไฟฟ้าก็สะดวกดีเช่นกัน แต่ทั้งนี้ทางโครงการ Lumpini Mixx ก็จัดให้มีรถรับ-ส่งจากโครงการไปยังสถานีรถไฟฟ้าแบริ่งเพื่อเพิ่มความสะดวกสำหรับลูกบ้านด้วย


การเดินทางวันนี้เราเริ่มจาก BTS สถานีแบริ่งกันเลยนะครับ จากตรงนี้ไปมี 2 เส้นทางให้เลือกคือเข้าถนนสุขุมวิท 107 หรือซอยแบริ่งก็ได้ หรือตรงไปเข้าถนนเทพารักษ์เลยก็ได้เหมือนกัน

เราเลือกตรงมาตามถนนสุขุมวิท แล้วไปเลี้ยวซ้ายเข้าถนนเทพารักษ์นะครับ

จาก BTS สถานีแบริ่งมา มีการก่อสร้างรถไฟฟ้าส่วนต่อขยาย สายสีเขียว ตลอดทางไปจนถึงบริเวณพิพิธภัณฑ์ช้างเอราวัณเลยนะครับ

จาก BTS แบริ่งมาประมาณ 2 กิโลเมตรกว่าๆ จะเจอบิ๊กซี สำโรงอยู่ทางขวามือ

เราตรงมาตามถนนสุขุมวิทเรื่อยๆ


ตรงนี้จะเป็นจุดก่อสร้าง BTS สถานีสำโรง อยู่ก่อนถึงแยกที่เราจะเลี้ยวเข้าถนนเทพารักษ์

ตรงมาอีกหน่อยจะเจอ 3 แยก ให้เลี้ยวซ้ายเพื่อเข้าถนนเทพารักษ์

เมื่อเลี้ยวซ้ายมาแล้ว จะเห็นบรรยากาศบนถนนเทพารักษ์เป็นถนน 3 เลน ตอนเราไปเป็นช่วงเกือบจะเที่ยงแล้ว การจราจรจึงคล่องตัวอย่างที่เห็น


เข้าสู่ตำบลบางเมืองกันแล้ว

จากแยกถนนสุขุมวิท เราตรงมาตามถนนเทพารักษ์อีกประมาณ 4 กม. จะเจออีกแยก เป็นแยกศรีเทพา (ถนนเทพารักษ์ตัดกับถนนศรีนครินทร์)

เราตรงผ่านแยกศรีเทพาไปเลยนะครับ

เลยแยกมานิดเดียว จะเห็นโครงการอยู่ทางด้านขวามือ เราชิดขวาเพื่อกลับรถ

จุดกลับรถจะอยู่ไม่ไกลจากทางเข้าโครงการเลยนะครับ กลับรถแล้วรีบชิดซ้ายทันที


ถึงแล้วละครับ สำนักงานขายของโครงการ


ถ้าใครไม่ได้ใช้รถยนต์ส่วนตัว หน้าโครงการก็มีรถสาธารณะไว้ให้บริการด้วยนะครับ ทั้งรถเมล์ และรถสองแถว วิ่งไปถึง BTS แบริ่งกันเลย


เลี้ยวเข้าไปจอดรถด้านหลังสำนักงานขายได้เลยครับ

เข้ามาในสำนักงานขายแล้วคึกคักทีเดียวครับ

ส่วนการเดินทางด้วยรถส่วนตัวก็สะดวกไม่แพ้กัน เพราะมีเส้นทางให้เลือกทั้งถนนเทพารักษ์ ถนนศรีนครินทร์ ที่ไปออกได้ทั้งถนนสุขุมวิท ถนนบางนา-ตราด และถนนวงแหวนรอบนอกฝั่งใต้
สำหรับในอนาคต เมื่อรถไฟฟ้าสายสีเขียวทำส่วนต่อขยายเสร็จแล้ว สถานีก็จะขยับเข้ามาใกล้ตัวโครงการมากขึ้น จากสถานีแบริ่งก็จะเป็นสถานีสำโรงแทน ส่วนรถไฟฟ้าสายสีเหลืองซึ่งอยู่ในแผนก่อสร้างในอนาคต ก็จะมีสถานีศรีด่าน และสถานีศรีเทพาอยู่ใกล้ๆ ในระยะเพียง 1 กิโลเมตรครับ
วิเคราะห์รอบโครงการ
โครงการ Lumpini Mixx เทพารักษ์-ศรีนครินทร์ ตั้งอยู่ในชุมชนตรงสี่แยกย่านศรีเทพาพอดี พื้นที่รอบๆ เป็นบ้านเดี่ยว ทาวน์เฮ้าส์ และอาคารพาณิชย์เกือบทั้งหมด ริมถนนเทพารักษ์แถบนี้เต็มไปด้วยร้านรวงต่างๆ มากมาย มีอาหารการกินขายตั้งแต่เช้ายันค่ำ รถราก็วิ่งผ่านไปมาตลอดวัน บรรยากาศจึงคึกคักไม่เงียบเหงา หรือห่างไกลความเจริญเลยครับ แหล่งช็อปปิ้งสำคัญๆ ของย่านนี้ก็อยู่รอบๆ โครงการ บนเส้นศรีนครินทร์ก็มีทั้ง Food Land, Big C, Makro, Paradise Park และ Seacon Square เลยไปทางถนนบางนา-ตราดก็มี Central บางนา, Mega บางนา และ Tesco Lotus ส่วนสาธารณูปโภคอื่นๆ ก็มีแวดล้อมครบถ้วนทั้ง โรงพยาบาล สถานีอนามัย โรงเรียน มหาวิทยาลัย ธนาคาร และหน่วยงานราชการ

ใกล้โครงการมีร้านขายอาหารอยู่หลายร้านเลยนะครับ





สำหรับโครงการ Lumpini Mixx เทพารักษ์-ศรีนครินทร์ เป็นคอนโด Low Rise สูง 8 ชั้น ที่มีทั้งหมด 7 อาคารด้วยกัน แต่ละอาคารตั้งเรียงตัวกันยาวเข้าไปตามแนวของที่ดิน โซนด้านหน้าเรียกว่าโซน A มี 3 อาคาร ส่วนด้านในเป็นโซน B มีอีก 4 อาคาร โดยที่ Facilities ต่างๆ ก็กระจายกันไปในแต่ละอาคาร ลูกบ้านแต่ละอาคาร ดังนี้
ส่วนพื้นที่สีเขียวที่เป็นสวนก็มีอยู่ทุกๆ อาคาร เช่นเดียวกับที่จอดรถที่มีให้จอดที่บริเวณด้านหลังของทุกๆ อาคาร และมีอาคารจอดรถสูง 4 ชั้น อยู่ระหว่างอาคาร B2 และ B3 เพิ่มเติมมาให้ด้วย ช่วยเพิ่มจำนวนที่จอดรถได้มากขึ้นพอสมควร แต่โดยรวมแล้วก็ยังสามารถรองรับได้ประมาณ 30%
เรื่องทิศทางของอาคาร อาคารทั้งหมดจะตั้งอยู่ในแนวเหนือใต้ตามรูปที่ดิน หน้าอาคารในโซน A จะหันไปทางทิศตะวันออก ส่วนโซน B หันหน้าไปทางทิศตะวันตกครับ ดังนั้นห้องเกือบทั้งหมดจึงเผชิญกับทิศตะวันออก และทิศตะวันตก รักชอบด้านไหนก็เลือกกันได้ตามสะดวก นอกเหนือจากนี้ก็เป็นเรื่องระบบรักษาความปลอดภัยตามมาตรฐาน ลิฟท์โดยสารอาคารละ 2 ตัว และรถรับส่งไปยังสถานีรถไฟฟ้าเพื่ออำนวยความสะดวกให้กับลูกบ้านเพิ่มเติม

Master Plan ของโครงการที่มีทั้งหมด 7 อาคาร เรียงตัวกันยาวเข้าไปตามแนวของที่ดิน



มีอาคารจอดรถสูง 4 ชั้น 1 อาคาร อยู่ระหว่างอาคาร B2 กับ B3



แต่ละอาคารจะมีสวนสีเขียวอยู่หน้าอาคาร


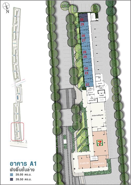
อาคาร A1 จะมีร้านสะดวกซื้อ ร้านซักรีด และร้านเสริมสวย อยู่ที่ชั้น 1 และห้องพักบางส่วนจะเริ่มต้นที่ชั้น 1 และอีกส่วนหนึ่งเป็นที่จอดรถใต้อาคาร และรอบๆ อาคาร

ชั้น 2-8 จะเป็นห้องพักอาศัยทั้งหมด

อาคาร A2 ชั้น 1 จะมีร้านอาหาร ห้องเด็กเล่น ห้องสมุด ส่วนหนึ่งเป็นห้องพักอาศัย และที่จอดรถใต้อาคารและรอบๆ อาคาร

อาคาร A3 มีห้องออกกำลังกาย และสระว่ายน้ำ อยู่ที่ชั้น 2

สระว่ายน้ำบนชั้น 2 ของอาคาร A3



อาคาร B1 ชั้น 1 มีห้องกิจกรรมผู้สูงอายุ และห้องพักอาศัยก็เริ่มต้นที่ชั้น 1 นี่เลยนะครับ ที่จอดรถจะใช้พื้นที่รอบๆ อาคาร

อาคาร B2 มีร้านอาหาร อยู่ที่ชั้น 1

อาคาร B3 จะมีห้องออกกำลังกายอยู่อีก 1 ห้อง

อาคาร B4 จะมีห้องเด็กเล็ก และห้องสมุด
พาชมห้องตัวอย่าง
อย่างที่บอกว่าโครงการ Lumpini Mixx เทพารักษ์-ศรีนครินทร์ เป็นแบรนด์ใหม่เอี่ยมแกะกล่องจากเครือ LPN เลยมีห้องแบบใหม่มาฝากกันด้วย แต่ก็ไม่ต้องห่วงนะครับ ห้องแบบเดิม ไซส์เดิมตามมาตรฐานของ Lumpini ยังคงมีอยู่ครบ โดยทางโครงการจะแบ่ง Layout ห้องแบบเดิมในขนาด 22.50-26.50 ตร.ม. ไว้ในอาคารโซน A ส่วนห้อง Layout ใหม่ ขนาดใหม่จะอยู่ในอาคารโซน B ทั้งหมด ซึ่งห้องแบบใหม่จะมีขนาดที่ 21.50-22 ตร.ม. เรียกว่าเป็นขนาดที่เล็กกระทัดรัดกว่านิดหน่อย แต่ก็มีการจัดวางพื้นที่ภายในให้สามารถใช้สอยได้คุ้มค่าเหมือนเดิม ดังนั้นราคาห้องเริ่มต้นของโครงการนี้จึงอยู่ในช่วงราคาที่สามารถจับต้องได้ง่ายยิ่งขึ้นไปอีก
เชื่อว่าหลายคนคงอยากเห็นหน้าตาของห้องตัวอย่างกันแล้ว ไปดูกันเลยดีกว่าครับ

ห้อง Studio ขนาด 21.50 ตารางเมตร

เรามาเริ่มกันจากห้อง Studio ขนาด 21.50 ตารางเมตร กันก่อนเลยนะครับ

ห้องที่ได้จะเป็นห้องเปล่า แต่ถ้าอยากได้แบบห้องตัวอย่าง ก็มีค่าใช้จ่ายเพิ่ม 175,000 บาท

ห้องนี้จะเป็น Layout แบบใหม่ของ LPN อาจจะแปลกตาหน่อยนะครับ เข้ามาในห้องแล้วจะเป็นส่วน Living Area อยู่ด้านหน้า ถัดเข้าไปจะเป็นห้องนอน

พื้นที่ Living Area ขนาดกะทัดรัต ระยะห่างระหว่างทีวีกับโซฟา จะได้ประมาณนี้นะครับ ก็ถือว่าไม่แคบเกินไป สำหรับห้อง size นี้

จุดที่วางทีวี โครงการ Built in เป็นชั้นวางทีวีเล็กๆ แบ่งครึ่งกับโต๊ะทานอาหารหรือจะเป็นโต๊ะทำงานก็ได้

ฝั่งที่วางโซฟาในห้องตัวอย่าง Built in เป็นโซฟา 2 ที่นั่ง ที่อยู่ติดกับตู้เสื้อผ้า

ถัดเข้ามาด้านในจะเป็นห้องนอน


ห้องนอนวางเตียงขนาด 5 ฟุตกำลังพอดีครับ

ติดกับเตียงนอนจะมีหน้าต่าง เป็นกระจกบานเลื่อน 2 ตอน

ปลายเตียงมีพื้นที่เหลือให้ Built in เป็นโต๊ะเครื่องแป้งได้


อีกฝั่งของห้องจะเป็นส่วนครัว อยู่ตรงกลางระหว่างห้องน้ำกับระเบียง

เคาน์เตอร์ครัว จะเป็นเคาน์เตอร์เล็กๆ นะครับ เหมาะกับการเตรียมอาหารมากกว่า

ซิ้งค์ล้างจานแบบฝัง

ด้านขวามือของครัวจะเป็นห้องน้ำ

การจัดวางสุขภัณฑ์ในห้องน้ำ

สุขภัณฑ์ที่ใช้จะเป็นของ American Standard

อ่างล้างหน้า มาพร้อมกระจกเงาขนาดพอดีตัว

ชุดฝักบัว

มีก๊อกน้ำอยู่ด้านล่างให้ด้วย


ส่วนด้านซ้ายของครัว จะเป็นประตูออกไปที่ระเบียงด้านนอก


ระเบียงด้านนอกรูปร่างหน้าตาก็ตามสไตล์ LPN นะครับ

ด้านบนจะเป็นจุดวางคอมเพรสเซอร์แอร์ มีกริลเป่าลมออกด้านนอก

มีหน้าต่างบานเกล็ด เพื่อช่วยระบายกลิ่นออกจากส่วนครัว

ต่อมาเรามาดูแบบ 2 ห้องนอน ขนาด 43 ตารางเมตร

แปลนห้อง 2 ห้องนอนขนาด 43 ตารางเมตร เป็นการเอาห้อง 21.50 ตารางเมตร 2 ห้องรวมกัน

ห้องนี้หากให้โครงการตกแต่งให้เหมือนในห้องตัวอย่าง ต้องเพิ่มเงินอีก 350,000 บาท

เมื่อเข้ามาในห้องแล้ว เราจะเจอส่วน Living Area ก่อนนะครับ

จุดที่วางโซฟาและทีวีจะวางเยื้องๆ กันอยู่สักหน่อยนะครับ เพราะว่าติดทางเข้าห้องนอนเล็ก

ถัดจาก Living Area เข้าไปด้านใน จะเป็นจุดที่วางโต๊ะทานอาหาร อยู่ติดกับหน้าต่าง

โต๊ะทานอาหารวางเข้ามุมอยู่ จริงๆ จะวางโต๊ะขนาด 4 ที่นั่งแนวยาว ก็ยังสามารถวางได้นะครับ

จากมุมโต๊ะทานอาหาร และ Living Area เข้าไปจะเป็นส่วนครัว อยู่ตรงกลางระหว่างห้องน้ำ กับระเบียง คล้ายๆ กับห้อง Studio

ชุดเคาน์เตอร์ครัวจะเหมือนกับแบบห้อง Studio เลยนะครับ

ด้านซ้ายเป็นห้องน้ำ

การจัดวาง Layout และสุขภัณฑ์ที่ใช้เป็นไปตามมาตรฐานของ LPN




ด้านขวาเป็นระเบียงห้อง


ขนาดของระเบียงเป็นไปตามมาตรฐานของ LPN


ส่วนอีกด้านจะเป็นห้องนอนทั้ง 2 ห้อง ด้านขวาจะเป็นห้องนอนเล็ก ด้านซ้ายจะเป็นห้องนอนใหญ่

เรามาดูห้องนอนเล็กกันก่อน

ขนาดห้องค่อนข้างจะเล็กอยู่เหมือนกันนะครับ อาจจะทำเป็นห้องนอนให้เด็กๆ ก็ถือว่าลงตัวทีเดียว

ทางโครงการใช้เตียง Built in เข้ากับขนาดห้องพอดี

ด้านหน้าห้องเป็นจุดวางตู้เสื้อผ้า และมีโต๊ะทำงานเล็กๆ ไว้ด้วย


มีช่องหน้าต่างมองทะลุไปที่ห้องนอนใหญ่ได้ด้วย อาจจะทำไว้เพื่อไม่ให้ห้องดูทึบหรือดูอึดอัดเกินไป

มาดูที่ห้องนอนใหญ่กันต่อ

ขนาดจะใหญ่ขึ้นมาอีกหน่อย

วางเตียงขนาด 5 ฟุตกำลังดีครับ


ข้างเตียงเป็นทางเดินไปห้องน้ำที่อยู่ด้านหลัง

ตรงนี้จะเป็นจุดที่วางตู้เสื้อผ้า อยู่ตรงกลางระหว่างห้องน้ำกับระเบียง

ด้านขวาจะมีห้องน้ำในตัวให้อีก 1 ห้อง


การจัดวางและสุขภัณฑ์ที่ใช้ก็จะเหมือนกับห้องข้างนอก




อีกด้านเป็นประตูออกไปที่ระเบียง


ขนาดของระเบียงเป็นไปตามมาตรฐานของ LPN


แบบสุดท้ายไปดูห้อง 1 ห้องนอนขนาด 26 ตารางเมตร

ห้องนี้จะเป็น Layout ตามแบบฉบับของ LPN ที่หลายๆ คนคุ้นเคย

ห้องนี้คิดค่าตกแต่งเพิ่ม 225,000 บาท

เข้ามาในห้องก็จะส่วน Living Area อยู่ด้านหน้าเหมือนเดิม

พื้นที่วางโซฟา ถ้าจะวางให้เต็มพื้นที่เลย สามารถวางโซฟา 3 ที่นั่งได้เลยนะครับ

ฝั่งตรงข้ามเป็นจุดที่วางทีวี

ติดกับ Living Area จะเป็นห้องนอน

ห้องนอนจะกั้นด้วยประตูกระจกบานเลื่อน 2 ตอน

ในห้องนอนวางเตียงขนาด 5 ฟุต มีพื้นที่ข้างๆ เตียงเหลือนิดหน่อย


ปลายเตียงจะเป็นตู้เสื้อผ้า 2 บาน ที่โครงการ Built in ไว้ให้

ออกมาดูที่ส่วนครัวกันต่อ

เคาน์เตอร์ครัวที่ได้ จะเป็นครัวแบบมาตรฐานของ LPN นะครับ เหมาะสำหรับการเตรียมอาหารมากกว่าทำอาหารเอง

พื้นที่ในส่วนครัว

ฝั่งตรงข้ามกับเคาน์เตอร์ครัว จะเป็นจุดที่วางดต๊ะทานอาหาร วางได้เป็นโต๊ะเล็กๆ ขนาด 2 ที่นั่ง

ระเบียงจะอยู่ติดกับส่วนครัวนี่นะครับ

กั้นด้วยประตูกระจกบานเลื่อน 2 ตอน

พื้นที่ระเบียงค่อนข้างกว้างพอสมควร

มีธรณีประตูเตี้ยๆ กั้นอยู่ด้วย

จากระเบียงเรากลับเข้าดูห้องน้ำด้านในกันต่อ


การจัดวางสุขภัณฑ์ในห้องน้ำ

อ่างล้างหน้าเป็นเคาน์เตอร์ยาวเต็มแนวผนัง วัสดุเป็น Fiber

กระจกเงาขนาดพอดีตัว

โถสุขภัณฑ์ของ American Standard อยู่ติดกับอ่างหน้าล้าง

อีกด้านเป็น Shower Box ที่มีฉากกั้นมาให้ด้วย

ชุดฝักบัวของ Hafele


แบบห้องขนาดอื่นๆ



โดยรวมแล้วโครงการ Lumpini Mixx เทพารักษ์-ศรีนครินทร์ ถือว่าอยู่ในทำเลที่น่าสนใจ เหมาะกับคนที่ทำงานอยู่ไม่ไกลจากย่านนี้มากนัก ที่ตั้งโครงการยังอยู่ในเขตชุมชนใกล้ๆ แยกศรีเทพา พื้นที่รอบๆ เป็นบ้านเดี่ยว ทาวน์เฮ้าส์ และอาคารพาณิชย์เกือบทั้งหมด ริมถนนเทพารักษ์แถบนี้เต็มไปด้วยร้านรวงต่างๆ มากมาย มีอาหารการกินขายตั้งแต่เช้ายันค่ำ รถราก็วิ่งผ่านไปมาตลอดวัน บรรยากาศจึงคึกคักไม่เงียบเหงา แหล่งช็อปปิ้งสำคัญๆ ของย่านนี้ก็อยู่รอบๆ โครงการ การเดินทางถือว่าสะดวกทีเดียว หากไม่ใช้รถยนต์ส่วนตัวก็มีรถโดยสารประจำทางคอยให้บริการอยู่ตลอด แถมในอนาคตอันใกล้จะมีรถไฟฟ้าขยับใกล้เข้าอีกหน่อยคือ BTS สถานีสำโรง ที่ต่อขยายมาจาก BTS แบริ่ง อยู่บริเวณปากทางถนนเทพารักษ์ และยังจะมีรถไฟฟ้าสายสีเหลืองเพิ่มมาอีก คราวนี้จะใกล้เข้ามาอีกคือสถานีศรีด่านอยู่ใกล้ๆ แยกศรีเทพา ในอนาคตการเดินทางจะสะดวกสบายเพิ่มขึ้นอีกมาก
ส่วนเรื่องวัสดุอุปกรณ์ที่จัดมาให้ก็ได้ตามมาตรฐานของ LPN จะต่างกันตรงที่โครงการนี้ถือว่าเป็นแบรนด์ใหม่ของ LPN ที่มีห้อง Layout แบบใหม่เพิ่มขึ้นมา แต่เรื่องวัสดุอุปกรณ์ที่ใช้ก็จะได้ตามคุณภาพของ LPN เหมือนเดิมครับ
หมายเหตุ : โครงการที่ส่งมอบอาจมีรายละเอีย