Pause Sukhumvit 103 : รีวิวคอนโด

การเดินทาง
อ่านรีวิวอื่นที่เกี่ยวกับ
ติดต่อโครงการ


Pause Sukhumvit 103 (PREVIEW)
Pause Sukhumvit 103 : รีวิวคอนโด

Pause Sukhumvit 103 คอนโด Low Rise สูง 8 ชั้น ในซอยแบริ่ง (สุขุมวิท 107) ใกล้รถไฟฟ้า BTS แบริ่ง จาก Origin Property

รายละเอียดโครงการ

  • ราคาเริ่มต้น    1,690,000 บาท
  • เจ้าของโครงการ    บริษัท ออริจิ้น พร็อพเพอร์ตี้ จำกัด (มหาชน)
  • ลักษณะคอนโด    Low Rise สูง 8 ชั้น 2 อาคาร
  • พื้นที่โครงการ    1 – 2 – 49 ไร่
  • จำนวนห้อง     268 ยูนิต
  • ที่จอดรถ    80 คัน คิดเป็น 30% (ไม่รวมจอดซ้อนคัน)
  • ที่ตั้งโครงการ    ซอยสุขุมวิท 103 แขวงบางนา เขตบางนา กรุงเทพฯ
  • คาดว่าจะแล้วเสร็จ    กลางปี 2560
  • ค่าส่วนกลาง    38 บาท/ตารางเมตร/เดือน
  • ค่ากองทุน    380 บาท/ตารางเมตร

สถานที่สำคัญใกล้เคียง

  • ตลาดอุดมสุข
  • ไบเทค บางนา
  • เซ็นทรัล ซิตี้ บางนา
  • บิ๊กซี บางนา
  • ซีคอน สแควร์
  • พาราไดซ์ พาร์ค

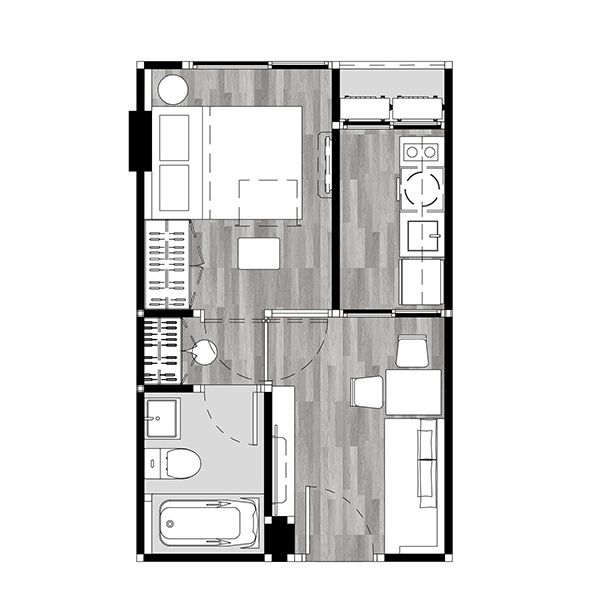
ลักษณะห้องและขนาดห้อง

  • 1 Bedroom Type Bs ขนาด 20.40 – 24.30 ตารางเมตร
  • 1 Bedroom Type B ขนาด 25.60 – 32.78 ตารางเมตร
  • 2 Bedroom Type B Plus ขนาด 33.52 – 39.46 ตารางเมตร
  • 2 Bedroom Type C ขนาด 40.97 – 43.42 ตารางเมตร
  • 2 Bedroom Type B Plus 3 ขนาด  44.73 ตารางเมตร

สิ่งอำนวยความสะดวก

  • Lobby
  • Infinity Edge Pool
  • Sky Fitness Room
  • ห้องอ่านหนังสือ
  • BBQ Zone
  • Rooftop Garden และสวนหย่อมรอบโครงการ

สอบถามรายละเอียดเพิ่มเติม โทร : 02-399-4466

ดูรายละเอียดเพิ่มเติม : pause.origin.co.th

บทความ รีวิวคอนโด ล่าสุด