

วันนี้เราจะพาทุกคนไปดูคอนโดวิวแม่น้ำเจ้าพระยาชื่อ Rhythm Sathorn อีกหนึ่งโครงการที่สร้างเสร็จแล้วของ AP ถ้าใครผ่านไปผ่านมาตรงสะพานตากสินบ่อยๆ น่าจะคุ้นตากับตึกนี้ดีนะครับ เพราะตำแหน่งที่ตั้งก็อยู่ฝั่งสาทรใต้ ตรงเชิงสะพานตากสินพอดิบพอดี ถึงแม้ที่ตั้งของ Rhythm Sathorn จะไม่ได้อยู่ติดริมแม่น้ำเจ้าพระยา แต่ก็เรื่องของวิวแม่น้ำจากห้องพักที่นี่ก็สวยไม่แพ้ใครเลยนะครับ ยิ่งในเรื่องของการดีไซน์ภายใต้คอนเซปต์ที่ว่า W – Double of everything ก็น่าสนใจไม่น้อยเลย ไปดูรายละเอียดโครงการกันดีกว่าครับ

ราคาเริ่มต้น 5,100,000 บาท
เจ้าของโครงการ บริษัท เอพี(ไทยแลนด์) จำกัด (มหาชน)
ลักษณะโครงการ High Rise 2 อาคาร สูง 37 ชั้น และ 41 ชั้น
จำนวนห้อง 910 ยูนิต
เนื้อที่ทั้งหมด ประมาณ 4 ไร่ 1 งาน 91.6 ตารางวา (1,791.6 ตารางวา)
ที่จอดรถ ประมาณ 489 คัน
ที่ตั้งโครงการ ซอย สาทร 21 ถนนสาทรใต้ แขวงยานนาวา เขตสาทร กรุงเทพมหานคร
คาดว่าจะแล้วเสร็จ พร้อมเข้าอยู่
วิธีการเดินทาง
ว่ากันด้วยเรื่องทำเลที่ตั้งของ Rhythm Sathorn แบบชัดๆ ต้องบอกว่าอยู่บนถนนสาทรใต้ค่อนไปทางถนนเจริญกรุง ตรงปากซอยสาทร 21 เชิงสะพานตากสินเลยครับ เส้นทางหลักๆ ที่จะใช้ในการเดินทางมายังโครงการ ก็คงหนีไม่พ้นถนนสาทรนะครับ เว้นแต่ว่าจะเริ่มต้นจากตรงช่วงไหน จะเริ่มกันตั้งแต่ต้นถนนสาทร แยกนราธิวาสราชนครินทร์ หรือว่าแยกสุรศักดิ์ แต่หลักๆ คือให้มุ่งหน้าไปถนนเจริญกรุง พอผ่านแยกสุรศักดิ์มาแล้ว ไม่ต้องขึ้นสะพานตากสินนะครับ ให้ชิดซ้ายวิ่งผ่านเชิงสะพานมานิดหน่อย ไม่เกิน 200 เมตร ก็จะเห็นทางเข้าโครงการแล้ว

ดูแผนที่โครงการ Rhythm Sathorn 21 ก่อนจะได้เห็นตำแหน่งที่ตั้งของโครงการชัดเจนขึ้นครับ

เราเลือกใช้เส้นทางถนนสาทรใต้มุ่งหน้าไปเจริญกรุงนะครับ

ตรงนี้เป็นแยกใหญ่ ถนนสาทร ตัดกับ ถนนราธิวาสราชนครินทร์ หลายๆ คนคงคุ้นตากับ landscape ตรงนี้ดี

ข้ามแยกมาแล้วก็ตรงมาเรื่อยๆ ครับ

วิทยาลัยเซนต์หลุยส์ และโรงพยาบาลเซนต์หลุยส์ สถานพยาบาลเอกชนใหญ่บนถนนสาทรใต้ครับ

พอเห็นสถานีรถไฟฟ้าสุรศักดิ์ ก็เตรียมเข้าสองเลนซ้ายเลยครับ

แยกสุรศักดิ์เป็นอีกหนึ่งแยกใหญ่นะครับก่อนขึ้นสะพานตากสิน ถ้าเลี้ยวซ้ายเข้าถนนเจริญราษฎร์ก็จะเจอกับด่านทางด่วนเลย แต่เดี๋ยวเราตรงข้ามแยกนี่ไปนะครับ

ข้ามแยกสุรศักดิ์มาแล้วก็ชิดซ้ายไปตามป้ายบอกไปเจริญกรุงเลยครับ ไม่ต้องขึ้นสะพานตากสินนะ

ผ่านเชิงสะพานตากสินมานิดหน่อยก็จะเริ่มเห็นบ้านเรือนและบรรยากาศแบบ old town นิดๆ ก็ใกล้จะถึงแล้วครับ

พอเห็นป้ายซอยสาทร 21 ก็ถึงหน้าโครงการ Rhythm แล้วครับ

เลี้ยวซ้ายเข้าไปในโครงการกันได้เลย
พ้นจากเส้นทางถนนสาทรแล้ว การเดินทางมายังโครงการยังสามารถเลือกได้อีกหลายเส้นทาง เพียงแต่ต้องดูเส้นทางเดินรถให้ดีก่อน เนื่องจากถนนหน้าโครงการมีเส้นทางเดินรถแค่ทางเดียว หลายๆ ครั้งเราจึงต้องขับรถเลยแยกสุรศักดิ์ไปกลับรถมายังโครงการอีกที เช่น เส้นทางจากถนนเจริญกรุง หรือจากฝั่งธนบุรี โดยการข้ามสะพานตากสินมา แต่ถ้ามาจากทางฝั่งพระราม 3 ก็ใช้เส้นทางถนนเจริญราษฎร์ เลี้ยวซ้ายที่แยกสุรศักดิ์มาอีกนิดหน่อยก็ถึงโครงการแล้ว เช่นเดียวถ้าเลือกมาจากถนนสุรศักดิ์ พอถึงแยกสุรศักดิ์ก็เลี้ยวขวามาได้เลย นอกเหนือจากนี้ก็ยังมีด่านขึ้นลงทางด่วนก็อยู่ไม่ห่างจากตัวโครงการมากนัก ทั้งด่านสาทร ตรงหัวถนนเจริญราษฎร์ และด่านสุรวงศ์ (สีลม) ทำให้การเดินทางด้วยรถยนต์ในบริเวณนี้สะดวกขึ้น แต่อย่างที่ทราบกันดีอยู่แล้วว่า ในช่วงเช้าและเย็นของวันทำงาน ถนนในย่านนี้จะมีปริมาณรถมาก
ดังนั้นอีกหนึ่งการเดินทางที่สะดวกที่สุดในการเลี่ยงปัญหารถติดก็คือ รถไฟฟ้า BTS ห่างจากหน้าโครงการออกไปเพียง 300 เมตร ก็จะเจอสถานี BTS สะพานตากสิน แถมด้านท้ายของสถานียังอยู่ติดกับแม่น้ำเจ้าพระยา ทำให้มีทางเลือกในการเดินทางด้วยเรือด่วนและเรือข้ามฟากเพิ่มขึ้นอีกทาง วันไหนชิวๆ อยากนั่งเรือต่อรถก็ทำได้ไม่ยาก ส่วนการเดินทางด้วยระบบขนส่งมวลชนอื่นๆ ก็มีให้เลือกมากมายหลายรูปแบบ เริ่มตั้งแต่ รถเมล์ รถสองแถว รถแท็กซี่ ตุ๊กตุ๊ก มอเตอร์ไซค์รับจ้าง ครบทุกวิธีเลยทีเดียวครับ

อันนี้เราจะลองเดินไปทางบางรัก ไปสถานีรถไฟฟ้าสะพานตากสินกันบ้าง ออกจากโครงการแล้วก็เลี้ยวซ้ายเลย

เดินออกมาไม่ไกลก็ใกล้จะถึงสามแยกบางรักแล้ว บริเวณนี้จะมีรถราคึกคักมากนะครับ

นอกจากจะเลี้ยวเข้าถนนเจริญกรุงได้ทั้งซ้ายและขวาแล้ว แยกนี้ยังเป็นจุดกลับรถเข้าถนนสาทรเหนืออีกด้วยนะครับ แต่เดี๋ยวเราข้ามถนนไปดูฝั่งตรงข้ามกัน

พอข้ามถนนมาแล้ว จะเห็นว่าบริเวณนี้มีรถเข็นแผงลอยเรียงรายเต็มเลย ได้บรรยากาศแบบวิถีชุมชนมากๆ เดินตรงไปอีกหน่อยก็จะถึงทางขึ้นสถานีรถไฟฟ้าแล้วครับ

ถึงทางขึ้นสถานีรถไฟฟ้าสะพานตากสินแล้วครับ บริเวณนี้จะเป็นจุดรวมการเดินทางที่หลากหลายมากครับ มีทั้งวินมอเตอร์ไซค์ คิวรถสองแถวสาย 1256 (บางรัก-ช่องนนทรี) ลึกเข้าไปสุดซอยก็จะเป็นท่าน้ำสาทร จุดขึ้นเรือข้ามฟาก และเรือด่วนเจ้าพระยาครับ

บริเวณตีนบันไดสถานีรถไฟฟ้านี้มีรถเข็นแผงลอยขายของกินเพียบเลย และผู้คนก็ขึ้นรถ ต่อเรือกันเยอะแยะไปหมด และในซอยนี้ยังเป็นที่ตั้งของโรงแรมแชงกรีลาด้วยนะครับ

เดินไปดูบรรยากาศตรงบางรักกันนิดหน่อยครับ แค่ช่วงต้นๆ ก็คึกคักผู้คนหนาแน่นเกือบทั้งวันเลยทีเดียว ร้านสะดวกซื้อ รถเข็นขายอาหาร บรรดาช่างซ่อมต่างๆ มีให้เห็นตลอดทางครับ

บรรยากาศถนนเจริญกรุงบริเวณนี้เรียกกันรวมๆ ว่าย่านบางรักนะครับ ที่เห็นด้านซ้ายมือคือ ห้างโรบินสันบางรัก ห้างสรรพสินค้าหลักๆ ของย่านนี้ และตึกสีขาวใหญ่ๆ นั่นคือ The State Tower ครับ

ข้างๆ โรบินสันบางรักมีตลาดนัดบางรักบาซาร์ลึกเข้าไปในซอยเจริญกรุง 50 ทั้งซอยเลยครับ เปิดตั้งแต่เย็นๆ ไปจนค่ำ สาวๆ ขาช็อปไม่ควรพลาด และในซอยบริเวณนี้มีอาหารการกินอร่อยๆ เพียบเลยนะครับทั้งซ้ายและขวา แนะนำให้เดินสำรวจทีละซอยไปเลย รับรองมีให้ชิมทั้งวันทั้งคืน
วิเคราะห์รอบโครงการ
ด้วยทำเลที่ตั้งของ Rhythm Sathorn ซึ่งอยู่ในย่านชุมชนเก่าที่เป็นที่รู้จักกันดีในชื่อ บางรัก บรรยากาศใกล้ๆ โครงการที่ค่อนไปทางถนนเจริญกรุงอันเป็นถนนเก่าแก่ของกรุงเทพ จึงคงเสน่ห์ของชุมชนดังเดิมไว้เต็มเปี่ยม บ้านเรือนเก่าๆ ประตูบานเฟี้ยมยังมีให้เห็น ที่สำคัญเรื่องอาหารการกินในย่านนี้จัดว่าอุดมสมบูรณ์มากๆ มีร้านอร่อยเก่าแก่หลายร้าน รวมถึงร้านค้าแผงลอยแนวสตรีทฟู้ดเรียงรายเต็มไปหมด แถมยังมีขายกันตั้งแต่เช้ายันค่ำ บางร้านเปิดขายกันเฉพาะกลางดึก ความอร่อยในย่านนี้จึงมีให้ฝากท้องกันได้เกือบตลอด 24 ชั่วโมงเลยทีเดียว และที่ลืมไม่ได้เลยก็คือ ห้างโรบินสัน บางรัก ห้างใหญ่แห่งเดียวบนถนนสายนี้ ที่แทรกตัวอยู่กลางชุมชนอย่างกลมกลืน ผ่านจากความเจริญในแบบชุมชมเก่าไปแล้ว ถ้าข้ามมาทางฝากถนนสาทรบ้าง บนถนนสายนี้ก็จะเห็นถึงความเจริญในรูปแบบเมืองใหญ่ เพราะเป็นย่านธุรกิจที่สำคัญ มีอาคารสำนักงานใหญ่ๆ เบียดเสียดกันอยู่มากมาย อย่างที่หลายคนคงทราบกันดีอยู่แล้ว จึงไม่ต้องบรรยายให้มากความนะครับ
ทีนี้มาดูเรื่องสถานที่สำคัญๆ ในย่านนี้ก็บ้าง ซึ่งมีอยู่มากมายหลายแห่งเลยครับ ตั้งแต่วัดวาอารามไปจนถึงแหล่งช็อปปิ้งใหญ่ๆ ยกตัวอย่างเช่น เอเชียทีค วัดยานนาวา ศาลแพ่งกรุงเทพใต้ มหาวิทยาลัยเทคโนโลยีราชมงคล วิทยาเขตกรุงเทพใต้ โรงเรียนสตรีศรีสุริโยทัย อู่ต่อเรือกรุงเทพ สะพานปลา โรงแรมแชงกรีรา โรงพยาบาลเลิดสิน โรงเรียนอัสสัมชัญบางรัก โรงเรียนอัสสัมชัญคอนแวนต์ สเตททาวเวอร์ ไปรษณีย์กลาง ฯลฯ
สำหรับตัวโครงการ Rhythm Sathorn เป็นคอนโดมิเนียมแบบ High Rise 2 อาคาร บนที่ดินขนาด 4 ไร่ 1 งานเศษๆ โดยแบ่งเป็นตึก North สูง 37 ชั้น และตึก South สูง 41 ชั้น มียูนิดที่พักอาศัยรวม 910 ยูนิต ทั้งหมดนี้อยู่ภายใต้คอนเซปต์ “W – Double of everything” ซึ่งต้องการจะสื่อถึงลักษณะของตัวอาคารทั้ง 2 ตึก ที่วางตัวต่อกันเป็นรูปตัว W และยังหมายถึงการ Double Value ในหลายๆ ด้าน เช่น Double View ซึ่งมีให้เลือกชมทั้งวิวแม่น้ำและวิวเมือง, Double Floor Sky High Facility เพิ่มพื้นที่ส่วนกลางบนชั้นดาดฟ้าของทั้ง 2 ตึก, Double Convenience ด้วยจำนวนลิฟต์โดยสารมากถึง 11 ตัว และพื้นที่จอดรถใต้ดินอีก 4 ชั้น เป็นต้น
จุดหลักๆ ที่เป็นพื้นที่ที่ 2 อาคารเชื่อมต่อถึงกันได้ก็คือ บริเวณลานจอดรถ และล็อบบี้ชั้นล่างเท่านั้น ส่วนที่พักอาศัยนั้นจะแยกออกจากกัน และใช้ระบบ Key Card สำหรับการเข้าออกตึก เช่นเดียวกันกับ Facility หลัก ที่บนดาดฟ้า ซึ่งมีทั้งสระว่ายน้ำ Panoramic View พร้อมห้องฟิตเนส ห้องซาวน่า และสวนหย่อมบนดาดฟ้า จะแยกเป็นตึกใครตึกมัน โดยตึก North จะอยู่ที่ชั้น 37 และตึก South จะอยู่ที่ชั้น 41 สูงกว่านิดหน่อยครับ แต่เรื่องวิวรับรองว่าสวยไม่แพ้กันเลย

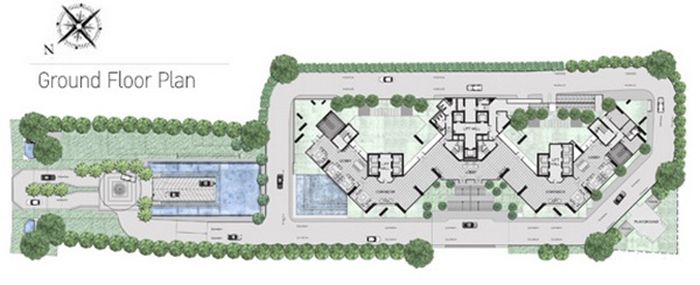
แปลนอาคารที่ชั้นแรกครับ จะเห็นว่าจากทางเข้าหน้าโครงการมาก็จะตรงดิ่งลงสู่ลานจอดรถใต้ดินเลยนะครับ และตัวอาคารทั้ง 2 ตึกก็เรียงตัวกันเป็นรูป W ชัดเจน

ส่วนที่พักอาศัยจะเริ่มตั้งแต่ชั้น 3 ขึ้นไปทั้ง 2 ตึกเลยนะครับ

การจัดวางตำแหน่งห้องในแต่ละ wing จะเน้นเรื่องความเป็นส่วนตัว จำนวนห้องจึงมีเพียง 6 ยูนิต ต่อ1 wing เท่านั้น

Facility จะแยกกันในแต่ละตึกเลยนะครับ โดยตึก South จะอยู่บนชั้น 36 และตึก North อยู่บนชั้น 40 ซึ่งทุกพื้นที่การใช้งานจะมีขนาดและจำนวนเท่ากันหมด เพื่อการใช้งานที่สะดวกสบายของลูกบ้านแต่ละตึกครับ

เปิดประตูเข้ามาจะเจอกับโถงกลางของ Lobby ซึ่งเป็นจุดเชื่อมพื้นที่ Lobby ของทั้งตึก South และ North ไว้ก่อนจะไปขึ้นลิฟท์ของแต่ละตึก

บรรยากาศโดยรวมของบริเวณ Lobby นะครับ มีชุดโซฟารับรองอยู่หลายชุดเลย

ลูกบ้านสามารถลงมานั่งเล่นพักผ่อนที่ Lobby ได้สบายเลยครับ หรือเวลามีแขกมาเยี่ยมก็ใช้ตรงนี้เป็นที่นัดพบพูดคุยได้

บรรยากาศภายใน Lobby ตกแต่งไว้อย่างหรูหรามากๆ ทั้งเพดานสูงโปร่งประดับด้วยโคมไฟระย้า

การเข้าออกจะใช้ระบบ Key Card และลิฟท์โดยสารแบบล็อคชั้นนะครับ

บรรยากาศสบายๆ มุมนึงของสวนลอยฟ้าที่ชั้น 36 ของตึก South ครับ

มีศาลานั่งเล่นให้รับลมชมวิวกันได้เพลินๆ

วิวนี้จากตรงศาลานั่งเล่น มองลงมาทางแยกสุรศักดิ์ครับ ด้านนี้จะได้ City View สวยๆ ทั้งกลางวันและกลางคืน

จากมุมเดียวกันมองไปทางใต้หน่อยจะเห็นคุ้งน้ำเจ้าพระยาอยู่ไกล แถมยังมองเห็นได้ไกลไปถึงบางกระเจ้าและสะพานภูมิพลเลยทีเดียว

ที่นอนเล่นกลางแจ้งพร้อมวิวสวยๆ สามารถมานอนเล่นได้ทั้งเช้าและเย็นเพราะสวยไปคนละแบบจริงๆ

สระว่ายน้ำถูกออกแบบให้มีลักษณะคล้ายตัว L ยาวไปตามแนวขอบอาคารเลยครับ

ว่ายน้ำไปชมวิวไปได้ด้วย เพราะเป็น infitity edge pool มุมนี้มองลงไปเห็นแม่น้ำเจ้าพระยาและสะพานตากสินพอดีเลย

มุมจากุชซี่แช่ตัวได้สบายเลย

สระว่ายน้ำที่นี่เป็นระบบน้ำเกลือนะครับ ตัวสระไม่ได้กว้างมาก แต่เน้นความยาวที่เลียบไปตามแนวอาคารมากกว่า

วิวมุมสูงจากบนชั้น 36 นี่กว้างสุดๆ เลยครับ ได้วิวโค้งแม่น้ำเจ้าพระยาสวยมาก

City View ของย่านสาทรมุมนี้ เห็นตึกใหญ่ๆ ที่เป็น Landmark ครบเลยครับ

ส่วนมุมนี้ จะเห็นบรรยากาศบริเวณบางรัก และถนนเจริญกรุงที่โค้งขนานไปกับแม่น้ำเจ้าพระยาเลย

จุดอาบน้ำล้างตัวริมสระว่ายน้ำครับ เป็น rain shower ด้วย

ในห้องฟิตเนสที่อยู่เหนือสระว่ายน้ำขึ้นมาอีกชั้น มีอุปกรณ์ครบครันเลยครับ

ออกกำลังกายไปก็ชมวิวสวยๆ กันไปได้เลย

อุปกรณ์รวมถึงเครื่องออกกำลังกายมีเหมือนกันทั้ง 2 ตึกเลยนะครับ
สิ่งอำนวยความสะดวก
พาชมห้องตัวอย่าง
มาถึงในส่วนของห้องพักอาศัยกันบ้าง Rhythm Sathorn นี้ จะมีห้องชุดให้เลือกหลากหลายแบบทั้งแบบ 1 Bedroom และ 2 Bedroom โดยจะมีพื้นที่ใช้สอยภายในห้องเริ่มตั้งแต่ 35-65.7 ตร.ม. ครับ ส่วนเรื่องการจัดวาง Layout ของแต่ละยูนิตก็จะเน้นความเป็นส่วนตัว เพราะในแต่ละ wing จะมีเพียง 5 ยูนิตเท่านั้นเอง
สำหรับห้องตัวอย่างที่เราได้เข้าไปเยี่ยมชมกันในครั้งนี้ จะเป็นห้องแบบ 1 Bedroom นะครับ แต่มีด้วยกัน 2 Type ซึ่งมีชื่อเรียกว่า Sky Living และ Sky Kitchen ภาพโดยรวมของทั้ง 2 Type จะต่างกันไม่มาก ทั้งเรื่องขนาดห้อง และฟังก์ชั่นภายใน แต่จะเน้นพื้นที่ใช้สอยตามวัตถุประสงค์ที่ต่างกันครับ เดี๋ยวไปดูตามภาพถ่ายของแต่ละห้องกันเลยดีกว่า

เปิดประตูเช้าห้องมาก็จะเป็น Living Area แบบนี้เลยครับ

ด้านขวาของประตูทางเข้าห้อง จะมีห้อง Laundry Room ซ่อนเครื่องซักผ้า และมีชั้นเก็บของ Built-in มาให้เป็นระเบียบเรียบร้อย

พื้นที่ภายในโซนนี้ถือว่ากว้างเลยทีเดียว ขนาดวางโซฟาชุดใหญ่ลงไปแล้วยังเหลือที่ว่างอีกเยอะเหมือนกัน

ตู้เก็บรองเท้าก็ Built-in ติดมาให้ที่ผนังอีกด้านของประตูทางเข้าครับ

บริเวณนั่งเล่นอยู่ติดกับห้องครัวเลยนะครับ ซึ่งภายในห้องออกแบบมาให้เปิดโล่งรับแสงธรรมชาติได้ดี ทำให้ไม่อึดอัดเลย

ทีวีแขวนบนชั้นติดผนังช่วยประหยัดพื้นที่ภายในห้องได้ดีเลยครับ

บรรยากาศโดยรวมของห้องนั่งเล่นครับ ออกแบบมาได้ดูเรียบร้อยลงตัวทุกมุมดีนะครับ

ห้อง Type นี้จะเน้นพื้นที่ในห้องครัวให้กว้างหน่อยตามชื่อเลยนะครับ ใครที่ชอบทำกับข้าวน่าจะถูกใจห้องนี้

ประตูห้องครัวเป็นกระจกบานเลื่อน 3 ตอนครับ ทำให้ได้ครัวปิดดูเป็นสัดส่วนมากๆ

รางเลื่อนประตูกั้นพื่นที่ห้องให้เป็นสัดส่วนครับ พื้นห้องครัวจะปูด้วยกระเบื้องเพื่อการทำความสะอาดที่ง่ายขึ้นครับ

เคาน์เตอร์ครัวพร้อมเตาไฟฟ้า เครื่องดูดควัน และซิงค์ล้างจานครบชุดเลย

ตำแหน่งวางตู้เย็นอยู่ติดประตูห้องครัว ด้านบนมีตู้เก็บของและชั้นวางอุปกรณ์ต่างๆ

ประตูตู้ด้านบนเป็นบานพับแบบเปิดขึ้นด้านบนนะครับ ตู้ตรงเหนือตู้เย็นอาจจะหยิบของยากหน่อย

ซิงค์ล้างจานเป็นแบบฝังติดกับเคาน์เตอร์ครัวตามภาพเลย

เตาไฟฟ้าสองหัวยี่ห้อ Franke

เครื่องดูดควันยี่ห้อ Franke เข้าชุดกันเลยครับ

โต๊ะกินข้าว Built ให้เป็นเคาน์เตอร์ยาวต่อจากเคาน์เตอร์ครัวติดกับหน้าต่าง เปิดรับวิวเวลารับประทานอาหารได้เต็มตา พร้อมหน้าต่างบานกระทุ้งไว้ช่วยระบายอากาศ

โต๊ะกินข้าวหันหน้าออกนอกหน้าต่าง ได้มุมดีๆ ไว้นั่งเล่นดูวิวแม่น้ำเจ้าพระยาให้เพลินไปเลยครับ

เนื่องจากบริเวณห้องครัวติดกระจกบานใหญ่เต็มผนัง แสงภายนอกจึงเพิ่มความสว่างให้กับห้องได้เยอะเลยทีเดียว

มาดูในห้องนอนกันบ้างครับ ห้อง Type นึ้ ระเบียงจะอยู่ในห้องนอนนะครับ

ภายในห้องพอวางเตียงขนาด 5 ฟุตลงไปแล้ว ยังเหลือที่ว่างข้างๆ เตียงอีกพอสมควรเลยครับ

ปลายเตียง Built-in เป็นชั้นวางของเล็กๆ และเว้นที่ไว้แขวนทีวีติดผนัง และที่ติดกันเป็นมุมแต่งตัวครับ

ประตูระเบียงเป็นกระจกบานเลื่อนที่หนาและหนักเอาเรื่องเลยครับ ออกแบบมาได้แน่นหนามากๆ ส่วนธรณีประตูก็กั้นไว้สูงเลยทีเดียว เวลาเดินเข้าออกต้องระวังสะดุดกันหน่อยครับ

พื้นที่ระเบียงไม่ได้กว้างมากนะครับ แต่ก็พอใช้งานได้ดี ทางโครงการติดตั้งที่แขวนผ้าแบบพับเก็บได้มาให้เรียบร้อย

อีกด้านของระเบียบเป็นห้องแขวนคอมเพรสเซอร์แอร์ครับ มีประตูปิดเรียบร้อยเลย

ภายนี้มองจากระเบียงกลับเข้าไปในห้องครับ เดี๋ยวเราไปดูในห้องน้ำกัน

ห้องอาบน้ำออกแบบมาเซ็กซี่มากเลยนะครับ เพราะติดกระจกเข้ามุมตรงอ่างอาบน้ำพอดีเลย ถ้าไม่ได้เป็นคนเปิดเผยมากๆ ก็สามารถติดม่านเพิ่มได้ ส่วนห้องส้วมจะแยกออกมาต่างหากนะครับ

ตู้เสื้อผ้าติดกระจกบานใหญ่เต็มผนังเลย อันนี้ทางโครงการก็ Built-in ไว้ตรงหน้าห้องน้ำ อาบน้ำเสร็จก็ออกมาแต่งตัวได้เลย

ธรณีประตูห้องน้ำจะกั้นสูงขึ้นมาประมาณ 5 ซม. แทนการดร๊อปพื้นห้องน้ำครับ

อ่างอาบน้ำอยู่ชิดกับกระจกเลย โซนตรงกลางเป็นอ่างล้างหน้าครับ

อ่างล้างหน้าทรงกลม ผนังทำเป็น Low Wall เอาไว้วางของได้ครับ

อีกด้านเป็นห้องอาบน้ำ ซึ่งกันกระจกเทมเปอร์ พร้อมชุดฝักบัวแบบ rain shower มาให้เรียบร้อย

ในห้องน้ำซึ่งแยกออกมาจากบริเวณห้องอาบน้ำนะครับ แต่จะมีประตูทางเข้า 2 ทาง ทั้งจากฝั่งห้องนอน และห้องนั่งเล่นครับ โดยประตูทางด้านห้องนอนจะเป็นประตูบานเลื่อน ส่วนประตูฝั่งห้องนั่งเล่นเป็นบานสวิงครับ

มีอ่างล้างมือขนาดเล็กในห้องน้ำครับ

ชุดโถสุขภัณฑ์พร้อมสายฉีดชำระ

ห้องตัวอย่างแบบต่อไปที่เราได้ดู มีชื่อว่า Sky Living นะครับ ขนาดก็เล็กกว่าห้องก่อนหน้านิดเดียวเอง แต่ก็ยังเป็นแบบ 1 Bedroom เหมือนกัน

กลอนประตูห้องเป็นแบบคันโยก และล็อคด้วยลูกบิดกุญแจ น่าเสียดายที่ไม่มีระบบ Digital Door Lock ให้

การออกแบบของห้องนี้จะเน้นประโยชน์ใช้สอยของห้องนั่งเล่นเป็นหลักนะครับ พอเปิดเข้าห้องมาจะเจอกับ Pentry ครัวเล็กๆ ก่อนเลย

ห้องเก็บอุปกรณ์ซักรีดตรงด้านหลังประตูห้อง Built มาเรียบร้อยเหมือนกันทุกห้อง

การใช้งานของห้องนี้ไม่ได้เน้นการเข้าครัวทำกับข้าวหนักๆ นะครับ เลยได้เป็นครัวเปิด มี island เล็กๆ เป็นส่วนเชื่อมต่อพื้นที่ให้ดูกลมกลืนกัน อ่างล้างจานจะอยู่ฝั่งเคาน์เตอร์ด้านนี้นะครับ

ติดตั้งเตาไฟฟ้า และเครื่องดูดควันไว้ในมุมเล็กๆ ติดกับตู้เย็นเลย อย่างที่บอกว่าไม่เหมาะกับการทำกับข้าวหนักๆ เลยนะครับห้องนี้ เน้นเอาไว้อุ่นอาหารเล็กๆ น้อยๆ มากกว่า

ประตูทางเข้าห้องน้ำจากทางห้องนั่งเล่นครับ อยู่ติดกับห้องเก็บอุปกรณ์ซักรีดนั่นเลย

การตกแต่งเน้นพื้นที่ใช้สอยในบริเวณนั่งเล่นมากหน่อย โต๊ะกินข้าวจึงวางติดกับเคาน์เตอร์ครัวเลย เพื่อการประหยัดพื้นที่ครับ ทำให้มีพื้นที่เหลือในห้องนั่งเล่นมากหน่อย

บริเวณนั่งเล่นสามารถวางชุดโซฟาขนาดใหญ่ได้เลย และยังอยู่ติดกับระเบียงห้องด้วย

เปิดม่านตรงระเบียงออกแล้ว แสงธรรมชาติจะช่วยให้ภายในห้องสว่างขึ้นอย่างเห็นได้ชัดเลยนะครับ ได้บรรยากาศไปอีกแบบ

พื้นที่บริเวณระเบียงไม่กว้างมากครับ แต่ก็พอตากผ้าได้ แถมมีติดตั้งที่แขวนผ้ามาให้แล้วด้วย

อีกด้านเป็นห้องแขวนคอมเพรสเซอร์แอร์ครับ มีประตูปิดมาเป็นระเบียบเรียบร้อยมาก

เปิดประตูออกมาจะเห็นว่าใต้คอมเพรสเซอร์แอร์ยังมีที่ว่างอีกนะครับ มุมนี้อาจจะเอาไว้เก็บอุปกรณ์ทำความสะอาดห้องได้บ้าง ซึ่งจะช่วยให้ภายในห้องเป็นระเบียบมากขึ้นไปอีก

เดี๋ยวเข้าไปดูในห้องนอนกันครับ ตู้ที่เห็นหน้าห้องเป็นตู้เก็บรองเท้านะครับ Built-in มาไว้ตรงกลางระหว่างประตูห้องน้ำกับห้องนอนเข้ามุมพอดีเลย

ภายในห้องนอนดูมีพื้นที่กว้างมากขึ้น เพราะไม่มีระเบียงในห้องนอนนะครับ พื้นที่ห้องจึงกว้างติดริมกระจกเลย

การจัดวาง lay out ภายในห้องนอนก็จะคล้ายๆ กับห้องก่อนหน้านี้เลยครับ

บริเวณปลายเตียงแขวนทีวีติดผนังและมีมุมโต๊ะเครื่องแป้งติดกระจกมาให้เหมือนกัน

ตำแหน่งโต๊ะเครื่องแป้งจะเข้ามุมชิดกำแพงห้องเลยนะครับ คนถนัดซ้ายอาจจะใช้งานลำบากนิดหน่อย แขนอาจจะชนกำแพงได้เวลาแต่งหน้าแต่งตัว

หน้าต่างในห้องนอนติดเป็นกระจกบานใหญ่ มุมนี้สามารถวาง daybed ไว้นั่งเล่นชมวิวได้เต็มตามากๆ

หรือจะจัดเป็นมุมนั่งอ่านหนังสือก็ดีนะครับ เพราะเปิดรับแสงธรรมชาติได้เต็มที่มากๆ

พื้นที่ปลายเตียงเหลืออีกเยอะเลยนะครับ เดินได้สบายๆ ไม่ต้องเบี่ยงตัวหลบมุมเวลาเดินเลย

ห้องอาบน้ำเซ็กซี่เหมือนกันครับ อ่างอาบน้ำติดกระจกเลย อาบไปดูทีวีในห้องนอนไปได้ด้วย

เข้าห้องน้ำมาเจออ่างล้างหน้าทรงกลมอยู่โซนกลางห้องน้ำเลยครับ

อ่างอาบน้ำก็เข้ามุมชิดผนังด้านนึง ซึ่งติดกระจกเข้ามุมไว้ตามภาพ ถ้าไม่ชอบอาบน้ำแบบเปิดโล่งก็แนะนำให้ติดม่านหรือมูลี่เพิ่มได้ครับ

อีกด้านเป็นห้องอาบน้ำ ซึ่งทางโครงการติดตั้งประตูกระจกเทมเปอร์ไว้ให้เป็นสัดส่วน แถมมี Rain Shower มาให้อีก

ถ้าไม่ชอบแบบ Rain Shower ก็มีชุดฝักบัวแบบมือถืออีกชุด ส่วนหัวก๊อกเป็นแบบผสมหน้าตาตามภาพเลยครับ

ห้องน้ำสำหรับทำธุระส่วนตัวจะแยกออกมาจากห้องอาบน้ำนะครับ มีชุดโถสุขภัณฑ์พร้อมสายฉีดชำระเรียบร้อย

อ่างล้างมือขนาดเล็กกระทัดรัดในห้องน้ำครับ

บริเวณของห้องน้ำนี่จะมีประตูเปิดเข้าได้สองทางนะครับ ด้านนี้หันไปทางห้องนอน ประตูห้องน้ำจะเป็นกระจกขุ่นกรอบอลูมิเนียมบานเลื่อน

ส่วนอันนี้จะถ่ายจากในห้องน้ำออกไปทางห้องครัวครับ ประตูด้านนี้เป็นประตูบานสวิง
จากห้องตัวอย่างที่เราได้ชมกันไป หลายคนคงจะกำลังคิดถึงห้องที่ขายให้กับลูกบ้านแล้วใช่มั้ยครับ ว่าทางโครงการจะให้อะไรมาพร้อมห้องบ้าง ต้องบอกกันว่า โครงการ Rhythm Sathorn นี้ ทาง AP ขายกันให้แบบ Full Furnished เลย มีทั้งเฟอร์นิเจอร์ Built-in เฟอร์นิเจอร์ลอยตัว ชุดเคาน์เตอร์ครัว เตาเซรามิค เครื่องดูดควัน อ่างล้างจาน ชุดสุขภัณฑ์ภายในห้องน้ำทั้งหมด รวมถึงเครื่องปรับอากาศด้วย เรียกแทบจะหิ้วกระเป๋าเสื้อผ้าเข้ามาอยู่ได้เลย
ถ้าใครที่สนใจคอนโดในย่านนี้อยู่แล้ว Rhythm Sathorn น่าจะเป็นอีกโครงการที่ตอบโจทย์แบบชีวิตคนเมืองได้เป็นอย่างดี ถึงถนนสาทรจะมีปัญหารถติดหนักหน่วงหน่อย แต่ก็มีทางออกด้วยการเดินทางด้วยรถไฟฟ้าที่สะดวกมากๆ รวมถึงเรือด่วนเจ้าพระยาและเรือข้ามฟากด้วย ซึ่งเชื่อว่าลูกบ้านของโครงการน่าจะได้ใช้บริการกันบ่อยๆ แน่ ยิ่งโครงการนี้เป็นอาคารสร้างเสร็จ และมีลูกบ้านย้ายเข้ามาอยู่ได้ระยะหนึ่งแล้ว เราก็จะมีโอกาสเยี่ยมชมโครงการในบรรยากาศจริง ซึ่งทางโครงการยังมีห้องสวยๆ ให้เลือกอีกหลายตำแหน่ง อย่างไรแล้วลองแวะเข้าไปดูห้องตัวอย่างที่โครงการกันก่อน จะได้ตัดสินใจได้ง่ายขึ้นครับ
ท่านใดที่สนใจโครงการสามารถลงทะเบียนเพื่อติดต่อนัดหมายเข้าชมโครงการและรับสิทธิพิเศษก่อนใครที่นี่ http://goo.gl/yKm3u5