

วันนี้เราจะพาไปรีวิวโครงการ Than Living รัชดา-ประชาอุทิศ จาก Siralai (สิราลัย) คอนโดมิเนียมโครงการใหญ่ซึ่งรวมทั้งตึก High Rise และ Low Rise ไว้ในพื้นที่เดียวกันบนถนนประชาอุทิศ ทำเลที่ตั้งของโครงการค่อนไปทางถนนเลียบทางด่วนรามอินทรา-อาจณรงค์ หรือถนนประดิษฐ์มนูธรรม ดังนั้นการเดินทางมายังตัวโครงการจึงค่อนข้างสะดวกสำหรับคนที่มีรถส่วนตัวนะครับ ส่วนรายละเอียดอื่นๆ ของตัวโครงการเราก็เก็บมาฝากกันครบถ้วนเช่นเคย ว่าแล้วก็ตามไปดูกันเลยดีกว่า

การเดินทาง
อย่างที่บอกว่าด้วยทำเลที่ตั้งของโครงการ Than Living รัชดา-ประชาอุทิศ ที่อยู่มาทางด้านถนนประดิษฐ์มนูธรรม ลองดูจากแผนที่จะเห็นว่าระยะห่างจากสี่แยกแค่ 300 เมตรเท่านั้น เส้นทางนี้ถ้าวิ่งตามถนนเลียบทางด่วนรามอินทรา-อาจณรงค์ไปเรื่อยๆ ผ่านแยกพระราม 9 แยกเพชรบุรี แล้วก็จะเข้าสุขุมวิท 63 และไปบรรจบกับถนนสุขุมวิท เส้นทางนี้สามารถใช้เป็นเส้นทางเข้าออกเมืองได้ดีทีเดียวนะครับ กลับกันถ้ามุ่งหน้าออกนอกเมืองไปก็จะเจอแยกลาดพร้าว แยกเกษตร-ประดิษฐ์ฯ และไปสุดที่ถนนรามอินทรา เส้นทางที่ตัดเชื่อมกับถนนเลียบทางด่วน หรือ ถนนประดิษฐ์มนูธรรม มีอยู่ด้วยกันหลายเส้น ทำให้การเลือกเส้นทางเลี่ยงการจราจรมีตัวเลือกมากขึ้น แม้แต่ด่านขึ้นลงทางด่วนก็อยู่ใกล้นิดเดียวเองด้วย การเดินทางจากทางฝั่งถนนประดิษฐ์มนูธรรมจึงสะดวกมากๆ สำหรับคนที่ใช้รถส่วนตัวเป็นหลัก


ระยะทางจากถนนสุขุมวิท ถึงโครงการประมาณ 6 กม.

หรือถ้าใครสะดวกเดินทางด้วยทางด่วน ก็ใช้ทางด่วนศรีรัชฝั่งขาออก ต่อทางด่วนอาจณรงค์-รามอินทรา มาลงที่ลาดพร้าว เข้าถนนประดิษฐ์มนูธรรม จะเลยถนนประชาอุทิศมานิดหน่อย ต้องกลับรถ แล้วไปเลี้ยวขวาที่แยกประชาอุทิศ-ประดิษฐ์มนูธรรม เพื่อเข้าถนนประชาอุทิศไปอีกประมาณ 300 เมตร ก็ถึงตัวโครงการแล้วครับ

จากถนนประดิษฐ์มนูธรรม ก็จะมาเลี้ยวขวาที่แยกประชาอุทิศ-ประดิษฐ์มนูธรรม ตามป้ายที่บอกว่าไปทางถนนรัชดาภิเษกนะครับ

จากสี่แยกนี้ไปนิดเดียวก็จะเจอสำนักงานขายที่อยู่ด้านซ้ายมือแล้วครับ ส่วนตัวโครงการต้องตรงไปอีกประมาณ 300 เมตร
นอกจากนี้การเดินทางมายังตัวโครงการจากทางฝั่งถนนรัชดา ก็สามารถทำได้เช่นกัน ซึ่งสามารถเลือกได้ 2 เส้นทางคือ เข้าทางแยกห้วยขวาง แล้วเลี้ยวขวาเข้าถนนประชาราษฎร์บำเพ็ญ เพื่อมายังถนนประชาอุทิศ วิ่งมาตามถนนเส้นนี้เรื่อยๆ ก็จะถึงตัวโครงการเลย เสียแต่ถนนเส้นนี้ค่อนข้างแคบ ผ่านแหล่งชุมชนและมีรถรามากหน่อย บางครั้งการจราจรอาจจะไม่คล่องตัวนะครับ ส่วนอีกเส้นทางคือเข้ามาทางแยกศูนย์วัฒนธรรม เข้าถนนเทียมร่วมมิตร แล้ววิ่งมาตามถนนเลียบรั้ว รฟม. มาต่อที่ถนนประชาอุทิศอีกนิดเดียวก็เจอตัวโครงการเลย เส้นทางนี้มีระยะทางที่ใกล้กว่า และการจราจรสะดวกกว่ามากครับ แต่ช่วงดึกๆ อาจจะเปลี่ยวมากหน่อย คุณสาวๆ เดินทางด้วยรถรับจ้างดึกๆ คนเดียวถ้าเลี่ยงเส้นทางนี้ได้ก็ดีครับ นอกจากเส้นทางหลักๆ ที่เราแนะนำกันไปแล้ว ถนนประชาอุทิศก็ยังมีซอยเล็กซอยน้อยเลี่ยงไปออกถนนพระราม 9 ลาดพร้าว หรือรามคำแหงได้อีกหลายทาง ซึ่งคงต้องใช้เวลาในการศึกษาเส้นทางกันสักหน่อยครับ

แผนที่การเดินทางรอบๆ โครงการ

เริ่มจากถนนรัชดาภิเษก ก่อนถึงแยกห้วยขวาง จะเจอป้ายให้เลี้ยวขวาไปประชาอุทิศ ถึงตรงนี้ให้ชิดซ้ายไว้ อย่าลงอุโมงนะครับ

ถ้าพลาดลงอุโมงไปแล้วต้องไปกลับรถยาวเลยล่ะครับ

ถึงแยกห้วยขวางแล้วก็รอสัญญาณไฟเพื่อเลี้ยวขวาเข้าถนนประชาราษฎร์บำเพ็ญ

เลี้ยวขวาเข้าถนนประชาราษฎร์บำเพ็ญ

สำหรับคนที่เดินทางด้วยรถไฟฟ้า MRT พอลงรถไฟฟ้าสถานีห้วยขวางที่อยู่ปากซอยแล้ว ก็จะมีพี่วินคอยให้บริการด้วยนะครับ แต่ก็อาจจะไกลอยู่สักหน่อย

แต่ถ้าใครไม่ชอบนั่งมอเตอร์ไซค์ก็มีรถตุ๊กตุ๊กไว้เป็นอีกหนึ่งตัวเลือก

เข้ามาในซอยแล้วก็อย่างที่เห็นนะครับ ถนนค่อนข้างจะแคบ การจราจรในซอยนี้จึงค่อนข้างจะติดขัด

ตรงมาเรื่อยๆ ก็จะเจอสามแยกนี้ ให้เลี้ยวขวาเข้าถนนประชาอุทิศนะครับ

เลี้ยวขวามาปุ๊บก็จะเจอกับสำนักงานเขตห้วยขวางเลยนะครับ เผื่อใครต้องมาติดต่อทำธุระที่นี่

เข้ามาเรื่อยๆ ถนนจาก 3 เลน ก็จะเหลือ 2 เลน

ถึงสี่แยกถนนประชาอุทิศตัดซอยรัชดานิเวศน์ 24 ก็ตรงไปเลยนะครับ

ถึงตรงนี้ถนนจะขยายเป็น 4 เลนแล้วก็แทบไม่ต่างกันเลย รถจอดสองข้างทางก็กินไปเลนนึงแล้ว

ถนนเส้นนี้โรงเรียนจะเยอะหน่อยนะครับ ทั้งโรงเรียนไทย และโรงเรียนนานาชาติ เวลาเลิกเรียนรถจะเยอะมาก

ข้ามสะพานข้ามคลองลาดพร้าวไปก็ใกล้ถึงโครงการแล้วครับ

ถึงแล้วครับที่ตั้งโครงการ จะอยู่ติดกับซอยจําเนียรเสริม แต่สำนักงานขายตรงขับตรงเลยโครงการไปอีกหน่อยนะครับ

โครงสร้างของอาคาร High Rise ก่อสร้างไปได้กว่า 80% แล้วนะครับ

เลยสถานที่ก่อสร้างโครงการมาอีกนิดก็จะเจอสำนักงานขายอยู่ด้านขวามือ

สำนักงานขายโครงการ

ร้านโฮคิทเช่น ซีฟู๊ด มีทั้งอาหารจีน และซีฟู๊ดให้เลือก อยู่ฝั่งตรงข้ามโครงการ

เลยมาอีกหน่อยก็จะมีร้านเฉลียง ร้านอาหารบรรยากาศชิวๆ มีดนตรีสด

ปั๊มใกล้ๆ มีทั้งปั๊มน้ำมัน ทั้งปั๊มแก๊ส
สำหรับใครที่ต้องพึ่งพาระบบขนส่งมวลชนอย่างรถไฟฟ้าใต้ดิน ทางโครงการก็มีบริการ Shuttle Service รับส่งมายังสถานีรถไฟฟ้าทุกๆ ครึ่งชั่วโมง จากที่สอบถามมาก็น่าจะเป็นสถานีศูนย์วัฒนธรรมนะครับ เพราะระยะทางใกล้กว่าสถานีห้วยขวางนิดหน่อย แต่ถ้ารอบริการจาก Shuttle Bus ไม่ไหว ก็คงต้องเลือกต่อรถแท็กซี่ หรือมอเตอร์ไซค์รับจ้างต่อมาที่โครงการอีกที ต้องพึ่งพารถรับจ้างเยอะค่าใช้จ่ายก็จะเยอะตามไปด้วย ถ้าไม่มีรถส่วนตัวใช้อาจจะเดินทางไปไหนมาไหนไม่ค่อยสะดวกเท่าไหร่ครับ
วิเคราะห์ตัวโครงการ

ตัวโครงการ Than Living รัชดา-ประชาอุทิศ เป็นโครงการที่มีทั้งตึก High Rise และ Low Rise อยู่ในพื้นที่เดียวกัน ประกอบไปด้วย 6 อาคาร แบ่งเป็นตึกสูง (Smart Building) 3 ตึก และตึกเตี้ย 8 ชั้น อีก 3 ตึก ถ้าเอาตามคอนเซปต์ที่ทางโครงการว่าไว้ ในแต่ละตึกก็จะมีคอนเซปต์ไม่เหมือนกัน คือ ตึก B – B Healthy เป็นตึกที่เน้นสุขภาพ มีห้องออกกำลังกายและสระว่ายน้ำ ในขณะที่ตึก C – C Curity จะเน้นเรื่องความปลอดภัยตั้งแต่เจ้าหน้าที่รักษาความปลอดภัย ไปจนถึงระบบรักษาความปลอดภัยที่เพิ่มเป็นพิเศษ และส่วนของตึก D – Smart Building ที่เป็นตึกสูง โดยจะเน้นการเพิ่มพื้นที่ใช้สอยด้วยการออกแบบให้มี Double Space นั่นเอง ซึ่งที่ว่ามาทั้งหมดนี้เป็นคอนเซปต์ที่ทางโครงการเค้าวางเอาไว้ได้อย่างน่าสนใจมากๆ ครับ แต่ในความเป็นจริงแล้วมีความเป็นไปได้ยาก อย่างเรื่องตึก C ที่จำกัดให้เฉพาะผู้หญิงเข้าอยู่เท่านั้น ซึ่งในความเป็นจริงอาจควบคุมได้ยาก เพราะคงไม่สามารถกำหนดให้ผู้หญิงโสดเท่านั้นที่จะซื้อห้องได้ เช่นเดียวกับตึก A ที่จะเปิดให้ผู้อยู่อาศัยเลี้ยงสัตว์ในอาคารได้ ซึ่งล่าสุดที่สอบถามกับเจ้าหน้าที่มาก็เห็นว่ามีการเปลี่ยนแปลงไปแล้ว และไม่อนุญาตให้เลี้ยงสัตว์แล้วนะครับ นี่แหละครับข้อจำกัดในหลายๆ เรื่องที่มีการเปลี่ยนแปลงไปบ้างแล้วระหว่างที่ยังทำการก่อสร้างโครงการอยู่

กลับมาดูที่ Facilities ส่วนกลางของโครงการกันบ้าง อย่างที่บอกแล้วว่าแต่ละตึกมีคอนเซปต์ที่ต่างกัน ทางโครงการจึงมีการจัดสรร Facilities ให้กระจายกันออกไป ซึ่งลูกบ้านในแต่ละตึกจะต้องเดินลงมาใช้ส่วนกลางตามจุดที่กำหนดไว้ ยกตัวอย่างเช่น บริเวณชั้นล่างของ Smart Building 1 จะมี Coffee Shop ส่วน Smart Building 2 เป็นพื้นที่ห้อง Fitness พร้อมอุปกรณ์ครบครัน ในขณะที่ Smart Building 3 ถูกจัดให้เป็นพื้นที่ห้องสมุด และบริเวณชั้น 2 ของอาคาร Low Rise ก็มีส่วนหย่อมที่ตึก A เพราะจากคอนเซปต์แรกที่อนุญาตให้เลี้ยงสัตว์ได้ ส่วนตึก B จะมีสระว่ายน้ำใหญ่ขนาด 17 เมตร ลึก 1.2 เมตร ในระบบน้ำเกลือ และห้องออกกำลังกายแบบ Function Room และที่ตึก C จะมีสระว่ายน้ำเล็กขนาด 3.7 เมตร พร้อมพื้นที่พักผ่อนครับ ข้อดีของการจัดสรรพื้นที่ส่วนกลางแบบนี้คือ ทำให้ภายในโครงการมี Facilitiesที่หลากหลาย รวมถึงมีพื้นที่กว้างขึ้นกว่าเดิมเพื่อรองรับลูกบ้านเป็นจำนวนมาก แต่ข้อเสียคือ ลูกบ้านจะต้องเดินเข้าออกตึกนั้นที ตึกนี้ทีให้วุ่นวาย อย่างถ้าออกกำลังกายในห้อง Fitness แล้วต่อด้วยว่ายน้ำ ก็ต้องเดินจากตึกหนึ่งไปอีกตึกหนึ่ง จึงไม่ค่อยสะดวกเท่าไหร่ เว้นแต่ว่าจะเลือกออกกำลังกายที่ห้องข้างๆ สระว่ายน้ำ ก็ค่อยสะดวกหน่อยครับ
สำหรับเรื่องพื้นที่จอดรถทั้งโครงการจัดไว้ทั้งหมด 60% จากจำนวนห้องทั้งหมด 823 ยูนิต ซึ่งอาจจะไม่เพียงพอกับความต้องการ และการใช้งานจริง เพราะด้วยทำเลที่ตั้งของโครงการที่อยู่ห่างจากรถไฟฟ้า และระบบขนส่งมวลชนพอสมควร ทำให้แนวโน้มที่ลูกบ้านส่วนใหญ่จะต้องใช้รถส่วนตัวมีมาก ถ้าลูกบ้านเกิน 60% มีรถส่วนตัวก็คงเกิดปัญหาเรื่องแย่งที่จอดรถแน่นอน ทางด้านลิฟท์โดยสาร ในแต่ละตึกจะมีลิฟท์โดยสารให้ 2 ตัว และไม่มีลิฟท์เซอร์วิส ถ้าอาศัยอยู่ในตึก Low Rise ก็คงไม่ค่อยมีปัญหาเท่าไหร่ แต่ถ้าอยู่ในตึก High Rise ก็คงลำบากอยู่เหมือนกัน โดยเฉพาะช่วงเวลาเร่งด่วนตอนเช้าๆ ที่อาจต้องรอลิฟท์กันนานหน่อย
ทีนี้ขยับมาดูตัวอาคารและพื้นที่รอบๆ กันบ้างนะครับ ตัวอาคารนั้นออกแบบมาวันนี้เราจะพาไปรีวิวโครงการ Than Living รัชดา-ประชาอุทิศ จาก Siralai (สิราลัย) คอนโดมิเนียมโครงการใหญ่ซึ่งรวมทั้งตึก High Rise และ Low Rise ไว้ในพื้นที่เดียวกันบนถนนประชาอุทิศ ทำเลที่ตั้งของโครงการค่อนไปทางถนนเลียบทางด่วนรามอินทรา-อาจณรงค์ หรือถนนประดิษฐ์มนูธรรม ดังนั้นการเดินทางมายังตัวโครงการจึงค่อนข้างสะดวกสำหรับคนที่มีรถส่วนตัวนะครับ ส่วนรายละเอียดอื่นๆ ของตัวโครงการเราก็เก็บมาฝากกันครบถ้วนเช่นเคย ว่าแล้วก็ตามไปดูกันเลยดีกว่า

การเดินทาง
อย่างที่บอกว่าด้วยทำเลที่ตั้งของโครงการ Than Living รัชดา-ประชาอุทิศ ที่อยู่มาทางด้านถนนประดิษฐ์มนูธรรม ลองดูจากแผนที่จะเห็นว่าระยะห่างจากสี่แยกแค่ 300 เมตรเท่านั้น เส้นทางนี้ถ้าวิ่งตามถนนเลียบทางด่วนรามอินทรา-อาจณรงค์ไปเรื่อยๆ ผ่านแยกพระราม 9 แยกเพชรบุรี แล้วก็จะเข้าสุขุมวิท 63 และไปบรรจบกับถนนสุขุมวิท เส้นทางนี้สามารถใช้เป็นเส้นทางเข้าออกเมืองได้ดีทีเดียวนะครับ กลับกันถ้ามุ่งหน้าออกนอกเมืองไปก็จะเจอแยกลาดพร้าว แยกเกษตร-ประดิษฐ์ฯ และไปสุดที่ถนนรามอินทรา เส้นทางที่ตัดเชื่อมกับถนนเลียบทางด่วน หรือ ถนนประดิษฐ์มนูธรรม มีอยู่ด้วยกันหลายเส้น ทำให้การเลือกเส้นทางเลี่ยงการจราจรมีตัวเลือกมากขึ้น แม้แต่ด่านขึ้นลงทางด่วนก็อยู่ใกล้นิดเดียวเองด้วย การเดินทางจากทางฝั่งถนนประดิษฐ์มนูธรรมจึงสะดวกมากๆ สำหรับคนที่ใช้รถส่วนตัวเป็นหลัก


ระยะทางจากถนนสุขุมวิท ถึงโครงการประมาณ 6 กม.

หรือถ้าใครสะดวกเดินทางด้วยทางด่วน ก็ใช้ทางด่วนศรีรัชฝั่งขาออก ต่อทางด่วนอาจณรงค์-รามอินทรา มาลงที่ลาดพร้าว เข้าถนนประดิษฐ์มนูธรรม จะเลยถนนประชาอุทิศมานิดหน่อย ต้องกลับรถ แล้วไปเลี้ยวขวาที่แยกประชาอุทิศ-ประดิษฐ์มนูธรรม เพื่อเข้าถนนประชาอุทิศไปอีกประมาณ 300 เมตร ก็ถึงตัวโครงการแล้วครับ

จากถนนประดิษฐ์มนูธรรม ก็จะมาเลี้ยวขวาที่แยกประชาอุทิศ-ประดิษฐ์มนูธรรม ตามป้ายที่บอกว่าไปทางถนนรัชดาภิเษกนะครับ

จากสี่แยกนี้ไปนิดเดียวก็จะเจอสำนักงานขายที่อยู่ด้านซ้ายมือแล้วครับ ส่วนตัวโครงการต้องตรงไปอีกประมาณ 300 เมตร
นอกจากนี้การเดินทางมายังตัวโครงการจากทางฝั่งถนนรัชดา ก็สามารถทำได้เช่นกัน ซึ่งสามารถเลือกได้ 2 เส้นทางคือ เข้าทางแยกห้วยขวาง แล้วเลี้ยวขวาเข้าถนนประชาราษฎร์บำเพ็ญ เพื่อมายังถนนประชาอุทิศ วิ่งมาตามถนนเส้นนี้เรื่อยๆ ก็จะถึงตัวโครงการเลย เสียแต่ถนนเส้นนี้ค่อนข้างแคบ ผ่านแหล่งชุมชนและมีรถรามากหน่อย บางครั้งการจราจรอาจจะไม่คล่องตัวนะครับ ส่วนอีกเส้นทางคือเข้ามาทางแยกศูนย์วัฒนธรรม เข้าถนนเทียมร่วมมิตร แล้ววิ่งมาตามถนนเลียบรั้ว รฟม. มาต่อที่ถนนประชาอุทิศอีกนิดเดียวก็เจอตัวโครงการเลย เส้นทางนี้มีระยะทางที่ใกล้กว่า และการจราจรสะดวกกว่ามากครับ แต่ช่วงดึกๆ อาจจะเปลี่ยวมากหน่อย คุณสาวๆ เดินทางด้วยรถรับจ้างดึกๆ คนเดียวถ้าเลี่ยงเส้นทางนี้ได้ก็ดีครับ นอกจากเส้นทางหลักๆ ที่เราแนะนำกันไปแล้ว ถนนประชาอุทิศก็ยังมีซอยเล็กซอยน้อยเลี่ยงไปออกถนนพระราม 9 ลาดพร้าว หรือรามคำแหงได้อีกหลายทาง ซึ่งคงต้องใช้เวลาในการศึกษาเส้นทางกันสักหน่อยครับ

แผนที่การเดินทางรอบๆ โครงการ

เริ่มจากถนนรัชดาภิเษก ก่อนถึงแยกห้วยขวาง จะเจอป้ายให้เลี้ยวขวาไปประชาอุทิศ ถึงตรงนี้ให้ชิดซ้ายไว้ อย่าลงอุโมงนะครับ

ถ้าพลาดลงอุโมงไปแล้วต้องไปกลับรถยาวเลยล่ะครับ

ถึงแยกห้วยขวางแล้วก็รอสัญญาณไฟเพื่อเลี้ยวขวาเข้าถนนประชาราษฎร์บำเพ็ญ

เลี้ยวขวาเข้าถนนประชาราษฎร์บำเพ็ญ

สำหรับคนที่เดินทางด้วยรถไฟฟ้า MRT พอลงรถไฟฟ้าสถานีห้วยขวางที่อยู่ปากซอยแล้ว ก็จะมีพี่วินคอยให้บริการด้วยนะครับ แต่ก็อาจจะไกลอยู่สักหน่อย

แต่ถ้าใครไม่ชอบนั่งมอเตอร์ไซค์ก็มีรถตุ๊กตุ๊กไว้เป็นอีกหนึ่งตัวเลือก

เข้ามาในซอยแล้วก็อย่างที่เห็นนะครับ ถนนค่อนข้างจะแคบ การจราจรในซอยนี้จึงค่อนข้างจะติดขัด

ตรงมาเรื่อยๆ ก็จะเจอสามแยกนี้ ให้เลี้ยวขวาเข้าถนนประชาอุทิศนะครับ

เลี้ยวขวามาปุ๊บก็จะเจอกับสำนักงานเขตห้วยขวางเลยนะครับ เผื่อใครต้องมาติดต่อทำธุระที่นี่

เข้ามาเรื่อยๆ ถนนจาก 3 เลน ก็จะเหลือ 2 เลน

ถึงสี่แยกถนนประชาอุทิศตัดซอยรัชดานิเวศน์ 24 ก็ตรงไปเลยนะครับ

ถึงตรงนี้ถนนจะขยายเป็น 4 เลนแล้วก็แทบไม่ต่างกันเลย รถจอดสองข้างทางก็กินไปเลนนึงแล้ว

ถนนเส้นนี้โรงเรียนจะเยอะหน่อยนะครับ ทั้งโรงเรียนไทย และโรงเรียนนานาชาติ เวลาเลิกเรียนรถจะเยอะมาก

ข้ามสะพานข้ามคลองลาดพร้าวไปก็ใกล้ถึงโครงการแล้วครับ

ถึงแล้วครับที่ตั้งโครงการ จะอยู่ติดกับซอยจําเนียรเสริม แต่สำนักงานขายตรงขับตรงเลยโครงการไปอีกหน่อยนะครับ

โครงสร้างของอาคาร High Rise ก่อสร้างไปได้กว่า 80% แล้วนะครับ

เลยสถานที่ก่อสร้างโครงการมาอีกนิดก็จะเจอสำนักงานขายอยู่ด้านขวามือ

สำนักงานขายโครงการ

ร้านโฮคิทเช่น ซีฟู๊ด มีทั้งอาหารจีน และซีฟู๊ดให้เลือก อยู่ฝั่งตรงข้ามโครงการ

เลยมาอีกหน่อยก็จะมีร้านเฉลียง ร้านอาหารบรรยากาศชิวๆ มีดนตรีสด

ปั๊มใกล้ๆ มีทั้งปั๊มน้ำมัน ทั้งปั๊มแก๊ส
สำหรับใครที่ต้องพึ่งพาระบบขนส่งมวลชนอย่างรถไฟฟ้าใต้ดิน ทางโครงการก็มีบริการ Shuttle Service รับส่งมายังสถานีรถไฟฟ้าทุกๆ ครึ่งชั่วโมง จากที่สอบถามมาก็น่าจะเป็นสถานีศูนย์วัฒนธรรมนะครับ เพราะระยะทางใกล้กว่าสถานีห้วยขวางนิดหน่อย แต่ถ้ารอบริการจาก Shuttle Bus ไม่ไหว ก็คงต้องเลือกต่อรถแท็กซี่ หรือมอเตอร์ไซค์รับจ้างต่อมาที่โครงการอีกที ต้องพึ่งพารถรับจ้างเยอะค่าใช้จ่ายก็จะเยอะตามไปด้วย ถ้าไม่มีรถส่วนตัวใช้อาจจะเดินทางไปไหนมาไหนไม่ค่อยสะดวกเท่าไหร่ครับ
วิเคราะห์ตัวโครงการ

ตัวโครงการ Than Living รัชดา-ประชาอุทิศ เป็นโครงการที่มีทั้งตึก High Rise และ Low Rise อยู่ในพื้นที่เดียวกัน ประกอบไปด้วย 6 อาคาร แบ่งเป็นตึกสูง (Smart Building) 3 ตึก และตึกเตี้ย 8 ชั้น อีก 3 ตึก ถ้าเอาตามคอนเซปต์ที่ทางโครงการว่าไว้ ในแต่ละตึกก็จะมีคอนเซปต์ไม่เหมือนกัน คือ ตึก B – B Healthy เป็นตึกที่เน้นสุขภาพ มีห้องออกกำลังกายและสระว่ายน้ำ ในขณะที่ตึก C – C Curity จะเน้นเรื่องความปลอดภัยตั้งแต่เจ้าหน้าที่รักษาความปลอดภัย ไปจนถึงระบบรักษาความปลอดภัยที่เพิ่มเป็นพิเศษ และส่วนของตึก D – Smart Building ที่เป็นตึกสูง โดยจะเน้นการเพิ่มพื้นที่ใช้สอยด้วยการออกแบบให้มี Double Space นั่นเอง ซึ่งที่ว่ามาทั้งหมดนี้เป็นคอนเซปต์ที่ทางโครงการเค้าวางเอาไว้ได้อย่างน่าสนใจมากๆ ครับ แต่ในความเป็นจริงแล้วมีความเป็นไปได้ยาก อย่างเรื่องตึก C ที่จำกัดให้เฉพาะผู้หญิงเข้าอยู่เท่านั้น ซึ่งในความเป็นจริงอาจควบคุมได้ยาก เพราะคงไม่สามารถกำหนดให้ผู้หญิงโสดเท่านั้นที่จะซื้อห้องได้ เช่นเดียวกับตึก A ที่จะเปิดให้ผู้อยู่อาศัยเลี้ยงสัตว์ในอาคารได้ ซึ่งล่าสุดที่สอบถามกับเจ้าหน้าที่มาก็เห็นว่ามีการเปลี่ยนแปลงไปแล้ว และไม่อนุญาตให้เลี้ยงสัตว์แล้วนะครับ นี่แหละครับข้อจำกัดในหลายๆ เรื่องที่มีการเปลี่ยนแปลงไปบ้างแล้วระหว่างที่ยังทำการก่อสร้างโครงการอยู่

กลับมาดูที่ Facilities ส่วนกลางของโครงการกันบ้าง อย่างที่บอกแล้วว่าแต่ละตึกมีคอนเซปต์ที่ต่างกัน ทางโครงการจึงมีการจัดสรร Facilities ให้กระจายกันออกไป ซึ่งลูกบ้านในแต่ละตึกจะต้องเดินลงมาใช้ส่วนกลางตามจุดที่กำหนดไว้ ยกตัวอย่างเช่น บริเวณชั้นล่างของ Smart Building 1 จะมี Coffee Shop ส่วน Smart Building 2 เป็นพื้นที่ห้อง Fitness พร้อมอุปกรณ์ครบครัน ในขณะที่ Smart Building 3 ถูกจัดให้เป็นพื้นที่ห้องสมุด และบริเวณชั้น 2 ของอาคาร Low Rise ก็มีส่วนหย่อมที่ตึก A เพราะจากคอนเซปต์แรกที่อนุญาตให้เลี้ยงสัตว์ได้ ส่วนตึก B จะมีสระว่ายน้ำใหญ่ขนาด 17 เมตร ลึก 1.2 เมตร ในระบบน้ำเกลือ และห้องออกกำลังกายแบบ Function Room และที่ตึก C จะมีสระว่ายน้ำเล็กขนาด 3.7 เมตร พร้อมพื้นที่พักผ่อนครับ ข้อดีของการจัดสรรพื้นที่ส่วนกลางแบบนี้คือ ทำให้ภายในโครงการมี Facilitiesที่หลากหลาย รวมถึงมีพื้นที่กว้างขึ้นกว่าเดิมเพื่อรองรับลูกบ้านเป็นจำนวนมาก แต่ข้อเสียคือ ลูกบ้านจะต้องเดินเข้าออกตึกนั้นที ตึกนี้ทีให้วุ่นวาย อย่างถ้าออกกำลังกายในห้อง Fitness แล้วต่อด้วยว่ายน้ำ ก็ต้องเดินจากตึกหนึ่งไปอีกตึกหนึ่ง จึงไม่ค่อยสะดวกเท่าไหร่ เว้นแต่ว่าจะเลือกออกกำลังกายที่ห้องข้างๆ สระว่ายน้ำ ก็ค่อยสะดวกหน่อยครับ
สำหรับเรื่องพื้นที่จอดรถทั้งโครงการจัดไว้ทั้งหมด 60% จากจำนวนห้องทั้งหมด 823 ยูนิต ซึ่งอาจจะไม่เพียงพอกับความต้องการ และการใช้งานจริง เพราะด้วยทำเลที่ตั้งของโครงการที่อยู่ห่างจากรถไฟฟ้า และระบบขนส่งมวลชนพอสมควร ทำให้แนวโน้มที่ลูกบ้านส่วนใหญ่จะต้องใช้รถส่วนตัวมีมาก ถ้าลูกบ้านเกิน 60% มีรถส่วนตัวก็คงเกิดปัญหาเรื่องแย่งที่จอดรถแน่นอน ทางด้านลิฟท์โดยสาร ในแต่ละตึกจะมีลิฟท์โดยสารให้ 2 ตัว และไม่มีลิฟท์เซอร์วิส ถ้าอาศัยอยู่ในตึก Low Rise ก็คงไม่ค่อยมีปัญหาเท่าไหร่ แต่ถ้าอยู่ในตึก High Rise ก็คงลำบากอยู่เหมือนกัน โดยเฉพาะช่วงเวลาเร่งด่วนตอนเช้าๆ ที่อาจต้องรอลิฟท์กันนานหน่อย
ทีนี้ขยับมาดูตัวอาคารและพื้นที่รอบๆ กันบ้างนะครับ ตัวอาคารนั้นออกแบบมาได้สะดุดตามากๆ ดูจากโมเดลจะเห็นลูกเล่นของเส้นสายกราฟฟิกของตัวตึก High Rise อันเนื่องมาจากตำแหน่งของห้องในแต่ละแบบที่วางสลับกันไปมานั่นเอง สำหรับเรื่องทิศทางของแดดและลม ก็ต้องมาดูที่ตัวที่ดินของโครงการซึ่งวางอยู่ในแนวทิศเหนือ-ใต้ ดังนั้นตัวอาคารจึงต้องหันหน้าเผชิญกับทิศตะวันออกและตะวันตกอย่างเลี่ยงไม่ได้ ห้องในตึก High Riseด้านที่หันหน้าไปทางถนนประดิษฐ์มนูธรรมคงจะร้อนน้อยหน่อย เพราะเป็นทิศตะวันออก ส่วนอีกด้านทางทิศตะวันตก ก็โดนแดดกันไปเต็มๆ ครับ เลี่ยงได้ยากจริงๆ หรือถ้าใครเลือกที่จะอยู่ในตึก Low Rise อาจจะเสียเปรียบเรื่องวิวบ้าง แต่ก็แลกกับร่มเงาที่ได้ตึก High Rise ที่ช่วยผ่อนความร้อนจากแดดเช้าไปได้มากพอสมควร ในขณะที่แดดบ่ายก็ไร้ทางหลบเลี่ยงได้เช่นกัน ออกมาดูรอบๆ โครงการก็ต้องบอกว่า บนถนนประชาอุทิศคึกคักไม่น้อยเลย เพราะมีทั้งร้านค้า ร้านอาหาร สถานบันเทิงมากมาย และปั้มน้ำมันพร้อมมินิมาร์ทที่อยู่ภายในให้เราได้พึ่งพาได้ รวมถึงโรงเรียนนานาชาติที่อยู่ใกล้ๆ กับโครงการอีกหลายแห่ง เช่น โรงเรียนนานาชาติคิซ (KIS International School) โรงเรียนนานาชาติรีเจนท์ (Regent International School) เป็นต้น หรือถ้าออกจากถนนประชาอุทิศไปอีกหน่อย บนถนนประดิษฐ์มนูธรรมก็เต็มไปด้วยร้านอาหาร ห้างสรรพสินค้า คอมมูนิตี้มอลล์ แหล่งช๊อปปิ้งดังๆ มากมาย ถ้ามีรถส่วนตัวไว้ใช้หน่อยการไปไหนมาไหนรอบๆ โครงการก็จัดว่าสะดวกและครบครันมากๆ ครับ

ด้านหน้าโครงการจะหันไปทางทิศเหนือ ซึ่งก็คือด้านถนนประชาอุทิศ ผืนที่ดินบังคับให้อาคารต้องหันไปทางทิศตะวันออกและทิศตะวันตก อย่างหลีกเลี่ยงไม่ได้

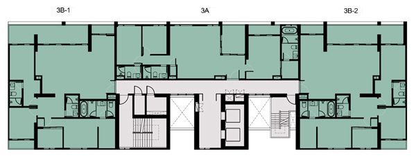
มาดูที่อาคาร Low Rise กันก่อนนะครับ ชั้น G ของทั้ง 3 อาคารจะคล้ายๆ กัน ซึ่งจะเป็นที่จอดรถอยู่ใต้อาคาร

ผังอาคาร Low Rise จะเห็นว่า มีที่จอดรถ 3 ชั้น อยู่ใต้อาคาร

ทางลงที่จอดรถชั้นใต้ดิน

มาดูที่ชั้น 2 กันต่อนะครับ ชั้น 2 ของอาคาร A จะเน้นไปที่สวนสีเขียวอยู่ด้านหน้าอาคาร

อาคาร B สำหรับคนรักสุขภาพ ก็จะมี Gym และสระว่ายน้ำ สระใหญ่ อยู่ด้านหน้าอาคาร

อาคาร C จะมีสระว่ายน้ำ สระเล็ก

ภาพจำลองบรรยากาศพื้นที่ส่วนกลางระหว่างอาคารทั้ง 2 ฝั่ง

มาดูที่กันที่อาคาร High Rise บ้างนะครับ ที่ชั้น G ของแต่ละอาคารก็จะคล้ายๆ กัน เป็นที่จอดรถใต้อาคารส่วนหนึ่ง และอีกส่วนหนึ่งก็จะเป็น Facility อย่าง Lobby, Mailbox, Shop, Gym แตกต่างกันไปในแต่ละอาคาร เรามาเริ่มจากอาคาร Smart 1 ซึ่งเป็นอาคารที่อยู่ด้านหน้าสุดกันก่อนนะครับ ที่ตึก Smart 1 นอกจากจะมี Lobby และ Mailbox ก็จะมี Coffee Shop อยู่ด้วย

อาคาร Smart 2 เป็นอาคารที่อยู่ตรงข้ามกับอาคาร B (B Healthy) ที่จะเน้น Facility อย่างสระว่ายน้ำ และ Gym ที่ใต้อาคาร Smart 2 นี้จึงมา Gym ให้อีกหนึ่งห้องครับ ซึ่งใหญ่กว่าที่อาคาร B ด้วย

หน้าตาของ Gym ใต้อาคาร Smart 2

อาคาร Smart 3 จะมีห้องสมุดสำหรับอ่านหนังสือ นั่งติวหนังสือ หรือทำการบ้านได้ ครับ

บรรยากาศของห้องสมุดใต้อาคาร Smart 3

ส่วนที่พักอาศัยจะเริ่มที่ชั้น 2 ขึ้นไปนะครับ เฉลี่ยแล้วจะอยู่ที่ประมาณ 10 ยูนิตต่อชั้น การวาง Layout ของทั้ง 3 อาคารก็จะคล้ายๆ กัน

ที่ชั้น 18-19 อาคาร Smart 2 และ ชั้น 19-20 อาคาร Smart 3 จะเป็นห้อง Duplex

ส่วนที่ชั้นบนสุดของอาคาร High Rise ของทั้ง 3 อาคาร จะเป็นห้อง Penthouse
พาชมห้องตัวอย่าง
ถึงคราวของห้องตัวอย่างกันบ้างครับ ทางโครงการเตรียมห้องตัวอย่างให้เราได้ชมด้วยกัน 4 แบบ
เริ่มต้นกันด้วยห้องแบบ 1 ห้องนอน Type 1A ที่ขนาด 32 ตร.ม. โดยประมาณ เปิดประตู้ห้องนี้เข้ามาก็จะเจอส่วนของห้องครัวก่อนเลยครับ พื้นที่ตรงข้ามเคาน์เตอร์ครัวเว้นเป็นที่วางตู้เย็นได้ ส่วนตู้ Built-in ในห้องตัวอย่างจะมีไว้เพื่อการตกแต่งเท่านั้น ของจริงไม่ได้มาพร้อมกับห้องนะครับ ถัดเข้าไปด้านในเป็น Living Area ที่จัดสรรพื้นที่ให้โต๊ะกินข้าวชุดเล็กๆ อยู่รวมกับชุดโซฟานั่งเล่นได้พอดี ระยะห่างระหว่างโซฟากับผนังห้องที่ใช้แขวนทีวีมีขนาดกำลังพอเหมาะ ประกอบกับอยู่ติดระเบียงจึงช่วยให้บรรยากาศโดยรวมดูสบายตามากขึ้น ภายในห้องนอน ทางโครงการมีตู้เสื้อผ้า Built-in มาให้ พื้นที่ที่เหลือพอวางเตียงขนาด 5 ฟุตลงไปแล้วก็เกือบจะเต็มห้องพอดี จะมีพื้นที่ติดหน้าต่างเหลือไว้นิดหน่อย พอจะวางโต๊ะทำงาน หรือใช้ทำประโยชน์อื่นๆ ได้บ้าง ส่วนห้องน้ำของห้องนี้อยู่ในห้องนอนนะครับ ซึ่งด้านในห้องน้ำก็แบ่งโซนแห้งโซนเปียกไว้ชัดเจน มีกระจกเทมเปอร์กั้นห้องอาบน้ำไว้ กระจกเหนืออ่างล้างหน้าก็เป็นบานใหญ่แบบในห้องตัวอย่างเลย ฟังก์ชั่นเล็กๆ น้อยๆ ภายในห้องน้ำถือว่าทางโครงการค่อนข้างใส่ใจในรายละเอียด ทั้งชั้นวางของที่ยาวเต็มพื้นที่ ทำให้วางของได้มากขึ้น และที่วางกระดาษทิชชู่ด้านข้างอ่างล้างหน้า ซึ่งช่วยประหยัดพื้นที่ได้ดี แต่ในขณะเดียวกันก็มีข้อเสียเล็กๆ น้อยๆ ที่เราเห็นแล้วขัดตาขัดใจบ้าง อย่างเช่น หัวก๊อกน้ำที่อ่างล้างหน้า ที่ถูกชั้นวางของด้านบนติดตั้งในตำแหน่งเกือบชิดติดกัน คือเวลาใช้งานก็ปกติแหละครับไม่ได้มีปัญหาหรอก แต่ถ้าเกิดต้องซ่อมแซมหัวก๊อกขึ้นมาคงวุ่นวายกันน่าดู จุดที่สองที่ขัดใจก็คือ พื้นตรงส่วนห้องอาบน้ำไม่มีการดร๊อปให้ต่ำลงไป หรือไม่ได้มีการก่อธรณีให้สูงขึ้นมาเพื่อป้องกันน้ำไหลมาที่ส่วนแห้ง เวลาใช้งานจริงๆ เชื่อว่าน้ำซึมออกมาได้แน่นอน แถมตรงประตูห้องน้ำก็ไม่ได้ก่อธรณีกั้นไว้อีก ถ้าเกิดท่อตัน หรือน้ำระบายไม่ทัน มีโอกาสที่จะไหลเข้าห้องนอนได้นะครับ ตรงจุดนี้ถ้าแก้ไขได้อีกนิดหน่อยคงจะดีกว่านี้เยอะครับ สำหรับพื้นที่ระเบียงของห้อง ต้องขอยกให้เป็นจุดเด่นข้อหนึ่งเลย ด้วยพื้นที่ระเบียงที่จัดว่ากว้างพอให้ใช้ประโยชน์ได้ อีกทั้งยังจัดสรรพื้นที่ไว้แขวนคอมเพรสเซอร์แอร์ และวางเครื่องซักผ้าไว้อย่างเป็นสัดเป็นส่วน ทำให้พื้นที่ตรงระเบียงเหลือมากพอให้ใช้ตากผ้า หรือจัดสวนเล็กๆ ได้เลย

มาดูแบบ 1 ห้องนอน Type 1A ขนาด 32 ตารางเมตร กันก่อนนะครับ

Plan ห้อง

ที่นี่จะใช้ประตู Digital Door Lock แบบนี้นะครับ

สวิตช์และปลั๊กไฟทั้งหมดของที่นี่จะใช้ยี่ห้อ Sierra

เมื่อเข้ามาในห้องแล้ว จะเจอกับส่วนครัวที่ตั้งอยู่หน้าห้องก่อนเลยนะครับ ด้านขวามือจะเป็นเคาน์เตอร์ครัว ส่วนด้านซ้ายจะเป็นตู้ที่ Built-in ขึ้นมาเป็นตู้เก็บของ และช่องใส่ตู้เย็น

เคาน์เตอร์ครัว จะวางเตาไฟฟ้าไว้ด้านขวา ซิ้งค์ล้างจานอยู่ด้านซ้าย ตัวท็อปจะเป็นหินควอทซ์ มีช่องใส่ไมโครเวฟอยู่ด้านล่าง

ซิ้งค์ล้างจานแบบฝัง

ตัวก็อกจะใช้ยี่ห้อ Sierra เหมือนกันครับ

เตาไฟฟ้า 2 หัว ของ MEX

มาพร้อมฮูดดูดควัน ยี่ห้อเดียวกัน

ฝั่งตรงข้าม เยื้องๆ กับครัว จะเป็นโต๊ะทานอาคารสำหรับ 2 ท่าน

เลยเข้ามาด้านในจะเป็น Living Area ที่อยู่ติดกับระเบียง ระยะห่างระหว่างโซฟากับทีวีก็ประมาณนี้นะครับ

ออกมาดูที่ระเบียงกันต่อเลยนะครับ

จุดวางเครื่องซักผ้าจะอยู่ที่ระเบียง ส่วนคอมเพรสเซอร์แอร์จะแขวนอยู่เหนือเครื่องซักผ้า หันออกนอกระเบียง แล้วก็จะมีประตูเหล็กปิดกั้นอย่างเป็นสัดส่วนให้ด้วยนะครับ

รางประตูกระจกบานสไลด์ ทำมาเนียบใช้ได้เลยครับ

มาดูที่ห้องนอนกันต่อนะครับ วางเตียง 5 ฟุตกำลังพอดีครับ มีพื้นที่เหลือให้วางอย่างอื่นได้บ้าง

พื้นที่ปลายเตียงมีที่เหลือพอให้ Built-in ชั้นวางทีวีได้นิดหน่อย แต่ถ้าใช้ทีวีแบบแขวนก็จะมีที่วางของเพิ่มขึ้นอีกครับ

ด้านข้างเตียงที่ติดกันหน้าต่างมีที่เหลือเยอะพอสมควร ห้องตัวอย่างจะ Built-in เป็นเหมือนโต๊ะนั่งทำงาน แต่ห้องจริงไม่ได้แบบนี้นะครับ

หน้าต่างจะเป็นบาน fix นะครับ และมีบานกระทุ้ง 1 บาน

ส่วนอีกฝั่งจะเป็นตู้เสื้อผ้า

มุมมองจาก Living Area เข้าไปในห้องนอน

ห้องน้ำจะอยู่ในห้องนอนนะครับ เดี๋ยวไปดูห้องน้ำกันต่อเลย

ธรณีประตูเตี้ยๆ กั้นระหว่างห้องน้ำกับห้องนอน

การวางสุขภัณฑ์ในห้องน้ำ

อ่างล้างหน้าทรงสี่เหลี่ยมของ Sierra

ข้างๆ อ่างล้างหน้า เว้าเข้าไปให้มีที่แขวนกระดาษทิชชู่ และวางของได้ด้วย

โถสุขภัณฑ์ อยู่ข้างๆ ห้องอาบน้ำ

ห้องอาบน้ำจะกั้นด้วยประตูกระจก Temper


ชุดฝักบัวของ Sierra เหมือนกันครับ
ห้องต่อไปคือเป็นห้อง Type 1B ซึ่งยังคงเป็นแบบ 1 ห้องนอน ในขนาดห้องที่ใกล้เคียงกับห้องแรก คือ 33 ตร.ม. โดย Layout ของห้องนี้จะจัดแบ่งพื้นที่ภายในห้องไว้เป็นสัดส่วนชัดเจน เปิดเข้าห้องมาจะเจอ Living Area ก่อนเป็นอันดับแรก ถัดเข้าไปด้านในก็จะเป็นครัวแบบปิดพร้อมประตูกระจกบานเลื่อน ช่วยป้องกันปัญหากลิ่นรบกวนภายในห้องระหว่างทำครัวได้ดี พื้นที่ครัวของห้องนี้กว้างขวางติดกับระเบียง ซึ่งก็กว้างขนาดที่วันไหนเกิดอยากลองเปลี่ยนบรรยากาศย้ายโต๊ะออกไปนั่งกินข้าวชมวิวที่ระเบียงก็สามารถย้ายโต๊ะไปตั้งได้เลยครับ ส่วนอีกโซนของห้อง จะเป็นพื้นที่ของห้องนอนพร้อมห้องน้ำในตัว ซึ่งพื้นที่ใช้สอยภายในห้องนอนก็กำลังพอเหมาะแบบคนที่ข้าวของไม่เยอะมาก เพราะมีตู้เสื้อผ้า Built-in มาให้เท่านั้น ส่วนชั้นเก็บของอื่นๆ คงต้องเฟ้นหาเพิ่มเติมกันเอง ในขณะที่ห้องน้ำก็มี Layout เหมือนกับห้องก่อนหน้านี้เลยครับ ทั้งวัสดุสุขภัณฑ์และตำแหน่งที่ติดตั้ง สำหรับห้องตัวอย่างห้องนี้ถ้าใครได้เห็นคงรู้สึกถูกใจกับพื้นที่ใช้สอยภายในห้องที่จัดไว้ได้ลงตัวมากๆ อีกทั้งยังให้บรรยากาศที่โล่งโปร่งสบายด้วย เห็นห้องตัวอย่างแล้วก็อย่าลืมว่า ของจริงทางโครงการขายให้มาเป็นห้องเปล่าๆ นะครับ ไม่ได้มีเฟอร์นิเจอร์ตกแต่งพร้อมเข้าอยู่ พวกลูกเล่นเล็กๆ น้อยๆ ตามมุมต่างๆ ที่เห็นในห้องตัวอย่างเป็นแค่ไอเดียการตกแต่งเท่านั้นครับ

ต่อไปเป็นห้อง 1 ห้องนอน Type 1B ขนาด 33 ตารางเมตรนะครับ

Plan ห้อง

Type นี้เข้ามาแล้วจะเจอส่วน Living Area ก่อนเลยนะครับ

มุมมองจากในห้อง ระยะห่างระหว่างโซฟากับทีวีก็ประมาณนี้นะครับ

ถ้าวางโซฟาขนาดเท่านี้ ด้านข้างจะมีพื้นที่เหลือให้วางโต๊ะข้างได้อีกนะครับ

ชั้นวางของเหนือโซฟา

โต๊ะข้างโซฟา

ถัดเข้ามาด้านในเป็นห้องครัว ครัวของ Type นี้จะเป็นแบบปิดนะครับ

กั้นระหว่างครัวกับ Living Area ด้วยประตูกระจกบานเลื่อน

ข้างบนทางเข้าห้องครัว มีการทำชั้นวางของหลบอยู่ด้วย เก๋ไปอีกแบบ แต่ห้องจริงไม่มีให้แบบนี้นะครับ

เคาน์เตอร์ครัวก็จะเหมือนๆ กับ Type 1A เลยครับ

มุมมองจากระเบียงเข้ามาในห้อง จะเห็นโต๊ะทานอาคารขนาด 2 ท่าน อยู่ตรงข้ามกับครัว

ประตูกระจกบานเลื่อนกั้นระหว่างระเบียงกับครัว

ระเบียงของ Type 1B จะไม่เหมือนกับ 1A นะครับ ของ Type นี้ระเบียงจะเป็นทรงสามเหลี่ยม เลยดูเหมือนจะกว้างกว่า

ส่วนที่วางเครื่องซักผ้า และคอมเพรสเซอร์แอร์จะอยู่ตำแหน่งเดียวกันกับ Type 1A ครับ

กลับเข้ามาดูที่ห้องนอนกันต่อนะครับ

ห้องนอนวางเตียง 5 ฟุตกำลังเหมาะครับ จะได้มีที่เหลือให้วางอย่างอื่นได้ด้วย

ปลายเตียงมีที่เหลือให้พอเดินได้ แต่วางชั้นวางทีวีไม่ได้ ต้องแขวนอย่างเดียวครับ

อีกฝั่งของเตียงจะเป็นตู้เสื้อผ้า ที่จะอยู่ติดกับห้องน้ำเลยครับ

ตู้เสื้อผ้า Built-in อยู่ติดกับห้องน้ำ เดี๋ยวเราเข้าไปดูในห้องน้ำกันต่อเลยนะครับ ซึ่งชุดสุขภัณฑ์และการจัดวางก็จะเหมือนๆ กับ Type 1A

อ่างล้างหน้า

โถสุขภัณฑ์

ห้องอาบน้ำ
ทีนี้มาดูห้อง Type 1C กันบ้างครับ ห้องนี้นับว่าโดดเด่นมากเลยทีเดียว ด้วยการออกแบบให้เพดานห้องเป็นแบบ Double Volume สูงถึง 5.5 เมตรและเพิ่มพื้นที่ใช้สอยในส่วนของชั้นลอยเข้ามา ทำให้ห้องนี้ดูน่าสนใจมากขึ้น จากประตูทางเข้าห้อง ขวามือจะเป็นพื้นที่ของห้องครัว ซึ่งเป็นครัวแบบเปิดเชื่อมต่อกับ Living Area ด้วยโต๊ะกินข้าวเล็กๆ อีกชุด ถัดเข้ามาจากห้องครัวเป็นห้องน้ำและห้องนอนนะครับ รูปแบบและการจัดวางพื้นที่ในห้องน้ำคล้ายกับห้องก่อนหน้าเลย แต่ห้องนอนของห้องนี้รู้สึกว่าจะมีพื้นที่ค่อนข้างเล็กกว่าห้องอื่นๆ เล็กน้อย ไม่รู้ว่าคิดไปเองรึเปล่านะครับ แต่เท่าที่เห็นในห้องพอวางเตียงขนาด 5 ฟุต และใส่ตู้เสื้อผ้า Built-in เข้าไปแล้ว ก็แทบจะไม่เหลือพื้นที่ว่างเลย บางทีอาจจะเป็นเพราะว่าห้องแบบนี้มีพื้นที่ชั้นลอยมาให้ใช้เพิ่มเติมแล้วมั้งครับ ในห้องนอนจึงไม่ได้ใส่ฟังก์ชั่นอะไรมาก บริเวณชั้นลอยก็สามารถจัดเป็นมุมทำงาน มุมอ่านหนังสือ หรือใช้เก็บของก็ได้ ถึงแม้ห้องแบบนี้จะมีการออกแบบที่แปลกและเก๋ไก๋ แต่ก็มีข้อจำกัดบ้างในบางเรื่อง เช่น ตำแหน่งที่แขวนทีวี ที่ต้องแขวนไว้ตรงชานพักบันไดเลย ซึ่งดูไม่ชินตาซักเท่าไหร่ แต่ด้วยพื้นที่ของ Living Area ที่มีบันไดเพิ่มเข้ามา การจะจัดห้องให้เป็นรูปแบบที่ต่างออกไปคงยากหน่อยครับ อ้อ ข้อเสียอีกอย่างของห้องแบบนี้คือ ใช้แอร์เปลืองมากหน่อย เพราะต้องติดแอร์ถึง 3 จุด ทั้งในห้องนอน โซนนั่งเล่น และชั้นลอยที่ต้องติดแยกกัน ไม่อย่างนั้นเพดานสูงๆ แบบนี้เย็นไม่ทั่วแน่ๆ

ต่อมาเป็น Type 1C แบบ 1 ห้องนอน ขนาด 31 ตารางเมตร ที่โดดเด่นด้วยการทำห้องแบบDouble Volume เพดานสูง 5.5 เมตร และเพิ่มพื้นที่ใช้สอยในส่วนของชั้นลอยเข้ามา

Plan ห้อง

เมื่อเปิดประตูเข้ามาแล้ว มองตรงไปก็จะเป็นส่วน Living Area

แต่เราจะมาดูทางขวามือที่เป็นส่วนครัวกันก่อนนะครับ ส่วนครัวจะเป็นแบบเปิดตั้งอยู่หน้าห้อง ฝั่งตรงข้ามที่อยู่ใต้บันไดก็จะเป็นจุดวางตู้เย็น

เคาน์เตอร์ครัวก็จะคล้ายๆ กับ Type ที่ผ่านมานะครับ แต่จะต่างกันตรงที่ห้องนี้จะย้ายเครื่องซักผ้ามาไว้ใต้เคาน์เตอร์ครัวแทน ส่วนวัสดุที่ใช้ และเครื่องครัวก็เหมือนเดิมหมด

ส่วนไมโครเวฟ ก็อาจจะต้องเอาไปไว้ที่ชั้นลอยด้านบน

เดินเลยผ่านครัวเข้ามาก็จะเป็นห้องน้ำกับห้องนอน เดี๋ยวเราไปดูห้องนอนกันก่อนนะครับ

ตู้เสื้อผ้า Built-in อยู่หน้าห้องนอน

ห้องนอน Type นี้ ค่อนข้างจะเล็กอยู่สักหน่อยนะครับ วางเตียง 5 ฟุตแล้ว ทางด้านซ้ายของเตียงจะมีพื้นที่เหลือนิดหน่อยให้วางโต๊ะข้างหรือโคมไฟได้

ส่วนด้านขวาที่ติดกับหน้าต่างบานกระทุ้ง จะมีที่เหลือพอให้ผ้าม่านเท่านั้น

ออกมาดูที่ห้องน้ำกันต่อนะครับ สุขภัณฑ์ที่ใช้และการจัดวางก็จะเหมือนกับห้องที่ผ่านๆ มา

ห้องอาบน้ำ

กลับมาที่ส่วน Living Area โต๊ะทานอาหารขนาด 2 ท่านจะตั้งอยู่ตรงข้ามกับครัว ข้างๆ โซฟา

ฝั่งตรงข้ามโซฟาจะเป็นจุดที่วางทีวี บวกกับบันไดขึ้นชันลอย เนื่องจากพื้นที่มีจำกัด

ระเบียงจะอยู่ติดกับส่วน Living Area นะครับ กั้นด้วยประตูกระจกบานเลื่อนเหมือนห้องที่ผ่านมา จุดวางคอมเพรสเซอร์แอร์ก็จะอยู่ตรงนี้นะครับ หันหน้าออกนอกระเบียง

บันไดขึ้นชั้นลอยจะเป็นบันไดเหล็กนะครับ ดูแล้วอาจจะแคบและชันอยู่สักหน่อย เวลาเดินชึ้น เดินลง ก็ต้องระมัดระวังกันด้วยนะครับ

โต๊ะทำงานที่ชั้นลอย

ชั้นวางของ Built-in ด้านหลังโต๊ะทำงาน

มุมมองจากโต๊ะทำงาน ติดโคมไฟเก๋ๆ เพิ่มบรรยากาศในการนั่งทำงาน

มุมมองจากชั้นลอยลงมาที่ Living Area
แล้วก็มาถึงห้องแบบสุดท้ายคือ Type 2A เป็นห้องแบบ 2 ห้องนอน มีขนาดพื้นที่ 56 ตร.ม. ซึ่งห้อง Type นี้จะเป็นห้องหน้ากว้างและอยู่ในตำแหน่งมุมของอาคารHigh Rise เท่านั้นนะครับ เมื่อเปิดประตูห้องเข้ามาจะเห็นพื้นที่ครัวอยู่ตรงหน้าพอดี ส่วนพื้นที่อื่นๆ จะแยกออกเป็นฝั่งซ้ายและขวา โดยที่ด้านขวาจะเป็น Living Area ติดกับระเบียงและได้กระจกแบบเข้ามุม ซึ่งจะช่วยให้เห็นวิวได้กว้างขึ้น และรับแสงธรรมชาติได้มากขึ้นด้วย แต่พอต้องวางทีวีไว้ที่ตำแหน่งหน้ากระจกใสบานใหญ่ ก็ทำให้เกิดปัญหาแสงสะท้อนเข้าตาขณะดูทีวีอีก ดังนั้นผ้าม่านที่มุมนี้คงได้ใช้งานเปิดๆ ปิดๆ บ่อยแน่นอน ด้านที่ติดกันกับชุดโซฟาใน Living Area จะเป็นห้องนอนใหญ่ หรือ Master Bedroom ครับ พื้นที่ในห้องนอนไม่ได้กว้างมาก วางเตียง และตู้เสื้อผ้า Built-in ไปแล้วก็เหลือที่แค่พอเดินได้เท่านั้น ส่วนบริเวณหน้าต่างของห้องนี้ก็อาจจะวาง Day Bed หรือโต๊ะสูงตามแบบห้องตัวอย่างก็ได้เช่นกัน ห้องน้ำของห้องนอนใหญ่ก็ไม่มีอะไรมาก คล้ายๆ กับห้องที่ผ่านมานั่นแหละ ข้ามไปที่โซนทางด้านซ้ายของห้องบ้าง ติดกับห้องครัวเป็นห้องน้ำอยู่หน้าห้องนอนเล็กเลย ส่วนพื้นที่ในห้องนอนก็กำลังกระทัดรัด วางเตียง 3.5 ฟุต แล้วก็เหลือที่ว่างให้ตั้งโต๊ะทำงานเล็กๆ ได้อีกหน่อย ถ้าเป็นห้องของเด็กๆ ก็ดูลงตัวน่ารักดีครับ

ห้องสุดท้ายเป็นแบบ 2 ห้องนอน Type 2A ขนาด 56 ตารางเมตร

Plan ห้อง

เข้ามาในห้องแล้วจะเจอส่วนครัวที่อยู่ตรงกับประตูห้องก่อนเลยนะครับ ครัว Type นี้ จะแยกออกเป็น 2 ฝั่ง

หน้าตาครัวจะได้แบบนี้นะครับ ตู้เย็นจะอยู่ฝั่งเดียวกับเตาไฟฟ้า ส่วนอีกฝั่งจะเป็นซิ้งค์ล้างจานพร้อมที่เตรียมอาหาร ที่มีลักษณะเป็นเคาน์เตอร์ยาว

เตาไฟฟ้าก็จะต่างกับห้อง 1 ห้องนอนนะครับ Type นี้จะได้เตาไฟฟ้า 4 หัว

ของ MEX เจ้าเก่า

ฮูดดูดควัน

ซิ้งค์ล้างจาน พร้อมที่เตรียมอาหาร

ก็อกน้ำ Sierra

เครื่องซักผ้าจะวางอยู่ใต้เคาน์เตอร์ซิ้งค์ล้างจาน

โต๊ะทานอาหารขนาด 4 ท่าน จะอยู่ติดกับเคาน์เตอร์เตรียมอาหาร กั้นกลางระหว่างครัวกับห้องนั่งเล่นนะครับ

เลยจากโต๊ะทานอาหารเข้ามาด้านในจะเป็นส่วน Living Area ที่อยู่ติดกับระเบียง

ผนังด้านหลังทีวีทำเป็นกระจกเข้ามุมเชื่อมต่อกับส่วนของระเบียง สามารถเห็นวิวได้ทั้ง 2 ด้านเลยล่ะครับ

ระยะห่างระหว่างโซฟากับทีวีก็ประมาณนี้นะครับ

ระเบียงก็จะเหมือนกับ Type ที่ผ่านมานะครับ ตำแห่งการวางคอมเพรสเซอร์แอรืก็จะเหมือนกัน

จาก Living Area มาดู Master Bedroom ที่อยู่ใกล้ๆ กันต่อนะครับ ขนาดห้องก็ไม่ได้กว้างมาก วางเตียง 5 ฟุตแล้วจะเหลือพื้นที่ข้างเตียงนิดหน่อย

ปลายเตียงก็จะเหลือพื้นที่ประมาณนี้นะครับ ใช้ทีวีแบบแขวนจะเหมาะกว่า ถ้า Built-in ชั้นวางไปแล้วแทบไม่เหลือที่ให้เดินเลย

ริมหน้าต่างมีที่ว่างเหลือพอให้วางโต๊ะสูงนั่งทำงาน หรือจะวาง Daybed เก๋ๆ ไว้นอนอ่านหนังสือริมหน้าต่างก็ไม่ว่ากัน

ตู้เสื้อผ้า Built-in วางอยู่ข้างเตียง ใกล้ๆ ห้องน้ำ ในห้องนอนใหญ่จะมีห้องน้ำในตัวด้วยนะครับ

สุขภัณฑ์ในห้องน้ำก็เหมือน Type ก่อนๆ นะครับ

ห้องอาบน้ำ

จากห้องนอนใหญ่เราข้ามฟากไปดูห้องนอนเล็กกันบ้างนะครับ

ก่อนถึงห้องนอนเล็กจะมีห้องน้ำอีกห้องนึงนะครับ

ตู้เสื้อผ้าจะวางอยู่หน้าห้องเหมืองห้องนอนใหญ่นะครับ

ห่้องนอนเล็กโครงการจะวางเตียง 3 ฟุตนะครับ ทำให้ข้างเตียงมีที่ว่างเหลือให้วางโต๊ะทำงาน ทำการบ้านได้

โต๊ะทำงานข้างเตียง

ปลายเตียงมีที่เหลือเล็กน้อยให้ Built-in ชั้นวางของ ส่วนทีวีใช้แบบแขวนน่าจะเหมาะกว่าครับ
ความคุ้มค่าน่าลงทุน
ด้วยทำเลที่ตั้งของ Than Living รัชดา-ประชาอุทิศ ที่อยู่ค่อนมาทางถนนประดิษฐ์มนูธรรม (เลียบทางด่วนรามอินทรา-อาจณรงค์) จึงเหมาะกับคนที่ใช้รถส่วนตัวเป็นหลัก และไม่หวังพึ่งพาระบบขนส่งมวลชนมากนัก รวมถึงต้องการที่อยู่อาศัยในย่านประชาอุทิศ เนื่องจากทำเลย่านนี้มีเส้นทางเลี่ยงเข้าออกเมืองได้หลายทาง อีกทั้งยังใกล้ด่านขึ้นลงทางด่วนด้วย ถึงจะมีการจราจรที่ค่อนข้างหนาแน่นหลายจุด แต่ก็ยังถือว่าเดินทางด้วยรถส่วนตัวได้สะดวกดี ผิดกับการเดินทางด้วยระบบขนส่งมวลชนอื่นๆ โดยเฉพาะรถไฟฟ้าที่อยู่ห่างออกไปมาก คนที่ต้องการที่อยู่อาศัยที่สามารถเดินทางด้วยรถไฟฟ้าได้ด้วย โครงการนี้คงไม่ตอบโจทย์เท่าไหร่ ส่วนศักยภาพทางด้านการเติบโตของย่านนี้ คงไม่ได้เป็นดาวรุ่งพุ่งแรงซักเท่าไหร่ ถึงต่อให้โครงการรถไฟฟ้าสายสีส้ม (ตลิ่งชัน-สุวินทวงศ์) สร้างเสร็จใช้งานได้ ตัวโครงการก็คงไม่ได้รับอานิสงค์มากนัก เพราะยังไงสถานีที่ใกล้ที่สุดก็ยังคงมีระยะห่างมากกว่าจะใช้คำว่าเดินทางสะดวกได้
พื้นที่รอบๆ โครงการมีความพร้อมค่อนข้างสูงสำหรับการอยู่อาศัย เพราะเต็มไปด้วยร้านค้า ร้านอาหารมากมาย รวมถึงแหล่งช็อปปิ้ง ห้างสรรพสินค้า และคอมมิวนิตี้มอลล์ ที่พอจะพึ่งพิงได้หลายแห่ง ซึ่งทั้งหมดนี้อยู่ในรัศมีที่ต้องเดินทางด้วยรถส่วนตัวถึงจะสะดวก ส่วนแหล่งพึ่งพิงในระยะเดินถึงก็พอจะมีอยู่บ้าง เช่น ร้านกาแฟ ร้านอาหาร หรือมินิมาร์ทในปั๊มน้ำมันใกล้ๆ บริเวณรอบๆ ไม่ค่อยมีสำนักงาน หน่วยงานราชการใหญ่ๆ เท่าไหร่นัก ดังนั้นคนทำงานกลุ่มนี้จึงไม่ใช่เป้าหมายหลักสำหรับการปล่อยห้องเช่า จากที่ลองสำรวจดู ตัวโครงการอยู่ใกล้โรงเรียนนานาชาติถึง 2 แห่ง ซึ่งกลุ่มครอบครัวที่มีลูกๆ วัยเรียน และครูอาจารย์ในโรงเรียนนานาชาติเหล่านี้น่าจะพอหวังให้มาเช่าห้องได้บ้าง แต่ทั้งนี้ก็คงต้องทำการตกแต่งเชิญชวนกันหนักหน่อย
นอกจากนี้เรื่องความคุ้มค่าจากราคาห้องก็ถือว่า สมน้ำสมเนื้อพอสมควร เพราะวัสดุ สุขภัณฑ์ เครื่องใช้ที่ให้มากับห้องจัดเป็นเกรดพรีเมี่ยมดี รวมถึงพื้นที่ใช้สอยภายในห้องที่ทางโครงการเน้นจัดให้กว้างขวาง มีพื้นที่ส่วนกลางครบครัน และมีขนาดใหญ่เพียงพอต่อการใช้งานได้จริง รวมถึงเรื่องดีไซน์การออกแบบที่ดูทันสมัย จึงน่าจะถูกใจคนรุ่นใหม่ที่ชอบรูปลักษณ์ทันสมัยได้สะดุดตามากๆ ดูจากโมเดลจะเห็นลูกเล่นของเส้นสายกราฟฟิกของตัวตึก High Rise อันเนื่องมาจากตำแหน่งของห้องในแต่ละแบบที่วางสลับกันไปมานั่นเอง สำหรับเรื่องทิศทางของแดดและลม ก็ต้องมาดูที่ตัวที่ดินของโครงการซึ่งวางอยู่ในแนวทิศเหนือ-ใต้ ดังนั้นตัวอาคารจึงต้องหันหน้าเผชิญกับทิศตะวันออกและตะวันตกอย่างเลี่ยงไม่ได้ ห้องในตึก High Riseด้านที่หันหน้าไปทางถนนประดิษฐ์มนูธรรมคงจะร้อนน้อยหน่อย เพราะเป็นทิศตะวันออก ส่วนอีกด้านทางทิศตะวันตก ก็โดนแดดกันไปเต็มๆ ครับ เลี่ยงได้ยากจริงๆ หรือถ้าใครเลือกที่จะอยู่ในตึก Low Rise อาจจะเสียเปรียบเรื่องวิวบ้าง แต่ก็แลกกับร่มเงาที่ได้ตึก High Rise ที่ช่วยผ่อนความร้อนจากแดดเช้าไปได้มากพอสมควร ในขณะที่แดดบ่ายก็ไร้ทางหลบเลี่ยงได้เช่นกัน ออกมาดูรอบๆ โครงการก็ต้องบอกว่า บนถนนประชาอุทิศคึกคักไม่น้อยเลย เพราะมีทั้งร้านค้า ร้านอาหาร สถานบันเทิงมากมาย และปั้มน้ำมันพร้อมมินิมาร์ทที่อยู่ภายในให้เราได้พึ่งพาได้ รวมถึงโรงเรียนนานาชาติที่อยู่ใกล้ๆ กับโครงการอีกหลายแห่ง เช่น โรงเรียนนานาชาติคิซ (KIS International School) โรงเรียนนานาชาติรีเจนท์ (Regent International School) เป็นต้น หรือถ้าออกจากถนนประชาอุทิศไปอีกหน่อย บนถนนประดิษฐ์มนูธรรมก็เต็มไปด้วยร้านอาหาร ห้างสรรพสินค้า คอมมูนิตี้มอลล์ แหล่งช๊อปปิ้งดังๆ มากมาย ถ้ามีรถส่วนตัวไว้ใช้หน่อยการไปไหนมาไหนรอบๆ โครงการก็จัดว่าสะดวกและครบครันมากๆ ครับ

ด้านหน้าโครงการจะหันไปทางทิศเหนือ ซึ่งก็คือด้านถนนประชาอุทิศ ผืนที่ดินบังคับให้อาคารต้องหันไปทางทิศตะวันออกและทิศตะวันตก อย่างหลีกเลี่ยงไม่ได้

มาดูที่อาคาร Low Rise กันก่อนนะครับ ชั้น G ของทั้ง 3 อาคารจะคล้ายๆ กัน ซึ่งจะเป็นที่จอดรถอยู่ใต้อาคาร

ผังอาคาร Low Rise จะเห็นว่า มีที่จอดรถ 3 ชั้น อยู่ใต้อาคาร

ทางลงที่จอดรถชั้นใต้ดิน

มาดูที่ชั้น 2 กันต่อนะครับ ชั้น 2 ของอาคาร A จะเน้นไปที่สวนสีเขียวอยู่ด้านหน้าอาคาร

อาคาร B สำหรับคนรักสุขภาพ ก็จะมี Gym และสระว่ายน้ำ สระใหญ่ อยู่ด้านหน้าอาคาร

อาคาร C จะมีสระว่ายน้ำ สระเล็ก

ภาพจำลองบรรยากาศพื้นที่ส่วนกลางระหว่างอาคารทั้ง 2 ฝั่ง

มาดูที่กันที่อาคาร High Rise บ้างนะครับ ที่ชั้น G ของแต่ละอาคารก็จะคล้ายๆ กัน เป็นที่จอดรถใต้อาคารส่วนหนึ่ง และอีกส่วนหนึ่งก็จะเป็น Facility อย่าง Lobby, Mailbox, Shop, Gym แตกต่างกันไปในแต่ละอาคาร เรามาเริ่มจากอาคาร Smart 1 ซึ่งเป็นอาคารที่อยู่ด้านหน้าสุดกันก่อนนะครับ ที่ตึก Smart 1 นอกจากจะมี Lobby และ Mailbox ก็จะมี Coffee Shop อยู่ด้วย

อาคาร Smart 2 เป็นอาคารที่อยู่ตรงข้ามกับอาคาร B (B Healthy) ที่จะเน้น Facility อย่างสระว่ายน้ำ และ Gym ที่ใต้อาคาร Smart 2 นี้จึงมา Gym ให้อีกหนึ่งห้องครับ ซึ่งใหญ่กว่าที่อาคาร B ด้วย

หน้าตาของ Gym ใต้อาคาร Smart 2

อาคาร Smart 3 จะมีห้องสมุดสำหรับอ่านหนังสือ นั่งติวหนังสือ หรือทำการบ้านได้ ครับ

บรรยากาศของห้องสมุดใต้อาคาร Smart 3

ส่วนที่พักอาศัยจะเริ่มที่ชั้น 2 ขึ้นไปนะครับ เฉลี่ยแล้วจะอยู่ที่ประมาณ 10 ยูนิตต่อชั้น การวาง Layout ของทั้ง 3 อาคารก็จะคล้ายๆ กัน

ที่ชั้น 18-19 อาคาร Smart 2 และ ชั้น 19-20 อาคาร Smart 3 จะเป็นห้อง Duplex

ส่วนที่ชั้นบนสุดของอาคาร High Rise ของทั้ง 3 อาคาร จะเป็นห้อง Penthouse
พาชมห้องตัวอย่าง
ถึงคราวของห้องตัวอย่างกันบ้างครับ ทางโครงการเตรียมห้องตัวอย่างให้เราได้ชมด้วยกัน 4 แบบ
เริ่มต้นกันด้วยห้องแบบ 1 ห้องนอน Type 1A ที่ขนาด 32 ตร.ม. โดยประมาณ เปิดประตู้ห้องนี้เข้ามาก็จะเจอส่วนของห้องครัวก่อนเลยครับ พื้นที่ตรงข้ามเคาน์เตอร์ครัวเว้นเป็นที่วางตู้เย็นได้ ส่วนตู้ Built-in ในห้องตัวอย่างจะมีไว้เพื่อการตกแต่งเท่านั้น ของจริงไม่ได้มาพร้อมกับห้องนะครับ ถัดเข้าไปด้านในเป็น Living Area ที่จัดสรรพื้นที่ให้โต๊ะกินข้าวชุดเล็กๆ อยู่รวมกับชุดโซฟานั่งเล่นได้พอดี ระยะห่างระหว่างโซฟากับผนังห้องที่ใช้แขวนทีวีมีขนาดกำลังพอเหมาะ ประกอบกับอยู่ติดระเบียงจึงช่วยให้บรรยากาศโดยรวมดูสบายตามากขึ้น ภายในห้องนอน ทางโครงการมีตู้เสื้อผ้า Built-in มาให้ พื้นที่ที่เหลือพอวางเตียงขนาด 5 ฟุตลงไปแล้วก็เกือบจะเต็มห้องพอดี จะมีพื้นที่ติดหน้าต่างเหลือไว้นิดหน่อย พอจะวางโต๊ะทำงาน หรือใช้ทำประโยชน์อื่นๆ ได้บ้าง ส่วนห้องน้ำของห้องนี้อยู่ในห้องนอนนะครับ ซึ่งด้านในห้องน้ำก็แบ่งโซนแห้งโซนเปียกไว้ชัดเจน มีกระจกเทมเปอร์กั้นห้องอาบน้ำไว้ กระจกเหนืออ่างล้างหน้าก็เป็นบานใหญ่แบบในห้องตัวอย่างเลย ฟังก์ชั่นเล็กๆ น้อยๆ ภายในห้องน้ำถือว่าทางโครงการค่อนข้างใส่ใจในรายละเอียด ทั้งชั้นวางของที่ยาวเต็มพื้นที่ ทำให้วางของได้มากขึ้น และที่วางกระดาษทิชชู่ด้านข้างอ่างล้างหน้า ซึ่งช่วยประหยัดพื้นที่ได้ดี แต่ในขณะเดียวกันก็มีข้อเสียเล็กๆ น้อยๆ ที่เราเห็นแล้วขัดตาขัดใจบ้าง อย่างเช่น หัวก๊อกน้ำที่อ่างล้างหน้า ที่ถูกชั้นวางของด้านบนติดตั้งในตำแหน่งเกือบชิดติดกัน คือเวลาใช้งานก็ปกติแหละครับไม่ได้มีปัญหาหรอก แต่ถ้าเกิดต้องซ่อมแซมหัวก๊อกขึ้นมาคงวุ่นวายกันน่าดู จุดที่สองที่ขัดใจก็คือ พื้นตรงส่วนห้องอาบน้ำไม่มีการดร๊อปให้ต่ำลงไป หรือไม่ได้มีการก่อธรณีให้สูงขึ้นมาเพื่อป้องกันน้ำไหลมาที่ส่วนแห้ง เวลาใช้งานจริงๆ เชื่อว่าน้ำซึมออกมาได้แน่นอน แถมตรงประตูห้องน้ำก็ไม่ได้ก่อธรณีกั้นไว้อีก ถ้าเกิดท่อตัน หรือน้ำระบายไม่ทัน มีโอกาสที่จะไหลเข้าห้องนอนได้นะครับ ตรงจุดนี้ถ้าแก้ไขได้อีกนิดหน่อยคงจะดีกว่านี้เยอะครับ สำหรับพื้นที่ระเบียงของห้อง ต้องขอยกให้เป็นจุดเด่นข้อหนึ่งเลย ด้วยพื้นที่ระเบียงที่จัดว่ากว้างพอให้ใช้ประโยชน์ได้ อีกทั้งยังจัดสรรพื้นที่ไว้แขวนคอมเพรสเซอร์แอร์ และวางเครื่องซักผ้าไว้อย่างเป็นสัดเป็นส่วน ทำให้พื้นที่ตรงระเบียงเหลือมากพอให้ใช้ตากผ้า หรือจัดสวนเล็กๆ ได้เลย

มาดูแบบ 1 ห้องนอน Type 1A ขนาด 32 ตารางเมตร กันก่อนนะครับ

Plan ห้อง

ที่นี่จะใช้ประตู Digital Door Lock แบบนี้นะครับ

สวิตช์และปลั๊กไฟทั้งหมดของที่นี่จะใช้ยี่ห้อ Sierra

เมื่อเข้ามาในห้องแล้ว จะเจอกับส่วนครัวที่ตั้งอยู่หน้าห้องก่อนเลยนะครับ ด้านขวามือจะเป็นเคาน์เตอร์ครัว ส่วนด้านซ้ายจะเป็นตู้ที่ Built-in ขึ้นมาเป็นตู้เก็บของ และช่องใส่ตู้เย็น

เคาน์เตอร์ครัว จะวางเตาไฟฟ้าไว้ด้านขวา ซิ้งค์ล้างจานอยู่ด้านซ้าย ตัวท็อปจะเป็นหินควอทซ์ มีช่องใส่ไมโครเวฟอยู่ด้านล่าง

ซิ้งค์ล้างจานแบบฝัง

ตัวก็อกจะใช้ยี่ห้อ Sierra เหมือนกันครับ

เตาไฟฟ้า 2 หัว ของ MEX

มาพร้อมฮูดดูดควัน ยี่ห้อเดียวกัน

ฝั่งตรงข้าม เยื้องๆ กับครัว จะเป็นโต๊ะทานอาคารสำหรับ 2 ท่าน

เลยเข้ามาด้านในจะเป็น Living Area ที่อยู่ติดกับระเบียง ระยะห่างระหว่างโซฟากับทีวีก็ประมาณนี้นะครับ

ออกมาดูที่ระเบียงกันต่อเลยนะครับ

จุดวางเครื่องซักผ้าจะอยู่ที่ระเบียง ส่วนคอมเพรสเซอร์แอร์จะแขวนอยู่เหนือเครื่องซักผ้า หันออกนอกระเบียง แล้วก็จะมีประตูเหล็กปิดกั้นอย่างเป็นสัดส่วนให้ด้วยนะครับ

รางประตูกระจกบานสไลด์ ทำมาเนียบใช้ได้เลยครับ

มาดูที่ห้องนอนกันต่อนะครับ วางเตียง 5 ฟุตกำลังพอดีครับ มีพื้นที่เหลือให้วางอย่างอื่นได้บ้าง

พื้นที่ปลายเตียงมีที่เหลือพอให้ Built-in ชั้นวางทีวีได้นิดหน่อย แต่ถ้าใช้ทีวีแบบแขวนก็จะมีที่วางของเพิ่มขึ้นอีกครับ

ด้านข้างเตียงที่ติดกันหน้าต่างมีที่เหลือเยอะพอสมควร ห้องตัวอย่างจะ Built-in เป็นเหมือนโต๊ะนั่งทำงาน แต่ห้องจริงไม่ได้แบบนี้นะครับ

หน้าต่างจะเป็นบาน fix นะครับ และมีบานกระทุ้ง 1 บาน

ส่วนอีกฝั่งจะเป็นตู้เสื้อผ้า

มุมมองจาก Living Area เข้าไปในห้องนอน

ห้องน้ำจะอยู่ในห้องนอนนะครับ เดี๋ยวไปดูห้องน้ำกันต่อเลย

ธรณีประตูเตี้ยๆ กั้นระหว่างห้องน้ำกับห้องนอน

การวางสุขภัณฑ์ในห้องน้ำ

อ่างล้างหน้าทรงสี่เหลี่ยมของ Sierra

ข้างๆ อ่างล้างหน้า เว้าเข้าไปให้มีที่แขวนกระดาษทิชชู่ และวางของได้ด้วย

โถสุขภัณฑ์ อยู่ข้างๆ ห้องอาบน้ำ

ห้องอาบน้ำจะกั้นด้วยประตูกระจก Temper


ชุดฝักบัวของ Sierra เหมือนกันครับ
ห้องต่อไปคือเป็นห้อง Type 1B ซึ่งยังคงเป็นแบบ 1 ห้องนอน ในขนาดห้องที่ใกล้เคียงกับห้องแรก คือ 33 ตร.ม. โดย Layout ของห้องนี้จะจัดแบ่งพื้นที่ภายในห้องไว้เป็นสัดส่วนชัดเจน เปิดเข้าห้องมาจะเจอ Living Area ก่อนเป็นอันดับแรก ถัดเข้าไปด้านในก็จะเป็นครัวแบบปิดพร้อมประตูกระจกบานเลื่อน ช่วยป้องกันปัญหากลิ่นรบกวนภายในห้องระหว่างทำครัวได้ดี พื้นที่ครัวของห้องนี้กว้างขวางติดกับระเบียง ซึ่งก็กว้างขนาดที่วันไหนเกิดอยากลองเปลี่ยนบรรยากาศย้ายโต๊ะออกไปนั่งกินข้าวชมวิวที่ระเบียงก็สามารถย้ายโต๊ะไปตั้งได้เลยครับ ส่วนอีกโซนของห้อง จะเป็นพื้นที่ของห้องนอนพร้อมห้องน้ำในตัว ซึ่งพื้นที่ใช้สอยภายในห้องนอนก็กำลังพอเหมาะแบบคนที่ข้าวของไม่เยอะมาก เพราะมีตู้เสื้อผ้า Built-in มาให้เท่านั้น ส่วนชั้นเก็บของอื่นๆ คงต้องเฟ้นหาเพิ่มเติมกันเอง ในขณะที่ห้องน้ำก็มี Layout เหมือนกับห้องก่อนหน้านี้เลยครับ ทั้งวัสดุสุขภัณฑ์และตำแหน่งที่ติดตั้ง สำหรับห้องตัวอย่างห้องนี้ถ้าใครได้เห็นคงรู้สึกถูกใจกับพื้นที่ใช้สอยภายในห้องที่จัดไว้ได้ลงตัวมากๆ อีกทั้งยังให้บรรยากาศที่โล่งโปร่งสบายด้วย เห็นห้องตัวอย่างแล้วก็อย่าลืมว่า ของจริงทางโครงการขายให้มาเป็นห้องเปล่าๆ นะครับ ไม่ได้มีเฟอร์นิเจอร์ตกแต่งพร้อมเข้าอยู่ พวกลูกเล่นเล็กๆ น้อยๆ ตามมุมต่างๆ ที่เห็นในห้องตัวอย่างเป็นแค่ไอเดียการตกแต่งเท่านั้นครับ

ต่อไปเป็นห้อง 1 ห้องนอน Type 1B ขนาด 33 ตารางเมตรนะครับ

Plan ห้อง

Type นี้เข้ามาแล้วจะเจอส่วน Living Area ก่อนเลยนะครับ

มุมมองจากในห้อง ระยะห่างระหว่างโซฟากับทีวีก็ประมาณนี้นะครับ

ถ้าวางโซฟาขนาดเท่านี้ ด้านข้างจะมีพื้นที่เหลือให้วางโต๊ะข้างได้อีกนะครับ

ชั้นวางของเหนือโซฟา

โต๊ะข้างโซฟา

ถัดเข้ามาด้านในเป็นห้องครัว ครัวของ Type นี้จะเป็นแบบปิดนะครับ

กั้นระหว่างครัวกับ Living Area ด้วยประตูกระจกบานเลื่อน

ข้างบนทางเข้าห้องครัว มีการทำชั้นวางของหลบอยู่ด้วย เก๋ไปอีกแบบ แต่ห้องจริงไม่มีให้แบบนี้นะครับ

เคาน์เตอร์ครัวก็จะเหมือนๆ กับ Type 1A เลยครับ

มุมมองจากระเบียงเข้ามาในห้อง จะเห็นโต๊ะทานอาคารขนาด 2 ท่าน อยู่ตรงข้ามกับครัว

ประตูกระจกบานเลื่อนกั้นระหว่างระเบียงกับครัว

ระเบียงของ Type 1B จะไม่เหมือนกับ 1A นะครับ ของ Type นี้ระเบียงจะเป็นทรงสามเหลี่ยม เลยดูเหมือนจะกว้างกว่า

ส่วนที่วางเครื่องซักผ้า และคอมเพรสเซอร์แอร์จะอยู่ตำแหน่งเดียวกันกับ Type 1A ครับ

กลับเข้ามาดูที่ห้องนอนกันต่อนะครับ

ห้องนอนวางเตียง 5 ฟุตกำลังเหมาะครับ จะได้มีที่เหลือให้วางอย่างอื่นได้ด้วย

ปลายเตียงมีที่เหลือให้พอเดินได้ แต่วางชั้นวางทีวีไม่ได้ ต้องแขวนอย่างเดียวครับ

อีกฝั่งของเตียงจะเป็นตู้เสื้อผ้า ที่จะอยู่ติดกับห้องน้ำเลยครับ

ตู้เสื้อผ้า Built-in อยู่ติดกับห้องน้ำ เดี๋ยวเราเข้าไปดูในห้องน้ำกันต่อเลยนะครับ ซึ่งชุดสุขภัณฑ์และการจัดวางก็จะเหมือนๆ กับ Type 1A

อ่างล้างหน้า

โถสุขภัณฑ์

ห้องอาบน้ำ
ทีนี้มาดูห้อง Type 1C กันบ้างครับ ห้องนี้นับว่าโดดเด่นมากเลยทีเดียว ด้วยการออกแบบให้เพดานห้องเป็นแบบ Double Volume สูงถึง 5.5 เมตรและเพิ่มพื้นที่ใช้สอยในส่วนของชั้นลอยเข้ามา ทำให้ห้องนี้ดูน่าสนใจมากขึ้น จากประตูทางเข้าห้อง ขวามือจะเป็นพื้นที่ของห้องครัว ซึ่งเป็นครัวแบบเปิดเชื่อมต่อกับ Living Area ด้วยโต๊ะกินข้าวเล็กๆ อีกชุด ถัดเข้ามาจากห้องครัวเป็นห้องน้ำและห้องนอนนะครับ รูปแบบและการจัดวางพื้นที่ในห้องน้ำคล้ายกับห้องก่อนหน้าเลย แต่ห้องนอนของห้องนี้รู้สึกว่าจะมีพื้นที่ค่อนข้างเล็กกว่าห้องอื่นๆ เล็กน้อย ไม่รู้ว่าคิดไปเองรึเปล่านะครับ แต่เท่าที่เห็นในห้องพอวางเตียงขนาด 5 ฟุต และใส่ตู้เสื้อผ้า Built-in เข้าไปแล้ว ก็แทบจะไม่เหลือพื้นที่ว่างเลย บางทีอาจจะเป็นเพราะว่าห้องแบบนี้มีพื้นที่ชั้นลอยมาให้ใช้เพิ่มเติมแล้วมั้งครับ ในห้องนอนจึงไม่ได้ใส่ฟังก์ชั่นอะไรมาก บริเวณชั้นลอยก็สามารถจัดเป็นมุมทำงาน มุมอ่านหนังสือ หรือใช้เก็บของก็ได้ ถึงแม้ห้องแบบนี้จะมีการออกแบบที่แปลกและเก๋ไก๋ แต่ก็มีข้อจำกัดบ้างในบางเรื่อง เช่น ตำแหน่งที่แขวนทีวี ที่ต้องแขวนไว้ตรงชานพักบันไดเลย ซึ่งดูไม่ชินตาซักเท่าไหร่ แต่ด้วยพื้นที่ของ Living Area ที่มีบันไดเพิ่มเข้ามา การจะจัดห้องให้เป็นรูปแบบที่ต่างออกไปคงยากหน่อยครับ อ้อ ข้อเสียอีกอย่างของห้องแบบนี้คือ ใช้แอร์เปลืองมากหน่อย เพราะต้องติดแอร์ถึง 3 จุด ทั้งในห้องนอน โซนนั่งเล่น และชั้นลอยที่ต้องติดแยกกัน ไม่อย่างนั้นเพดานสูงๆ แบบนี้เย็นไม่ทั่วแน่ๆ

ต่อมาเป็น Type 1C แบบ 1 ห้องนอน ขนาด 31 ตารางเมตร ที่โดดเด่นด้วยการทำห้องแบบDouble Volume เพดานสูง 5.5 เมตร และเพิ่มพื้นที่ใช้สอยในส่วนของชั้นลอยเข้ามา

Plan ห้อง

เมื่อเปิดประตูเข้ามาแล้ว มองตรงไปก็จะเป็นส่วน Living Area

แต่เราจะมาดูทางขวามือที่เป็นส่วนครัวกันก่อนนะครับ ส่วนครัวจะเป็นแบบเปิดตั้งอยู่หน้าห้อง ฝั่งตรงข้ามที่อยู่ใต้บันไดก็จะเป็นจุดวางตู้เย็น

เคาน์เตอร์ครัวก็จะคล้ายๆ กับ Type ที่ผ่านมานะครับ แต่จะต่างกันตรงที่ห้องนี้จะย้ายเครื่องซักผ้ามาไว้ใต้เคาน์เตอร์ครัวแทน ส่วนวัสดุที่ใช้ และเครื่องครัวก็เหมือนเดิมหมด

ส่วนไมโครเวฟ ก็อาจจะต้องเอาไปไว้ที่ชั้นลอยด้านบน

เดินเลยผ่านครัวเข้ามาก็จะเป็นห้องน้ำกับห้องนอน เดี๋ยวเราไปดูห้องนอนกันก่อนนะครับ

ตู้เสื้อผ้า Built-in อยู่หน้าห้องนอน

ห้องนอน Type นี้ ค่อนข้างจะเล็กอยู่สักหน่อยนะครับ วางเตียง 5 ฟุตแล้ว ทางด้านซ้ายของเตียงจะมีพื้นที่เหลือนิดหน่อยให้วางโต๊ะข้างหรือโคมไฟได้

ส่วนด้านขวาที่ติดกับหน้าต่างบานกระทุ้ง จะมีที่เหลือพอให้ผ้าม่านเท่านั้น

ออกมาดูที่ห้องน้ำกันต่อนะครับ สุขภัณฑ์ที่ใช้และการจัดวางก็จะเหมือนกับห้องที่ผ่านๆ มา

ห้องอาบน้ำ

กลับมาที่ส่วน Living Area โต๊ะทานอาหารขนาด 2 ท่านจะตั้งอยู่ตรงข้ามกับครัว ข้างๆ โซฟา

ฝั่งตรงข้ามโซฟาจะเป็นจุดที่วางทีวี บวกกับบันไดขึ้นชันลอย เนื่องจากพื้นที่มีจำกัด

ระเบียงจะอยู่ติดกับส่วน Living Area นะครับ กั้นด้วยประตูกระจกบานเลื่อนเหมือนห้องที่ผ่านมา จุดวางคอมเพรสเซอร์แอร์ก็จะอยู่ตรงนี้นะครับ หันหน้าออกนอกระเบียง

มุมมองจากระเบียง

บันไดขึ้นชั้นลอยจะเป็นบันไดเหล็กนะครับ ดูแล้วอาจจะแคบและชันอยู่สักหน่อย เวลาเดินชึ้น เดินลง ก็ต้องระมัดระวังกันด้วยนะครับ

โต๊ะทำงานที่ชั้นลอย

ชั้นวางของ Built-in ด้านหลังโต๊ะทำงาน

มุมมองจากโต๊ะทำงาน ติดโคมไฟเก๋ๆ เพิ่มบรรยากาศในการนั่งทำงาน

มุมมองจากชั้นลอยลงมาที่ Living Area
แล้วก็มาถึงห้องแบบสุดท้ายคือ Type 2A เป็นห้องแบบ 2 ห้องนอน มีขนาดพื้นที่ 56 ตร.ม. ซึ่งห้อง Type นี้จะเป็นห้องหน้ากว้างและอยู่ในตำแหน่งมุมของอาคารHigh Rise เท่านั้นนะครับ เมื่อเปิดประตูห้องเข้ามาจะเห็นพื้นที่ครัวอยู่ตรงหน้าพอดี ส่วนพื้นที่อื่นๆ จะแยกออกเป็นฝั่งซ้ายและขวา โดยที่ด้านขวาจะเป็น Living Area ติดกับระเบียงและได้กระจกแบบเข้ามุม ซึ่งจะช่วยให้เห็นวิวได้กว้างขึ้น และรับแสงธรรมชาติได้มากขึ้นด้วย แต่พอต้องวางทีวีไว้ที่ตำแหน่งหน้ากระจกใสบานใหญ่ ก็ทำให้เกิดปัญหาแสงสะท้อนเข้าตาขณะดูทีวีอีก ดังนั้นผ้าม่านที่มุมนี้คงได้ใช้งานเปิดๆ ปิดๆ บ่อยแน่นอน ด้านที่ติดกันกับชุดโซฟาใน Living Area จะเป็นห้องนอนใหญ่ หรือ Master Bedroom ครับ พื้นที่ในห้องนอนไม่ได้กว้างมาก วางเตียง และตู้เสื้อผ้า Built-in ไปแล้วก็เหลือที่แค่พอเดินได้เท่านั้น ส่วนบริเวณหน้าต่างของห้องนี้ก็อาจจะวาง Day Bed หรือโต๊ะสูงตามแบบห้องตัวอย่างก็ได้เช่นกัน ห้องน้ำของห้องนอนใหญ่ก็ไม่มีอะไรมาก คล้ายๆ กับห้องที่ผ่านมานั่นแหละ ข้ามไปที่โซนทางด้านซ้ายของห้องบ้าง ติดกับห้องครัวเป็นห้องน้ำอยู่หน้าห้องนอนเล็กเลย ส่วนพื้นที่ในห้องนอนก็กำลังกระทัดรัด วางเตียง 3.5 ฟุต แล้วก็เหลือที่ว่างให้ตั้งโต๊ะทำงานเล็กๆ ได้อีกหน่อย ถ้าเป็นห้องของเด็กๆ ก็ดูลงตัวน่ารักดีครับ

ห้องสุดท้ายเป็นแบบ 2 ห้องนอน Type 2A ขนาด 56 ตารางเมตร

Plan ห้อง

เข้ามาในห้องแล้วจะเจอส่วนครัวที่อยู่ตรงกับประตูห้องก่อนเลยนะครับ ครัว Type นี้ จะแยกออกเป็น 2 ฝั่ง

หน้าตาครัวจะได้แบบนี้นะครับ ตู้เย็นจะอยู่ฝั่งเดียวกับเตาไฟฟ้า ส่วนอีกฝั่งจะเป็นซิ้งค์ล้างจานพร้อมที่เตรียมอาหาร ที่มีลักษณะเป็นเคาน์เตอร์ยาว

เตาไฟฟ้าก็จะต่างกับห้อง 1 ห้องนอนนะครับ Type นี้จะได้เตาไฟฟ้า 4 หัว

ของ MEX เจ้าเก่า

ฮูดดูดควัน

ซิ้งค์ล้างจาน พร้อมที่เตรียมอาหาร

ก็อกน้ำ Sierra

เครื่องซักผ้าจะวางอยู่ใต้เคาน์เตอร์ซิ้งค์ล้างจาน

โต๊ะทานอาหารขนาด 4 ท่าน จะอยู่ติดกับเคาน์เตอร์เตรียมอาหาร กั้นกลางระหว่างครัวกับห้องนั่งเล่นนะครับ

เลยจากโต๊ะทานอาหารเข้ามาด้านในจะเป็นส่วน Living Area ที่อยู่ติดกับระเบียง

ผนังด้านหลังทีวีทำเป็นกระจกเข้ามุมเชื่อมต่อกับส่วนของระเบียง สามารถเห็นวิวได้ทั้ง 2 ด้านเลยล่ะครับ

ระยะห่างระหว่างโซฟากับทีวีก็ประมาณนี้นะครับ

ระเบียงก็จะเหมือนกับ Type ที่ผ่านมานะครับ ตำแห่งการวางคอมเพรสเซอร์แอรืก็จะเหมือนกัน

จาก Living Area มาดู Master Bedroom ที่อยู่ใกล้ๆ กันต่อนะครับ ขนาดห้องก็ไม่ได้กว้างมาก วางเตียง 5 ฟุตแล้วจะเหลือพื้นที่ข้างเตียงนิดหน่อย

ปลายเตียงก็จะเหลือพื้นที่ประมาณนี้นะครับ ใช้ทีวีแบบแขวนจะเหมาะกว่า ถ้า Built-in ชั้นวางไปแล้วแทบไม่เหลือที่ให้เดินเลย

ริมหน้าต่างมีที่ว่างเหลือพอให้วางโต๊ะสูงนั่งทำงาน หรือจะวาง Daybed เก๋ๆ ไว้นอนอ่านหนังสือริมหน้าต่างก็ไม่ว่ากัน

ตู้เสื้อผ้า Built-in วางอยู่ข้างเตียง ใกล้ๆ ห้องน้ำ ในห้องนอนใหญ่จะมีห้องน้ำในตัวด้วยนะครับ

สุขภัณฑ์ในห้องน้ำก็เหมือน Type ก่อนๆ นะครับ

ห้องอาบน้ำ

จากห้องนอนใหญ่เราข้ามฟากไปดูห้องนอนเล็กกันบ้างนะครับ

ก่อนถึงห้องนอนเล็กจะมีห้องน้ำอีกห้องนึงนะครับ

ตู้เสื้อผ้าจะวางอยู่หน้าห้องเหมืองห้องนอนใหญ่นะครับ

ห่้องนอนเล็กโครงการจะวางเตียง 3 ฟุตนะครับ ทำให้ข้างเตียงมีที่ว่างเหลือให้วางโต๊ะทำงาน ทำการบ้านได้

โต๊ะทำงานข้างเตียง

ปลายเตียงมีที่เหลือเล็กน้อยให้ Built-in ชั้นวางของ ส่วนทีวีใช้แบบแขวนน่าจะเหมาะกว่าครับ
ความคุ้มค่าน่าลงทุน
ด้วยทำเลที่ตั้งของ Than Living รัชดา-ประชาอุทิศ ที่อยู่ค่อนมาทางถนนประดิษฐ์มนูธรรม (เลียบทางด่วนรามอินทรา-อาจณรงค์) จึงเหมาะกับคนที่ใช้รถส่วนตัวเป็นหลัก และไม่หวังพึ่งพาระบบขนส่งมวลชนมากนัก รวมถึงต้องการที่อยู่อาศัยในย่านประชาอุทิศ เนื่องจากทำเลย่านนี้มีเส้นทางเลี่ยงเข้าออกเมืองได้หลายทาง อีกทั้งยังใกล้ด่านขึ้นลงทางด่วนด้วย ถึงจะมีการจราจรที่ค่อนข้างหนาแน่นหลายจุด แต่ก็ยังถือว่าเดินทางด้วยรถส่วนตัวได้สะดวกดี ผิดกับการเดินทางด้วยระบบขนส่งมวลชนอื่นๆ โดยเฉพาะรถไฟฟ้าที่อยู่ห่างออกไปมาก คนที่ต้องการที่อยู่อาศัยที่สามารถเดินทางด้วยรถไฟฟ้าได้ด้วย โครงการนี้คงไม่ตอบโจทย์เท่าไหร่ ส่วนศักยภาพทางด้านการเติบโตของย่านนี้ คงไม่ได้เป็นดาวรุ่งพุ่งแรงซักเท่าไหร่ ถึงต่อให้โครงการรถไฟฟ้าสายสีส้ม (ตลิ่งชัน-สุวินทวงศ์) สร้างเสร็จใช้งานได้ ตัวโครงการก็คงไม่ได้รับอานิสงค์มากนัก เพราะยังไงสถานีที่ใกล้ที่สุดก็ยังคงมีระยะห่างมากกว่าจะใช้คำว่าเดินทางสะดวกได้
พื้นที่รอบๆ โครงการมีความพร้อมค่อนข้างสูงสำหรับการอยู่อาศัย เพราะเต็มไปด้วยร้านค้า ร้านอาหารมากมาย รวมถึงแหล่งช็อปปิ้ง ห้างสรรพสินค้า และคอมมิวนิตี้มอลล์ ที่พอจะพึ่งพิงได้หลายแห่ง ซึ่งทั้งหมดนี้อยู่ในรัศมีที่ต้องเดินทางด้วยรถส่วนตัวถึงจะสะดวก ส่วนแหล่งพึ่งพิงในระยะเดินถึงก็พอจะมีอยู่บ้าง เช่น ร้านกาแฟ ร้านอาหาร หรือมินิมาร์ทในปั๊มน้ำมันใกล้ๆ บริเวณรอบๆ ไม่ค่อยมีสำนักงาน หน่วยงานราชการใหญ่ๆ เท่าไหร่นัก ดังนั้นคนทำงานกลุ่มนี้จึงไม่ใช่เป้าหมายหลักสำหรับการปล่อยห้องเช่า จากที่ลองสำรวจดู ตัวโครงการอยู่ใกล้โรงเรียนนานาชาติถึง 2 แห่ง ซึ่งกลุ่มครอบครัวที่มีลูกๆ วัยเรียน และครูอาจารย์ในโรงเรียนนานาชาติเหล่านี้น่าจะพอหวังให้มาเช่าห้องได้บ้าง แต่ทั้งนี้ก็คงต้องทำการตกแต่งเชิญชวนกันหนักหน่อย
นอกจากนี้เรื่องความคุ้มค่าจากราคาห้องก็ถือว่า สมน้ำสมเนื้อพอสมควร เพราะวัสดุ สุขภัณฑ์ เครื่องใช้ที่ให้มากับห้องจัดเป็นเกรดพรีเมี่ยมดี รวมถึงพื้นที่ใช้สอยภายในห้องที่ทางโครงการเน้นจัดให้กว้างขวาง มีพื้นที่ส่วนกลางครบครัน และมีขนาดใหญ่เพียงพอต่อการใช้งานได้จริง รวมถึงเรื่องดีไซน์การออกแบบที่ดูทันสมัย จึงน่าจะถูกใจคนรุ่นใหม่ที่ชอบรูปลักษณ์ทันสมัย