

THE LINE จตุจักร-หมอชิต คอนโด High Rise โครงการใหม่จากแสนสิริ ตรงข้ามสวนจตุจักร ใกล้ BTS หมอชิตและ MRT สวนจตุจักร พร้อมวิวสวนจตุจักรขนาด 700 ไร่และวิวเมืองที่โดดเด่นยามค่ำคืน

ราคาเริ่มต้น 4,000,000 บาท
ราคาต่อตารางเมตร ประมาณ 159,000 บาท
เจ้าของโครงการ บริษัท แสนสิริ จำกัด (มหาชน)
ลักษณะคอนโด High Rise สูง 43 ชั้น 1 อาคาร
จำนวนห้อง 841 ยูนิต
เนื้อที่ทั้งหมด 4 – 2 – 95 ไร่
ที่ตั้งโครงการ ถนนพหลโยธิน แขวงจตุจักร เขตจตุจักร กรุงเทพฯ
ที่จอดรถ ประมาณ 420 คัน หรือคิดเป็น 50%
คาดว่าจะแล้วเสร็จ ต้นปี 2561


Master Plan โครงการ

Facility หลักของโครงการจะอยู่ที่ชั้น 7-9 ทั้งสระว่ายน้ำ ฟิตเนส สวนหย่อมขนาดใหญ่ และ Jogging Track

ตั้งแต่ชั้น 10 ขึ้นไปจะเป็นส่วนของห้องพักอาศัย
สวนจตุจักร
ตลาดอ.ต.ก.
JJ Green
JJ Mall
เซ็นทรัล ลาดพร้าว
ยูเนี่ยน มอลล์
สวนสิริกิติ์
สวนรถไฟ
โรงเรียนหอวัง
โรงเรียนเซนต์จอนห์
มหาวิทยาลัยเกษตรศาสตร์
โรงพยาบาลวิภาวดี
โรงพยาบาลเกษมราษฎร์

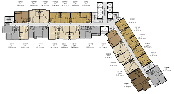
1 Bedroom ขนาด 25.25 – 26.5 ตารางเมตร ราคาเริ่มต้น 4 ล้านบาท 668 ยูนิต
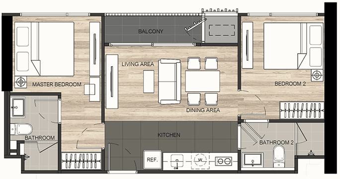
2 Bedroom ขนาด 53.5 – 66 ตารางเมตร ราคาเริ่มต้น 9 ล้านบาท 134 ยูนิต
3 Bedroom ขนาด 77.75 – 85.25 ตารางเมตร ราคาเริ่มต้น 13 ล้านบาท 34 ยูนิต
Duplex ขนาด 102.5 – 105.75 ตารางเมตร ราคาเริ่มต้น 15.5 ล้านบาท 5 ยูนิต

Type 1A แบบ 1 ห้องนอน ขนาด 25.75 – 26.50 ตารางเมตร

Type 2A แบบ 2 ห้องนอน ขนาด 56.75 ตารางเมตร

Type 2B แบบ 2 ห้องนอน ขนาด 53.5 ตารางเมตร

Type 3A แบบ 3 ห้องนอน ขนาด 77.75 ตารางเมตร

Type 3A-1 แบบ 3 ห้องนอน ขนาด 85.25 ตารางเมตร
Type 3DP แบบ 3 ห้องนอน Duplex ขนาด 105.75 ตารางเมตร
สระว่ายน้ำ ระบบเกลือ ขนาด 40 x 6.4 ม.
ห้องออกกำลังกาย แบบ Double Space
Kids Room แบบ Triple Space
Library
Meeting Room
Business Lounge
Game Room
Sky Pavilion พร้อมจากุชชี่
สวนหย่อมรอบโครงการ
ระบบ CCTV / Access Card









สอบถามรายละเอียดเพิ่มเติม โทร : 1685
ดูรายละเอียดเพิ่มเติม : https://www.sansiri.com/condominium/theline_jatujak_mochit/th/