

หลังจากที่ดูคอนโดแนวรถไฟฟ้าในแถบชานเมืองกันมาหลายโครงการแล้ว คราวนี้ขอพามาดูโครงการในเขตเมืองกันบ้างนะครับ โครงการ Than Living สาทร-เจริญราษฏร์ คอนโด High Rise สูง 36 ชั้น ริมถนนเจริญราษฏร์ ซึ่งถือว่าอยู่ใกล้ใจกลางเมืองหรือถนนสาทรแค่เอื้อม

การเดินทาง
โครงการ Than Living สาทร-เจริญราษฎร์ ตั้งอยู่บนถนนเจริญราษฎร์ช่วงระหว่างถนนจันทน์ไปยังถนนพระราม 3 ห่างจากรถไฟฟ้า BTS สถานีสุรศักดิ์ประมาณ 2 กิโลเมตร ซึ่งถือว่าเป็นระยะทางที่ไกลอยู่พอสมควร ถ้าเลือกเดินทางด้วยรถไฟฟ้า BTS พอลงจากสถานีแล้วต้องอาศัยต่อรถแท็กซี่ หรือมอเตอร์ไซค์รับจ้างต่อมายังโครงการแบบไม่ค่อยมีทางเลือก เพราะการเดินเท้าคงไม่ใช่ตัวเลือกที่ดีนัก ด้วยระยะทาง 2 กิโลเมตร บนเส้นทางถนนเจริญราษฎร์ที่เป็นถนนตัดใหม่และมีบ้านเรือนหรือร้านค้าอยู่ประปรายเนื่องจากเป็นถนนใหญ่ที่อยู่ใต้ทางด่วนคงไม่ใช่เส้นทางที่น่าเดินแน่ๆ ไม่ว่าจะเป็นการเดินตอนกลางวันแสกๆ หรือตอนค่ำๆ ก็ตาม อีกทางเลือกหนึ่งในการเดินทางด้วยระบบขนส่งมวลชนก็คือ การเดินทางด้วย BRT ซึ่งสถานีที่ใกล้ที่สุดคือสถานีเจริญราษฏร์ แต่ก็มีระยะห่างจากโครงการมากถึง 1.7 กิโลเมตร นับว่าไม่ได้ใกล้กว่ากันเลย และก็ยังต้องต่อรถมายังโครงการเหมือนกันอีกด้วย

การเดินทางที่ดูน่าจะสะดวกที่สุดก็คือ การใช้รถยนต์ส่วนตัว เพราะมีจุดขึ้นลงทางด่วนถึง 2 ด่าน อยู่ใกล้ๆ ซึ่งสามารถเชื่อมต่อไปยังส่วนอื่นๆ ได้หลายเส้นทาง ทั้งฝั่งบางนา รามอินทรา ดินแดง หรือแจ้งวัฒนะก็เดินทางได้สะดวกมาก ส่วนเส้นทางราบถนนเจริญราษฎร์ก็เป็นเส้นทางเชื่อมต่อถนนพระราม 3 และถนนสาทรเข้าด้วยกัน อีกทั้งยังตัดผ่านถนนจันทน์ซึ่งเป็นอีกเส้นทางที่เลี่ยงเข้าเมืองได้ด้วยเช่นกัน ส่วนถ้าจะข้ามไปฝั่งธนบุรีก็ยังมีทางเลือกทั้งสะพานตากสินบนถนนสาทร หรือจะออกถนนพระราม 3 ไปข้ามสะพานกรุงเทพก็ได้อีกเช่นกัน ถ้าใครที่ใช้รถยนต์ส่วนตัวเป็นหลักอยู่แล้ว เส้นทางเลี่ยงลัดเลาะไปยังถนนต่างๆ มีมากเลยครับ เพราะช่วงเวลาเช้าและเย็นบนถนนสาทรนั้นรถติดหนักอย่างที่รู้ๆ กันดีอยู่แล้ว นอกเหนือจากนี้การเดินทางด้วยวิธีอื่นๆ ดูจะไม่มีตัวเลือกมากนักนอกจากบริการรถรับส่งของทางโครงการ ที่อาจมีค่าใช้จ่ายเพิ่มเติมในส่วนนี้เพราะทางโครงการยกให้ลูกบ้านและนิติบุคคลเป็นผู้ดูแลกันเองครับ

แผนที่การเดินทางรอบๆ โครงการ

การเดินทางวันนี้ขอเริ่มจากถนนสาทร บริเวณสถานี BTS สุรศักดิ์ นะครับ

เลยจากสถานี BTS มานิดเดียว เราก็จะมาเลี้ยวซ้ายที่แยก สาทร-สรุศักดิ์ เพื่อเข้าถนนเจริญราษฎร์

เลี้ยวซ้ายมาแล้วให้วิ่งตรงยาวไปเลยนะครับ ทางซ้ายจะเป็นจุดขึ้นทางด่วนศรีรัช ฝั่งขาออกไปทางบางนา-ดาวคะนอง

หรือถ้าใครสะดวกเดินทางด้วยทางด่วน ก็มาลงที่ถนนจันทร์ เลยนะครับ

ลงทางด่วนมาแล้วจะเจอสี่แยกถนนเจริญราษฎร์ตัดถนนจันทร์ ให้ตรงไปทางถนนพระราม 3 ตามป้านเลยนะครับ ทางขวาจะไปถนนเจริญกรุง ส่วนทางซ้ายจะไปสาธุประดิษฐ์

ตรงจากสี่แยกมาก็จะเป็นถนนเจริญราษฎร์ ทีนี้ก็ตรงยาวเลยนะครับ ระยะทางจากจุดลงทางด่วนถึงตัวโครงการประมาณ 1 กม.

ก่อนถึงโครงการจะเห็นโรงแรม Best Western Grand Howard อยู่ฝั่งขวามือ ส่วนตึกที่กำลังก่อสร้างอยู่นั่นคือโครงการ Supalai Lite ที่อยู่ใกล้ๆ กับ Than Living

1 ใน 3 โครงการที่อยู่ติดกัน โครงการแรก Supalai Lite

โครงการต่อมา The Key สาทร-เจริญราษฎร์ จาก Land House อยู่ตรงกลางระหว่าง 2 ตึก

ต่อจากโครงการ The Key ก็จะเป็นโครงการ Than Living สาทร-เจริญราษฎร์ แล้วครับ

มองจากสำนักงานขายย้อนกลับไปทางฝั่งสาทร จะเห็นโครงการ Supalai Lite กำลังก่อสร้างอยู่ ส่วนโครงการ The Key สาทร ที่อยู่ข้างๆ กันยังไม่ได้เริ่มก่อสร้าง

สถานที่ก่อสร้างอยู่ระหว่างการปรับพื้นที่ เพื่อเริ่มก่อสร้างรากฐานอาคาร

ตึกแถวข้างๆ โครงการเป็นร้านขายของ และโรงพยาบาลสัตว์

ส่วนการเดินทางจากโครงการไป BRT ก็ตรงไปตามถนนเจริญราษฎร์เลยนะครับ

มาถึงตรงนี้จะเป็นสามแยกตัดถนนพระราม 3 เราสามารถเลือกไปได้ทั้ง 2 ทางเลยนะครับ เลี้ยวซ้ายไปทางคลองเตยจะเป็น BRT สถานีพระราม 9 เลี้ยวขวาไปทางถนนตก มไหสวรรย์ จะเป็นสถานีเจริญราษฎร์ ระยะทางก็พอๆ กันนะครับ แต่ทางสถานีเจริญราษฎร์จะใกล้กว่า ประมาณ 100 เมตร

ผมเลือกมาทางสถานีพระราม 9 นะครับ เพราะเลี้ยวซ้ายได้เลย จะได้ไม่ต้องไปติดไฟแดงรอเลี้ยวขวา
สภาพแวดล้อมรอบๆ โครงการ Than Living สาทร-เจริญราษฎร์ ต้องบอกว่าอยู่ในย่านชุมชนที่อยู่อาศัยเดิมที่มีมาก่อนจะตัดถนนเจริญราษฏร์ ความเจริญรอบๆ อาจไม่เด่นเท่าถนนนราธิวาสฯ เพราะเป็นถนนเลียบทางด่วน ร้านอาหาร ร้านสะดวกซื้อที่อยู่ในระยะเดินถึงจึงมีให้พึ่งพาไม่มากนัก แต่ถ้าขับรถออกจากโครงการไปหน่อย รับรองว่าวิถีชีวิตแบบคนเมืองมีให้ครบเครื่องเลยทีเดียว เริ่มตั้งแต่แหล่งช๊อปปิ้งอย่าง เซ็นทรัล พระราม 3 โลตัส โฮมโปร โรบินสันบางรัก เอเชียทีค ไปจนถึงเซ็นทรัลสีลม คอมเพล็กซ์ ก็อยู่ไม่ไกลนัก โรงพยาบาลก็มีทั้งของรัฐฯ อย่างโรงพยาบาลเลิดสิน โรงพยาบาลเจริญกรุงประชารักษ์ หรือจะเลือกโรงพยาบาลเอกชนก็เช่น โรงพยาบาลเซนหลุยส์ โรงพยาบาลไทยจักษุ ที่เป็นโรงพยาบาลเฉพาะทาง รวมไปถึงโรงพยาบาลกรุงเทพคริสเตียน และโรงพยาบาล BNH ที่อยู่แถบสีลมด้วย ส่วนสถานศึกษา โรงเรียนรัฐฯ โรงเรียนเอกชนเล็กใหญ่ไปจนถึงโรงเรียนนานาชาติก็มีอีกเพียบ ไหนจะวัดวาอาราม สุเหร่า โบสถ์ ก็ยังอยู่ในรัศมีที่เดินทางได้สบายๆ และเพราะอยู่ใกล้ย่านชุมชนเดิมบนถนนจันทน์ ร้านค้า ร้านอาหารเจ้าดังๆ เก่าแก่ และตลาดสด ก็มีให้พึ่งพาฝากท้องได้ตั้งแต่เช้ายันดึก ขอแค่ไม่ขี้เกียจขับรถออกมาเท่านั้นแหละ รับรองว่าไม่อดตายแน่นอน

ขยับเข้ามาใกล้ๆ ตัวโครงการกันบ้าง ที่ดินติดกันทางด้านซ้ายล้อมรั้วเตรียมขึ้นโครงการ The Key เจริญราษฎร์ ส่วนที่ดินแปลงถัดจาก The Key ไป ที่กำลังก่อสร้างคือ ศุภาลัย ไลท์ สาทร-ถนนจันทน์ ซึ่งทั้งหมดเป็นตึก High Rise ความสูงเทียบเคียงกัน เรื่องวิวของห้องในมุมด้านนี้จึงบังมุมกันอย่างเลี่ยงไม่ได้แน่ ยิ่งไปเลือกซื้อห้องขณะที่ยังไม่มีการก่อสร้างแบบนี้ เรียกว่าต้องอาศัยพลังจิต จินตนาการล้วนๆ ว่าตึกข้างๆ จะขึ้นมามุมไหน ยังดีที่มีส่วนของ Facility บนชั้น 6 ซึ่งวางไว้ด้านเดียวกับ The Key มาช่วยเพิ่มระยะห่างระหว่างตึกเข้าไปได้อีกพอสมควร ส่วนด้านอื่นๆ ของโครงการยังเป็นบ้านพักอาศัยในแนวราบเสียเป็นส่วนใหญ่ เพราะติดกับย่านชุมชนเดิมในพื้นที่ จึงมีแค่บ้านเดี่ยว หรือตึกแถวสูงไม่เกิน 4-5 ชั้นเท่านั้น เท่าที่เห็นก็ยังไม่น่าจะมีโครงการอื่นๆ ที่เป็นตึกสูงขึ้นในระยะใกล้อีก วิวด้านหลังทางฝั่งทิศตะวันออก และทางทิศใต้จึงยังโอเคอยู่ครับ อ้อ! ลืมบอกไปว่าฝั่งตรงข้ามโครงการมีสถาบันเทิงชื่อ X-zyte และร้านอาหารอีสานแนวจิ้มจุ่ม ถึงจะไม่ได้มีเสียงดังรบกวนในตอนกลางคืน แต่เท่าที่รู้มาหน้าสถานบันเทิงก็มีเรื่องตีกันบ่อยเหมือนกันนะครับ กลับบ้านดึกๆ ก็ระมัดระวังกันหน่อยโดยเฉพาะคุณสาวๆ ที่ต้องกลับบ้านค่ำๆ คนเดียว

แบบจำลองโครงการ
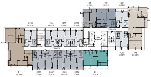
Than Living สาทร-เจริญราษฎร์ ออกแบบอาคารในสไตล์โมเดิร์น ตัวอาคารฝั่งทิศเหนือจะเห็นว่าตำแหน่งห้องไม่ได้วางไว้ในระนาบเดียวกัน โซนด้านหน้าจะถูกเว้าเข้าไปเล็กน้อย ส่วนนึงก็เพราะเว้นตามพื้นที่ส่วนกลางของชั้น 6 นั่นเอง ที่บริเวณชั้น 6 เป็นแหล่งรวม Facility ต่างๆ ไว้ ทั้งสระว่ายน้ำในระบบน้ำเกลือ มีสระเด็กให้ด้วย ขนาดของสระมีความยาวประมาณ 20 เมตร จึงเพียงพอที่จะว่ายน้ำออกกำลังกายได้ ใกล้ๆ กันเป็นห้องโยคะ ห้องฟิตเนส ห้องเปลี่ยนเสื้อผ้า และห้องสมุด นอกจากนี้ยังมีสวนหย่อมกระจายอยู่ตั้งแต่ชั้นล่าง ชั้น 6 ไปจนถึงสวนบนดาดฟ้า ที่เปิดรับวิวแบบ Panorama ซึ่งสามารถมองเห็นวิวแม่น้ำเจ้าพระยาได้เลยทีเดียว ส่วนของห้องพักจะเริ่มตั้งแต่ชั้น 6 ขึ้นไปจนถึงชั้น 36 การจัดวางแปลนห้องค่อนข้างเน้นความเป็นส่วนตัวโดยที่แต่ละชั้นจะมีจำนวนห้องสูงสุดอยู่ที่ 18 ยูนิตเท่านั้น ซึ่งยูนิตรวมทั้งหมดของโครงการคือ 528 ยูนิต ถือว่าเป็นจำนวนที่ไม่น้อยเลย ความหนาแน่นของลิฟท์โดยสารก็เป็นเรื่องที่ต้องพิจารณาให้ดีเหมือนกัน ด้วยจำนวนลิฟท์โดยสาร 4 ตัว คิดเป็นอัตราส่วน 1:132 ถือว่าแน่นอยู่เหมือนกัน และอีกเรื่องที่สำคัญไม่แพ้กันสำหรับคอนโดที่อยู่ในทำเลที่ต้องอาศัยรถส่วนตัวเป็นหลักแบบนี้ก็คือ เรื่องที่จอดรถ ซึ่งทางโครงการก็ดูเหมือนจะเข้าใจตรงจุดนี้ดีอยู่แล้ว จึงจัดที่จอดรถไว้มากถึง 68% (นับรวมจอดซ้อนคัน) นอกเหนือจากนี้ก็เป็นเรื่องระบบรักษาความปลอดภัย ที่ใช้ระบบ Key Card ในการเข้าอาคาร และมี CCTV ให้อุ่นใจตามมาตรฐานครับ

มาดูตัว Plan อาคารกันบ้างนะครับ ชั้น G จะเป็นส่วนของ Lobby ร้านค้า และที่จอดรถตั้งแต่ชั้น G – ชั้น 5

ด้านหน้าทางเข้าโครงการ และที่จอดรถขึ้นไปถึงชั้น 5

แบบจำลองทางเข้าโครงการ

หน้าตาของ Lobby

ต่อที่ชั้น 6 จะเป็น Facility หลักของโครงการ ทั้งสระว่ายน้ำ ฟิตเนส และห้องสมุด ส่วนพักอาศัยก็จะเริ่มต้นที่ชั้นนี้นะครับ

หน้าตาของสระว่ายน้ำบนชั้น 6

แบบจำลองสระว่ายน้ำ

Sky Fitness

Private Library

ชั้น 7 – 34 จะเป็นส่วนของที่พักอาศัยทั้งหมด เฉลี่ยแล้วอยู่ที่ 18 ยูนิตต่อชั้น

ชั้น 35 ยูนิตจะลดลงเหลือ 15 ยูนิต มีห้อง Penthouse ขนาด 265 และ 284 ตารางเมตร อยู่ที่ชั้นนี้นะครับ

มุมมองจากชั้นสูงๆ ของโครงการ

ชั้นสุดท้ายที่ชั้น 36 จะมีเพียง 4 ยูนิตเป็นห้องแบบ Executive ทั้ง 4 ยูนิต

Roof Top Garden จุดชมวิวแบบ Panorama บนชั้นดาดฟ้าของโครงการ
พาชมห้องตัวอย่าง
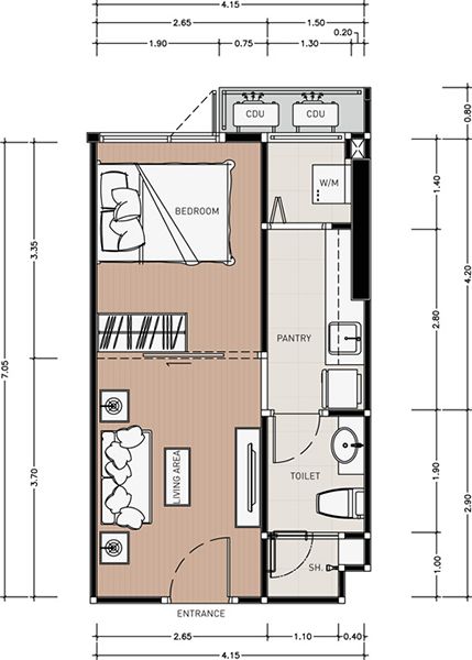
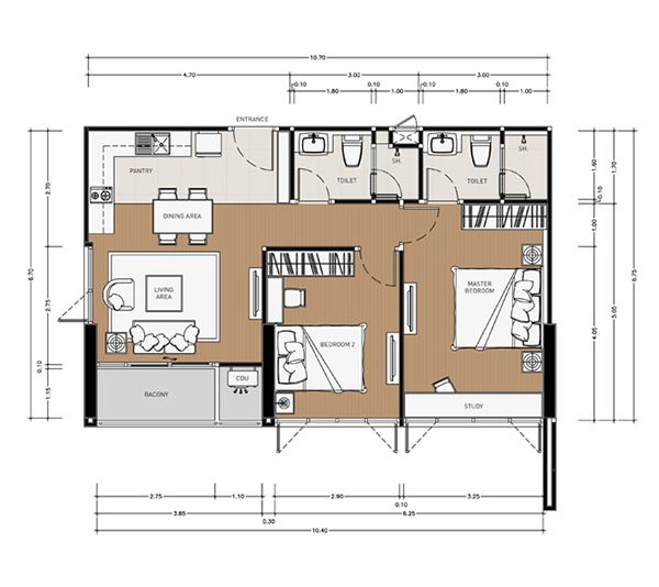
ห้องตัวอย่างที่ทางโครงการเตรียมไว้นั้นมีด้วยกัน 3 แบบ เราเริ่มต้นกันด้วยห้อง Type A แบบ 1 ห้องนอนในขนาดพื้นที่ใช้สอย 29 ตร.ม. ตัวห้องวาง Lay out มาเป็นแนวลึก ของที่แถมมาให้พร้อมกับห้องก็เป็นไปตามมาตรฐานทั่วๆ ไปครับ ชุดเครื่องครัว และสุขภัณฑ์ต่างๆ ในห้องน้ำตามที่เห็นในห้องตัวอย่าง ส่วนเฟอร์นิเจอร์ชิ้นอื่นๆ ต้องหามาตกแต่งกันเอง ถ้าไม่ได้มีข้าวของเครื่องใช้มากมาย ห้องขนาดนี้ก็กำลังพออยู่เลย เว้นเสียแต่สมบัติบ้าจะเยอะ งานนี้อาจจัดสรรหาที่เก็บของกันยากหน่อย โชคดีที่ทางโครงการออกแบบให้ฝ้าเพดานของห้องสูงถึง 2.7 เมตร บรรยากาศโดยรวมภายในห้องจึงไม่ค่อยอึดอัดเท่าไหร่ ถึงแม้แบบห้องจะเป็นห้องหน้าแคบก็ตาม เรื่องสเปควัสดุแนะนำว่าให้สอบถามและตรวจสอบกับทางโครงการให้ดูนะครับ ว่าชิ้นไหนแถมมาให้พร้อมห้อง หน้าตา สีสันเป็นอย่างไรบ้าง เพราะเท่าที่คุยๆ มาดูเหมือนห้องจริงจะไม่เป็นไปตามแบบห้องตัวอย่างหลายจุดเหมือนกัน

Room Type A1 ขนาด 29 ตารางเมตร

plan ห้อง

ประตูจะเป็นแบบ Digital Door Lock

เปิดเข้าห้องมาจะเจอส่วนของห้องนั่งเล่นก่อนเลยนะครับ ระยะห่างระหว่างทีวีกับโซฟากำลังดี

ชุดสวิตช์และปลั๊กไฟใช้ของ Sierra ทั้งหมด

พื้นที่ข้างโซฟาทั้ง 2 ข้าง มีที่เหลือพอให้วางโต๊ะข้างได้ครับ

ชั้นวางทีวีเตี้ยๆ อยู่ในระยะสายตาพอดี

ถัดเข้าไปด้านในจะเป็นห้องนอน ซึ่งถูกกั้นพื้นที่ไว้ด้วยผนังครึ่งหนึ่ง และอีกครึ่งเป็นประตูกระจกบานเลื่อนขนาดใหญ่

วางเตียงขนาด 5 ฟุต กำลังพอดีครับ เหลือพื้นที่รอบเตียงนิดหน่อย

ด้านที่ติดกับหน้าต่าง

ด้านปลายเตียงเหลือพื้นที่พอให้เดินได้ ถ้าจะติดทีวีไว้ในห้องนอน คงต้องแขวนอย่างเดียวเลยครับ

อีกด้านจะเป็นตู้เสื้อผ้า

มุมมองจากห้องนอนออกมาที่ส่วน Living Area

อีกด้านของห้องจัดเป็นโซนห้องครัวและห้องน้ำ เดี๋ยวเราเลี้ยวซ้ายไปดูห้องครัวกับก่อนนะครับ

เคาน์เตอร์ครัวแนวยาวไปถึงระเบียง ซิงค์ล้างจานแบบฝัง และเตาไฟฟ้า 2 หัว มาพร้อมฮูดดูดควัน

ประตูออกไปยังระเบียงเป็นบานพับเล็กๆ

จากที่เห็นพื้นที่ระเบียงนั้นแคบมากจนแทบจะไม่เหลือที่ให้ยืนเลย เมื่อวางเครื่องซักผ้าและคอมเพรสเซอร์แอร์ลงไปแล้ว ดังนั้นเรื่องพื้นที่ตากผ้าจึงต้องทำใจกันได้เลย

เดี๋ยวเราไปดูห้องน้ำที่อยู่อีกฝั่งกันต่อนะครับ

การวางสุขภัณฑ์ในห้องน้ำ แยกส่วนเปียกกับส่วนแห้ง ด้วยประตูกระจกแทมเปอร์

ด้านล่างอ่างล้างมือไม่มีตู้ให้นะครับ เป็นพื้นที่โล่งๆ ข้างโถสุขภัณฑ์จะมีที่แขวนกระดาษทิชชู่ให้ด้วย


ชุดฝักบัวจะใช้ของ Sierra
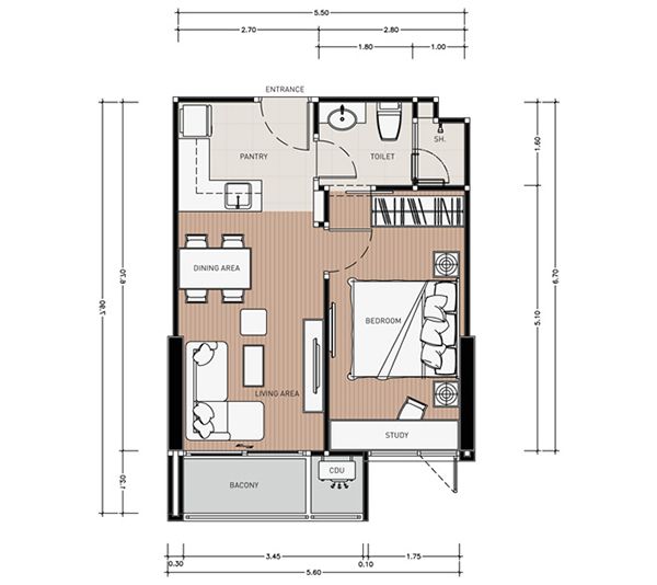
ต่อมาเป็น Type C แบบ 1 ห้องนอนเหมือนกัน แต่พื้นที่ใช้สอยจะเพิ่มขึ้นเป็น 41 ตร.ม. Type นี้จะย้ายส่วนครัว กับห้องน้ำมาไว้ที่หน้าห้อง เคาน์เตอร์ครัวจะเป็นรูปตัว L เชื่อมต่อกับโต๊ะทานอาหาร และส่วน Living Area ที่ติดกับระเบียง แต่ระเบียงจะไม่เล็กเหมือน Type A แล้วนะครับ วางเครื่องซักผ้าและคอมเพรสเซอร์แล้วยังไม่ที่เหลือให้ทำอย่างอื่นได้อีก ส่วนห้องนอนขนาดกำลังพอดี วางเตียงแล้วด้านที่ติดกับหน้าต่างมีที่เหลือให้วางโต๊ะทำงานหรือจะเป็น Daybed เอาไว้นอนอ่านหนังสือริมหน้าต่างก็ได้บรรยากาศไปอีกแบบ

Type C1 แบบ 1 ห้องนอน ขนาด 41 ตารางเมตร

Plan ห้อง

เข้ามาในห้องจะเจอกับส่วนครัวก่อนนะครับ

ครัวแบบเปิดรูปตัว L แยกซิงค์ล้างจานกับเตาไฟฟ้าไว้คนละฝั่ง

ซิงค์ล้างจานแบบฝัง

เตาไฟฟ้า 2 หัวยี่ห้อ Teka

มาพร้อมฮูดดูดควันยี่ห้อเดียวกัน

โต๊ะทานอาหารขนาด 4 ท่าน อยู่ติดกับส่วนครัว

ถัดไปด้านในเป็นส่วน Living Area ที่อยู่ติดกับระเบียง

ระยะห่างระหว่างโซฟากับทีวี จากมุมมองออกไปหน้าห้อง

เราออกมาดูที่ระเบียงกันต่อนะครับ ห้องนี้ระเบียงจะดูกว้างขวางกว่า Type A เพราะจะแยกคอมเพรสเซอร์แอร์ กับจุดที่วางเครื่องซักผ้าออกจากกันอย่างเป็นสัดส่วน

ด้านซ้ายจะเป็นจุดที่วางเครื่องซักผ้า

คอมเพรสเซอร์แอร์จะอยู่ด้านขวามือ หันหน้าออกนอกระเบียง

กลับเข้ามาดูในห้องนอนกันต่อนะครับ วางเตียงแล้วพื้นที่ข้างเตียงทั้ง 2 ฝั่งมีพื้นที่เหลือเยอะเลยครับ

ด้านที่ติดกับหน้าต่าง โครงการ Built-in โต๊ะทำงานให้ดูเป็นไอเดีย

ส่วนปลายเตียงมีที่เหลือพอให้เดินได้เท่านั้น ทีวีในห้องนอนต้องใช้แบบแขวน

อีกด้านของเตียงจะเป็นตู้เสื้อผ้า Built-in ถัดไปก็จะเป็นห้องน้ำ ห้องน้ำเข้า-ออกได้ 2 ด้านนะครับ จากทางห้องนอนและห้องครัว

การจัดวางและสุขภัณฑ์ที่ใช้ก็จะเหมือนๆ กับห้อง Type A

อ่างล้างหน้า

โถสุขภัณฑ์

ส่วนเปียกจะกั้นด้วยกระจกแทมเปอร์

ขอบปูนกันส่วนเปียกกับส่วนแห้ง

ชุดฝักบัว
สุดท้ายเป็นห้อง Type F แบบ 2 ห้องนอน 2 ห้องน้ำ บนพื้นที่ใช้สอยขนาด 70 ตร.ม. บรรยากาศภายในห้องดูโอ่งโถง โปร่งสบายตา พร้อมเคาน์เตอร์ครัวรูปตัว L ที่ทำให้พื้นที่ในการทำครัวกว้างขึ้น ครัวเป็นแบบเปิดนะครับ เชื่อมต่อกับส่วนของพื้นที่นั่งเล่นพอดี อีกจุดเด่นหนึ่งของห้องนี้ก็คือ ระเบียงที่กว้างขวางสามารถใช้ประโยชน์ได้มากกว่า ขยับเข้ามาที่โซนห้องนอน เริ่มจากห้องนอนเล็ก ที่ขนาดกำลังพอใช้งาน วางตู้เสื้อผ้าและเตียงเข้าไปแล้วยังพอเหลือที่ว่างอยู่บ้าง บรรยากาศภายในห้องจึงไม่อึดอัดจนเกินไป ต่างจากห้องนอนใหญ่ที่พื้นที่ค่อนข้างกว้างมากพอที่จะวางโต๊ะทำงานตัวยาว หรือ Daybed ไว้ที่ริมหน้าต่างได้อีกตัว ส่วนห้องน้ำทั้ง 2 ห้องก็จัดพื้นที่ได้กว้างพร้อมฉากกั้นอาบน้ำแยกส่วนเปียกส่วนแห้งเรียบร้อย โดยรวมแล้วบรรยากาศภายในห้อง Type นี้ น่าอยู่เลยทีเดียว


Plan ห้อง

เข้ามาในห้องแล้วมองตรงไปจะเป็น Living Area แต่เราจะไปดูทางขวามือที่เป็นส่วนครัวก่อนนะครับ

ด้านซ้ายมือตรงข้ามครัว จะมีตู้เก็บของ เก็บรองเท้า Built-in ให้ดูเป็นไอเดียอยู่ด้วย

มาดูที่ครัวกันเลยดีกว่าครับ ครัว Type นี้จะเป็นรูปตัว L เหมือนห้อง Type C แต่จะใหญ่กว่า มีพื้นที่ให้เตรียมอาหาร ทำอาหารได้มากกว่า และมีโต๊ะทานอาหารขนาด 4 ท่านอยู่กลางครัวเลยครับ ทำอาหารเสร็จก็ไม่ต้องเดินไปเสิร์ฟไกล

เตาไฟฟ้าจะเป็นเตา 4 หัว ของ Teka

ซิงค์ล้างจานแบบฝัง

มุมมองจากส่วน Living Area ออกไปที่ส่วนครัว

มาดูที่ Living Area ต่อนะครับ ส่วนนี้กว้างขวางมาก สามารถวางโซฟาแบบ L Shape ได้เลย

ระยะห่าวระหว่างโซฟากับทีวี สามารถตั้งทีวีจอใหญ่ได้สบายๆ

ระเบียงที่อยู่ติดกับ Living Area ก็ดูกว้างขวางดีนะครับ วางเครื่องซักผ้าแล้วยังมีที่เหลืออีกเยอะเลย

อีกฝั่งจะเป็นคอมเพรสเซอร์แอร์ หันหน้าออกนอกระเบียง มีระแนงเหล็กกั้น

ทางเดินต่อไปยังห้องนอนทั้ง 2 ห้อง

จะเจอห้องนอนเล็กก่อนนะครับ แต่ขนาดก็ไม่ได้เล็กเท่าไหร่

วางเตียงแล้วยังพอมีที่เหลือให้วางโคมไฟหรือโต๊ะข้างได้อยู่

ที่ปลายเตียงเหลือให้พอได้เดินได้สะดวก ใช้ทีวีแบบแขวนเหมือนห้องตัวอย่าง จะทำให้ห้องดูโล่งกว่าครับ

อีกฝั่งของเตียงจะเป็นตู้เสื้อผ้า Built-in

ระยะห่างระหว่างเตียงกับตู้เสื้อผ้า ว่างพอให้วางของตกแต่งได้อีกหน่อย

ข้ามฝั่งจากห้องนอนเล็กมาอีกด้านจะเป็นห้องน้ำ

การจัดวางและสุขภัณฑ์ที่ใช้ก็จะเหมือนกันห้องที่ผ่านมา

เดินตรงมาที่ห้องนอนใหญ่ จะอยู่สุดทางเดินเลยครับ ห้องนอนใหญ่นี่ก็ใหญ่สมชื่อครับ วางเตียง 6 ฟุตแล้วยังมีที่เหลือให้จัดได้อีกเพียบ

ปลายเตียงวางชั้นวางทีวีได้สบายๆ

ข้างเตียงด้านที่ติดกับหน้าต่าง โครงการวาง Daybed ไว้ให้ดูเป็นไอเดีย

ที่ติดกับ Daybed เป็นโต๊ะทำงาน

ข้างเตียงอีกฝั่งมีทีเหลือพอให้วางโคมไฟหรือจะเป็นโต๊ะข้างก็ได้

มองไปมุมนี้จะเห็นตู้เสื้อผ้าที่อยู่ข้างเตียง ต่อด้วยห้องน้ำในห้องนอนใหญ่อีกหนึ่งห้อง

ห้องน้ำในห้องนอนใหญ่นี่จะขนาดเท่ากับห้องแรกเลยนะครับ การจัดวางสุขภัณฑ์ก็เหมือนกัน
ความคุ้มค่าน่าลงทุน
โครงการ Than Living สาทร-เจริญราษฎร์ น่าจะเหมาะกับกลุ่มคนที่ใช้รถส่วนตัว และชอบย่านที่ไม่ค่อยพลุกพล่านในขณะที่อยู่ไม่ห่างจากใจกลางเมืองมากนัก ด้วยศักยภาพของทำเลถือว่าน่าสนใจเลยทีเดียว เพราะมีเส้นทางเลี่ยงเข้าออกเมืองได้หลายทาง จะเดินทางไปไหนก็จัดว่าสะดวกมาก ที่สำคัญสาธารณูปโภคต่างๆ ก็แวดล้อมรอบด้านและครบครันมากๆ อีกทั้งราคาห้องเริ่มต้นในระดับไม่เกิน 3 ล้านในทำเลที่ห่างจากถนนสาทรแค่ 2 กิโลเมตร ถือว่าดึงดูดใจสุดๆ ไปเลย แต่ก็ใช่ว่าจะไม่มีด้อยอื่นๆ ที่ต้องนำมาประกอบการพิจารณานะครับ เพราะที่ดินข้างๆ มีคอนโดมิเนียมของ Developer รายใหญ่ในตลาดซึ่งกำลังอยู่ในระหว่างก่อสร้างอยู่ถึง 2 โครงการ คือ ศุภาลัย ไลท์ สาทร-เจริญราษฎร์ และ The Key เจริญราษฎร์ ดังนั้นเรื่องศักยภาพความได้เปรียบด้านทำเลที่ตั้งจึงไม่ต่างกันเลย แถมโครงการข้างๆ ดันเป็นของเจ้าตลาดระดับมหาชนด้วยแล้ว บริษัท สิราลัย จำกัด ซึ่งเป็นเจ้าของโครงการ Than Living จึงดูเสียเปรียบไปถัดตา เพราะตัวเปรียบเทียบมีความน่าเชื่อถือมากกว่า ทั้งเรื่องความเชี่ยวชาญในตลาดที่ทำมานานกว่า และจุดขายที่สร้างเสร็จก่อนขายของแบรนด์ The Key การจะตัดสินใจเลือกโครงการไหนจึงต้องทำการบ้านกางใบราคาเปรียบเทียบกันหนักหน่อย ว่าโครงการไหนจะมีโอกาสทำกำไรได้มากกว่ากัน ทั้งการเกร็งกำไรจากการขายต่อ และการทำกำไรในการปล่อยห้องเช่า