
เริ่มต้นการเดินทางด้วยการนั่งรถไฟฟ้า BTS มาลงที่สถานีทองหล่อค่ะ ซึ่งทางไปคอนโดฯ จะอยู่ที่ทางออก 2 นะคะ
ชื่อโครงการ : THE ESSE SUKHUMVIT 36 (ดิ เอส สุขุมวิท 36) เจ้าของโครงการ : บริษัท สิงห์ เอสเตท จำกัด (มหาชน) / Singha Estate ที่ตั้งโครงการ : ซอยสุขุมวิท 36 แขวงพระโขนง เขตคลองเตย กทม. พื้นที่โครงการ : 2-2-0 ไร่ ลักษณะโครงการ : High Rise จำนวนอาคาร : 1 อาคาร จำนวนชั้น : 45 ชั้น จำนวนยูนิต : 338 ยูนิต ขนาดห้อง : – 1A-1 One Bedroom ขนาด 38.5 ตร.ม. – 1A-2 One Bedroom ขนาด 43.25 ตร.ม. – 2B-1 Two Bedroom ขนาด 73.50 ตร.ม. – 2B-2 One Bedroom ขนาด 77.00 ตร.ม. – 3C-1 Three Bedroom ขนาด 116.75 ตร.ม. – 3C-2 Three Bedroom ขนาด 124.25 ตร.ม. – Ph-1 Penthouse ขนาด 252.00 ตร.ม. สิ่งอำนวยความสะดวกส่วนกลาง : – Lobby – Automatic Parking – ห้องสมุด – Sunken Seating Area – Sunken Lawn – Arrival Terrace – สระว่ายน้ำ – Jacuzzi – Male Onsen – Female Onsen – Onsen Garden – Private Spa Room – Lounge Area – Kid’s Room – Fitness – Golf Simulator – Virtual Bike – Sky Lounge – The Residence Lounge – Sky Theater – Rock Garden Terrace – Workshop Area – Planting Area ราคา : เริ่มต้น 12,000,000 บาท จุดเด่นโครงการ : THE ESSE สุขุมวิท 36 ตั้งอยู่บนทำเลศักยภาพใจกลางย่านธุรกิจ ที่เชื่อมต่อทุกการเดินทางที่หลากหลาย สัมผัสประสบการณ์แห่งการพักผ่อนที่ไม่เหมือนใคร ด้วยสิ่งอำนวยความสะดวกระดับซูเปอร์ลักชัวรีใส่ใจในรายละเอียดทุกตารางนิ้วตั้งแต่การออกแบบผังโครงการให้มีความเป็น ส่วนตัวสูง ไปจนถึงการคัดสรรวัสดุที่ใช้ในโครงการ ที่ตอบโจทย์ทั้งความมีรสนิยม และประโยชน์ใช้สอยด้วยความร่วมมือระหว่าง Singha Estate กับ Hongkong Land พร้อมทั้งบริษัทชั้นนำด้านการออกแบบที่มีส่วนในการออกแบบโครงการ เพื่อให้ทุกรายละเอียดคำนึงถึงผู้พักอาศัย ระบบขนส่งสาธารณะใกล้เคียง : – รถไฟฟ้า BTS ทองหล่อ 60 เมตร (บันไดขึ้น-ลงสถานี) – รถไฟฟ้า BTS ทองหล่อ 20 เมตร (ลิฟต์ขึ้น-ลงสถานี) สถานที่ใกล้เคียง : – BTS สถานีทองหล่อ : 20-60 ม. – Major Cineplex เอกมัย : 700 ม. – Miracle Mall : 800 ม. – Top Market ทองหล่อ : 900 ม. – Gateway เอกมัย : 1.1 กม. – EmQuartier : 1.1 กม. – Emporium : 1.1 กม. – BigC เอกมัย : 1.7 กม. – สวนเพลินมาร์เก็ต : 1.5 กม. – ตลาดพูนทรัพย์ : 1.6 กม. – Lotus พระราม 4 : 2.0 กม. – BigC พระราม 4 : 2.0 กม. – K Village : 2.1 กม. – Terminal 21 : 2.4 กม. – โรบินสัน สุขุมวิท : 2.5 กม. – Korean Town : 2.6 กม. – ตลาดพระโขนง : 2.7 กม. – ตลาดท่าเรือคลองเตย : 2.9 กม. – ตลาดอ่อนนุช : 3.1 กม. – BigC อ่อนนุช : 3.2 กม. – Lotus อ่อนนุช : 3.4 กม. – Central บางนา : 13.4 กม. – Ikea บางนา : 18.9 กม. – Mega บางนา : 18.9 กม. – ม.กรุงเทพ : 1.8 กม. – รร.นานาชาติเอกมัย : 2.3 กม. – รร.สายน้ำผึ้ง : 2.3 กม. – รร.สาธิต มศว : 2.9 กม. – รร.วัฒนาวิทยาลัย : 3.2 กม. – มหาวิทยาลัยศรีนครินทร์วิโรฒ : 3.3 กม. – รพ.เทพธารินทร์ : 1.2 กม. – รพ.สุขุมวิท : 1.2 กม. – รพ.สมิติเวช : 1.3 กม. – รพ.ท่าเรือ : 2.4 กม. – รพ.กล้วยน้ำไท : 2.3 กม. – ไปรษณีย์กล้วยน้ำไท : 2.0 กม. – สวนเบญจกิติ : 2.6 กม. – ศูนย์ประชุมแห่งชาติสิริกิติ์ : 3.5 กม. – โรงงานยาสูบ : 3.7 กม. |

หากถามคนเมืองทั่วไปว่าอยากใช้ชีวิตอยู่ย่านไหน? เรามั่นใจว่า สุขุมวิท,ทองหล่อ, พร้อมพงษ์ คือตัวเลือกของคำตอบอันดับต้นๆ ของชาวไทยและต่างชาติแน่นอนค่ะ เพราะอย่างที่ทราบกันดีว่า ‘สุขุมวิท’ เป็นถนนสายเศรษฐกิจรวมถึงแหล่งไลฟ์สไตล์ที่ไม่เคยหลับใหลตลอดทั้งกลางวันและกลางคืน เพราะมีทั้งคาเฟ่, ร้านอาหารเก๋ๆ, คลับบาร์มากมาย นอกจากนี้ยังมีคอนโดมิเนียมระดับ Luxury อยู่เป็นจำนวนมากทั้งโครงการที่สร้างเสร็จแล้ว และโครงการใหม่ที่น่าจับตาและกำลังเตรียมเปิดตัวอย่าง “THE ESSE SUKHUMVIT 36 (ดิ เอส สุขุมวิท 36)” ของ SINGHA ESTATE โดยจับมือกับ Hongkong Land ผู้นำโครงการอสังหาริมทรัพย์ระดับโลก ร่วมกันพัฒนาจนเกิดเป็นคอนโดมิเนียมหรูบนทำเลศักยภาพใจกลางสุขุมวิท อยู่ติดรถไฟฟ้าสถานีทองหล่อเพียง 20 เมตรเท่านั้น ซึ่งเราจะพาทุกคนไปชมห้องตัวอย่างก่อนใครในวันนี้
ก่อนอื่นต้องบอกเลยว่า “THE ESSE SUKHUMVIT 36 (ดิ เอส สุขุมวิท 36)” ตั้งอยู่บนทำเลที่น่าสนใจจริงๆ ค่ะ เพราะตัวโครงการตั้งอยู่ปากซอยสุขุมวิท 36 ซึ่งเป็นซอยเลขคู่และเป็นย่านอยู่อาศัยซะส่วนใหญ่เพราะมีทั้งบ้านเรือนรวมถึงคอนโดฯ ทั้ง High Rise และ Low Rise อยู่หลายโครงการ โดยปกติราคาคอนโดฯ ในโซนนี้จะค่อนข้างสูงและมักโฆษณาว่าอยู่ติดรถไฟฟ้า แต่ ดิ เอส สุขุมวิท 36 นับว่าเป็นโครงการเดียวที่อยู่ติด BTS ทองหล่อ มากที่สุดในตอนนี้ค่ะ

การเดินทางของคนใช้รถยนต์ก็ถือว่าสะดวกและคล่องตัวอยู่พอตัวเลยนะคะ เพราะอย่างที่บอกไปว่าโครงการตั้งอยู่บริเวณปากซอยสุขุมวิท 36 ซึ่งเป็นซอยที่ใช้วิ่งไปออกถนนพระราม 4 ได้ และภายในซอยเองยังสามารถลัดเลาะไปออกซอยสุขุมวิท 38 และซอยสุขุมวิท 40 ได้อีกด้วยซึ่งก็ช่วยหลีกเลี่ยงการจราจรในชั่วโมงคับคั่งได้เป็นอย่างดี ส่วนฝั่งตรงข้ามอย่างซอยทองหล่อ (สุขุมวิท 55) และซอยเอกมัย (สุขุมวิท 63) นั้นก็สามารถใช้เชื่อมไปออกถนนเพชรบุรีได้ การเดินทางเข้านอกออกเมืองจึงจัดว่าสะดวกสบายเพราะสามารถเลือกใช้เส้นทางได้หลากหลาย ไม่ว่าจะใช้ถนนพระราม 4 วิ่งไปออกสีลมและสามย่าน หรือใช้ถนนสุขุมวิทวิ่งไปออกเพลินจิต, ชิดลม, สยาม และใช้ถนนเพชรบุรีวิ่งไปออกทางพญาไทได้อีกด้วย นอกจากนี้ยังมีจุดขึ้นลงทางด่วนกระจายอยู่รอบๆ โครงการ ทั้งทางด่วนแถวอโศก, เพลินจิต, พระราม 4 เป็นต้น

สำหรับการเดินทางด้วยรถสาธารณะ บอกได้คำเดียวว่าสะดวกที่สุดค่ะ เพราะโครงการอยู่ติดถนนใหญ่ทำให้มีรถเมล์, รถแท็กซี่ รวมถึงวินมอเตอร์ไซด์วิ่งผ่านไปมาอยู่ตลอด ที่สำคัญคืออยู่ติด BTS สถานีทองหล่อ (ทางออก 2) เดินประมาณ 20 เมตรเท่านั้น เรียกได้ว่าอยู่ในระยะที่เดินได้สบายๆ ซึ่งถ้าใครอยากจะเข้าเมืองไปช็อปปิ้งเพลินๆ ก็สามารถใช้ BTS จากสถานีทองหล่อนั่งรถไปสถานีเดียวก็จะถึงสถานีพร้อมพงษ์ซึ่งมีห้าง Emporium, Emquartier และในอนาคตก็จะมี Emsphere อยู่ฝั่งเดียวกับ Emporium ติดกับสวนเบญจสิริอีก หรือถัดจากสถานีพร้อมพงษ์ไปก็จะเป็นสถานีอโศก ซึ่งเป็นจุดเชื่อมกับ MRT สถานีนี้จะมี Terminal 21 อยู่ด้วย ถัดจากอโศกข้ามมานานา, เพลินจิต ก็จะเข้าสู่ชิดลมและสยามตามลำดับ ซึ่งความสะดวกจะอยู่ตรงที่การเดินทางเข้าเมืองอย่างเพลินจิต-สยาม เพราะสามารถนั่ง BTS ไปได้โดยไม่ต้องเปลี่ยนสถานีให้เสียเวลาเลยค่ะ ในเรื่องของอาหารการกินก็ไม่น้อยหน้าการเดินทางเลย ด้วยความที่เป็นย่านที่พักอาศัยจึงค่อนข้างอุดมสมบูรณ์เพราะในซอยสุขุมวิท 38 จะมีร้านอาหาร Street food รวมไปจนถึงร้านค้าต่างๆ ให้เลือกจับจ่ายใช้สอยตลอดเช้ายันค่ำ หรือขยับข้ามฝั่งไปซอยทองหล่อ, ซอยเอกมัยก็มีแหล่งไลฟ์สไตล์ สถานที่ช็อปปิ้ง ร้านแฮงก์เอ้าท์ รวมไปจนถึงสถานศึกษาและโรงพยาบาลมากมาย ซึ่งเหมาะสำหรับชีวิตคนเมืองที่แท้จริง

เริ่มต้นการเดินทางด้วยการนั่งรถไฟฟ้า BTS มาลงที่สถานีทองหล่อค่ะ ซึ่งทางไปคอนโดฯ จะอยู่ที่ทางออก 2 นะคะ

เมื่อเดินบันไดลงมาก็หมุนตัวกลับเพื่อเดินย้อนไปปากซอยสุขุมวิท 36 ค่ะ

จากภาพจะเห็นได้ว่าข้างทางมีรถประจำทางคอยวิ่งผ่านไปผ่านมาอยู่ตลอดเลยค่ะ ใครใช้รถสาธารณะเป็นหลักก็คงสะดวกมากๆ

เดินมาเพียงไม่กี่ก้าวก็เห็นป้ายโครงการแล้วค่ะ

มาถึงโครงการแล้วค่ะ จะเห็นได้ว่าด้านหน้าโครงการมีลิฟท์โดยสารเพื่อขึ้นไป BTS ได้เลย แต่ถ้าใครไม่อยากขึ้นลิฟท์ก็สามารถเดินเท้าได้สบายๆ เพียง 20 เมตรเท่านั้น
เจาะลึกโครงการ
โครงการ THE ESSE SUKHUMVIT 36 เป็นคอนโด High Rise สูง 43 ชั้น 1 อาคาร จำนวน 338 ยูนิต บนที่ดิน 2-2-0 ไร่ ด้วยขนาดห้องชุดตั้งแต่ 38.5 – 252 ตารางเมตร โดยทาง SINGHA ESTATE ต้องการความเป็น Masterpiece และ Iconic Residential บนถนนสุขุมวิท เหมือนกับ 2 โครงการที่ผ่านมาอย่าง THE ESSE Asoke และ THE ESSE at SINGHA COMPLEX ครั้งนี้จึงเหมือนเป็นการรวมตัวของเหล่าดีไซเนอร์ทั้งชาวไทยและต่างประเทศเข้าไว้ด้วยกัน เพื่อความเป็นที่สุดของโครงการระดับ Luxury ซึ่งได้ Tandem บริษัทออกแบบสัญชาติไทยมาทำงานร่วมกับบริษัทสถาปนิกระดับโลกอย่าง “SOM” Skidmore, Owings and Merrill (Thailand) Co. Ltd. เข้ามาเป็นที่ปรึกษาการออกแบบหลัก โดยออกแบบให้ตัวอาคารมีเอกลักษณ์เฉพาะโดดเด่นที่สุดในย่านนี้ ด้วยการหลอมรวมความแตกต่างระหว่างสถาปัตยกรรมแบบภูมิปัญญาไทยกับการออกแบบที่เป็นสากล ไปสู่ความเป็น Iconic ของตัวโครงการ ซึ่งวางคอนโดขนานไปกับซอยสุขุมวิท 36 และดันอาคารร่นเข้าไปด้านในเพื่อหลบหลีกเพื่อนบ้านอย่าง Noble remix ไม่ให้มาบล็อกวิวใดๆ ทำให้มั่นใจได้เลยว่าผู้อยู่อาศัยจะได้วิวที่สวยงามและเป็นส่วนตัว ในส่วนงานออกแบบ Landscape ก็ได้บริษัท Shma เข้ามาดูแล ส่วนงาน Interior นั้นทางโครงการให้บริษัท dwp ผู้มีชื่อเสียงด้านการออกแบบและมีประสบการณ์กับโครงการระดับหรูทั้งในประเทศและต่างประเทศมาเป็นผู้ดูแลค่ะ

ในส่วนของพื้นที่ส่วนกลางทางโครงการก็จัดเต็มแบบสุดๆ เรียกว่าครบครันมากทีเดียวค่ะ ซึ่งคอนเซ็ปต์ของพื้นที่ส่วนกลางถูกออกแบบโดยหลอมรวมความต้องการใช้ชีวิตแบบสังคมเข้ากับความเป็นส่วนตัว สู่รูปแบบของ Facility ที่มีทั้งฟังก์ชั่นการใช้งานร่วมกัน และแยกเป็นส่วนตัว เริ่มจากชั้น 1 เป็นพื้นที่ของล็อบบี้, ตู้จดหมายและห้องเก็บของ, ซังเคน ลอว์น ที่เปรียบเสมือนสวนหน้าบ้าน และที่จอดรถซึ่งสามารถจอดได้มากถึง 100% (รวมจอดซ้อนคัน) สำหรับ Facility บนอาคารจะเริ่มที่ชั้น 7-8 และ 41-43 และดาดฟ้า ประกอบด้วย วอเตอร์ การ์เด้น, สระว่ายน้ำพร้อมสระเด็ก, ห้องสปา, ฮอริซอน ออนเซ็น, ห้องสำหรับเด็ก, ห้องอบไอน้ำ, ฟิตเนส, เวอร์ชัวร์ ไบค์, กอล์ฟ ซิมูเลเตอร์, สกาย เลาจน์ พื้นที่อเนกประสงค์, เดอะ เรสซิเดนซ์ เลาจน์ พื้นที่สำหรับจัดเลี้ยง, สกาย เทียเตอร์ ห้องชมภาพยนตร์ส่วนตัว, บาร์บีคิว เดค และที่ขาดไม่ได้เลยคือ ไรซ์ ฟิล์ด การ์เด้น ชั้น 41 และรูฟ ออชาร์ด บริเวณชั้น 43 และชั้นดาดฟ้า ที่ทางโครงการนำความเขียวขจีของธรรมชาติเข้าไปใส่ไว้ ให้ความรู้สึกเหมือนชานบ้านเรือนไทยที่มีทุ่งนา ภูเขา สวนบัว นาขั้นบันได และสวนผักรายล้อมอยู่รอบๆ นอกจากนี้ยังมาพร้อมกับระบบรักษาความปลอดภัยตลอด 24 ชม. และยังมีบริการ Wifi ที่บริเวณพื้นที่ส่วนกลางทุกชั้นอีกด้วย

โมเดลจำลองภาพรวมโครงการ THE ESSE SUKHUMVIT 36

จากโมเดลจำลองจะเห็นชัดเลยนะคะว่าตัวโครงการอยู่ติดสถานีทองหล่อ ซึ่งห่างเพียง 20 เมตรเท่านั้น

แปลนพื้นที่ชั้นล่างสุด แบ่งออกเป็นสวนด้านหน้า, ที่จอดรถ และบริเวณล็อบบี้

ตัวคอนโดขนานไปกับซอยสุขุมวิท 36 และดันอาคารร่นเข้าไปด้านในเพื่อหลบหลีกเพื่อนบ้านข้างๆ อย่าง Noble remix ไม่ให้มาบล็อกวิวลูกบ้าน ด้านข้างมีฟุตบาททางเดินสำหรับเข้า-ออก เพื่อแยกทางเดินของลูกบ้านออกจากทางเข้า-ออกรถให้ชัดเจน ทำให้การเดินเข้าออกโครงการมีความปลอดภัยดี รถยนต์จะผ่านเข้าออกด้วยระบบ Keycard Access เมื่อเข้ามาในโครงการแล้ว รถยนต์จะมีเส้นทางที่ตรงไปด้านในสำหรับเข้าไปจอดรถในอาคาร

พื้นที่ด้านหน้าถูกออกแบบให้เป็น ซังเคน ลอว์น ในลักษณะของสวนแบบขั้นบันได ที่นำไปสู่ Hidden Pavilion เป็นพื้นที่สีเขียวที่ถูกลดระดับลงจากพื้นด้านหน้าโครงการ ทำให้เกิดความเป็นส่วนตัวในเวลาที่มาใช้งาน

ภาพจำลองบรรยากาศภายใน Lobby มีรายละเอียดการตกแต่งและการเลือกใช้วัสดุที่หรูหราที่ผสมความเป็นไทยและสากลเข้าไว้ด้วยกัน

ภาพจำลองบรรยากาศภายใน LIBRARY มีรายละเอียดการตกแต่งและการเลือกใช้วัสดุคล้ายๆ กับส่วน Lobby ของโครงการ

แปลนของพื้นที่ชั้น 7 นะคะ ซึ่งจะชั้นรวม Facilities ส่วนกลางที่จัดไว้ชั้นบนของอาคาร ต่อจากพื้นที่จอดรถชั้น 1-6

สระว่ายน้ำเป็นแบบ Sky Infinity pool อยู่ที่ชั้น 7 ของอาคาร วิวหันไปทางถนนสุขุมวิท โดยไม่มีอะไรบดบังสายตาเลยค่ะ

ภาพจำลองบรรยากาศภายในห้อง KID’S ROOM รองรับสมาชิกตัวน้อยในครอบครัวของลูกบ้าน

ภาพจำลองบรรยากาศภายในห้อง ONSEN ซึ่งแบ่งแยกห้องชายและหญิง ทั้งยังมาพร้อมสระ 2 สระเพื่อเติมเต็มความผ่อนคลายของลูกบ้าน

แปลนของพื้นที่ชั้น 8 นะคะ ซึ่งจะเป็นพื้นที่ส่วนกลางต่อเนื่องมาจากชั้น 7

ภาพจำลองบรรยากาศภายในห้องฟิตเนส ห้อมล้อมด้วยกระจกใสทำให้เห็นวิวเมืองได้รอบอาคารทั้ง 3 ด้าน

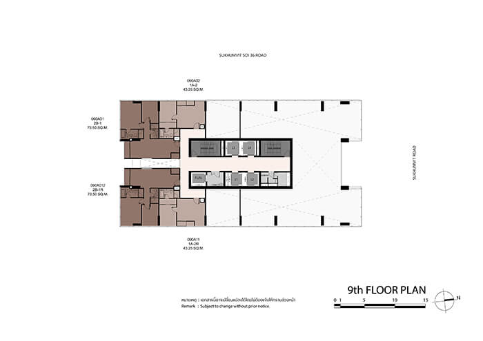
แปลนของพื้นที่ชั้น 9 นะคะ ซึ่งจะเริ่มเป็นที่อยู่อาศัยตั้งแต่ชั้นนี้เป็นต้นไป

แปลนพื้นที่ส่วนกลางชั้น 41 นะคะ

แปลนพื้นที่ส่วนกลางชั้น 42 นะคะ

แปลนพื้นที่ส่วนกลางชั้น 43 นะคะ

ภาพรวม Facilities ส่วนกลางที่จัดไว้ชั้นบนของอาคาร ชั้น 41-43 ซึ่งนอกจากจะได้ใช้งานพื้นที่ส่วนกลางแล้ว ยังได้รับวิวเมืองโดยรอบในมุมสูงอีกด้วย

ภาพจำลองบรรยากาศภายในห้อง SKY LOUNGE เป็น Double Space โล่งได้วิวเมืองเต็มสายตา

ภาพจำลองบรรยากาศในส่วนของ PRIVATE DINING พื้นที่ส่วนกลางที่ลูกบ้านสามารถขอใช้งานจัดปาร์ตี้เล็กๆ ได้ โดยจะมีไอส์แลนด์ และโต๊ะทานอาหารไว้ให้บริการ

ภาพจำลองบรรยากาศในห้อง SKY THEATRE

ภาพจำลองมุมสูงบริเวณชั้น 41-43 เป็นลักษณะของ Sky Terrace แบบ Open Air การออกแบบจึงใช้ Slope ไล่ระดับลงไป ซึ่งพื้นที่ทั้ง 3 ชั้นนี้นอกจากจะเป็นพื้นที่ชมวิวของโครงการแล้ว ยังช่วยพื้นที่สีเขียวที่ลดความร้อนให้แก่ชั้นพักอาศัยได้ด้วย
เปิดห้องตัวอย่าง
แบบห้องของ THE ESSE SUKHUMVIT 36 ที่เราจะพาไปชมมีด้วยกัน 3 แบบ ทุกยูนิตขายแบบ Fully Fitted มาพร้อมวัสดุและสุขภัณฑ์คุณภาพซึ่งถูกคัดสรรมาอย่างดี ไม่ว่าจะเป็นชุดครัวพร้อมเตาไฟฟ้า, เครื่องดูดควัน, สุขภัณฑ์ในห้องน้ำ, Walk-in Closet, เฟอร์นิเจอร์ Built-in รวมถึงผ้าม่านและวอลเปเปอร์ที่ออกแบบร่วมกับ Jim Thompson เพื่อลูกบ้านของโครงการโดยเฉพาะ อีกหนึ่งความพิเศษคือผนังบริเวณคอนโซลทีวีในห้องนั่งเล่นทุกยูนิตจะตกแต่งด้วยหินแท้ ซึ่งสีและลวดลายของหินนั้นจะแตกต่างกันไปตามแต่ละไทป์
และด้วยความใส่ใจในทุกรายละเอียดที่ต้องการให้ลูกบ้านทุกยูนิตได้รับความสะดวกสบายอย่างเต็มที่ ทางโครงการจึงเพิ่ม Application ให้ลูกบ้านทุกยูนิตสามารถควบคุมไฟ เครื่องปรับอากาศ รวมถึงผ้าม่านผ่าน Smart Phone ได้ทุกที่ทุกเวลา เพื่อคุณภาพชีวิตที่สมบูรณ์แบบที่คุณเลือกและควบคุมได้
ไม่รอช้า..เรามาเปิดประตูห้องตัวอย่างเริ่มต้นกันด้วยห้อง 1 Bedroom ขนาด 38.50 ตร.ม. กันเลยดีกว่าค่ะ ความรู้สึกแรกที่เดินเข้าห้องมา ต้องบอกว่าภายในห้องจัดวาง Layout ให้ทุกพื้นที่สามารถใช้สอยได้อย่างคุ้มค่า ครบทุกฟังก์ชั่นจริงๆ ค่ะ ทั้งห้องนอน, Walk-in Closet, ห้องน้ำ, ห้องนั่งเล่น และห้องครัวที่จัดแบ่งพื้นที่เป็นสัดส่วน พร้อมแบ่งมุมรับประทานอาหารไว้อีกด้วย

แปลนห้อง 1 Bedroom 1 Bathroom Type 1A-1 ขนาด 38.50 ตารางเมตร

หน้าประตูติดตั้ง Digital Door Lock มาให้แล้วนะคะ

เปิดประตู Digital Door Lock เข้ามาจะเจอส่วนครัวก่อนเลยค่ะ

ครัวจัดฟังก์ชั่นเป็นตัวแอล (L) มาพร้อมเตาไฟฟ้า, เครื่องดูดควัน และอ่างล้างจาน 1 หลุม

Top Counter วัสดุจะเป็น Composite Quartz ที่เป็นลายต่อเนื่องกันเหมือนในห้องตัวอย่างเลยนะคะ เวลาปรุงอาหารแล้วกระเด็นก็สามารถเช็ดทำความสะอาดได้ง่าย

ทางโครงการบิลต์มุมรับประทานอาหารสำหรับ 2 ที่นั่ง ติดกับส่วนเคาน์เตอร์มาให้เรียบร้อยแล้วค่ะ ซึ่งลูกบ้านไม่จำเป็นต้องซื้อโต๊ะเพิ่มเลย

ถัดมาในส่วนของพื้นที่นั่งเล่นมีการจัดวางชุดโซฟาขนาด 2 ที่นั่งเอาไว้

ทางโครงการ Built-in ตู้เก็บเครื่องซักผ้าพร้อมปลั๊กไฟมาให้ติดกับประตูห้องนอนเลยนะคะ หน้าบานเป็นบานกระจกแบบ Coated Glass Panel with Aluminium Edge ทำให้ได้ความเงาของกระจกด้านหน้าที่ช่วยเพิ่มความหรูหรา แต่ก็ไม่สามารถมองเห็นสิ่งของด้านใน

ระยะห่างระหว่างโซฟากับคอนโซลทีวีมีระยะกำลังดีเลยนะคะ ไม่แคบและไม่กว้างจนเกินไป สามารถวางโต๊ะกลางได้โดยไม่รู้สึกอึดอัด

มุมนั่งเล่นจะถูกโอบล้อมด้วยประตูกระจกใสนะคะ ซึ่งเป็นประตูบานเลื่อนทั้ง 2 ข้าง สามารถเปิดไปรับลมที่ระเบียงได้

ระเบียงมีขนาดกะทัดรัด แต่สามารถวางราวตากผ้าได้สบายๆ ซึ่งพื้นถูกลดระดับลงไปจากพื้นภายในห้องพักอาศัยเล็กน้อยเพื่อป้องกันน้ำจากระเบียงไหลเข้ามาในห้องพักค่ะ

นอกจากการออกแบบที่สวยงามแล้ว ทางโครงการยังตกแต่งผนังด้านหลังคอนโซลทีวัด้วยวัสดุหินอ่อนนำเข้าให้ทุกยูนิตด้วยค่ะ ซึ่งพื้นที่ติดกับมุมนั่งเล่นจะเป็นส่วนของห้องนอนและห้องน้ำนะคะ

พื้นที่รอบเตียงสามารถเดินได้โดยรอบเลยนะคะ พื้นเป็น Engineering Wood สี Dark Brown ลายก้างปลาให้ความรู้สึกเหมือนบ้านเรือนไทยสมัยก่อน

บริเวณข้างเตียงยังมีพื้นที่เหลือพอสำหรับวางโต๊ะข้างเตียง และโต๊ะเครื่องแป้งได้สบายๆ เลยนะคะ

เครื่องปรับอากาศภายในห้องได้แบบ Concealed Split ซึ่งทำให้ห้องดูเรียบร้อยดี แต่การซ่อมแซมอาจจะทำได้ยากกว่าการติดแอร์แบบแขวนธรรมดา ภายในห้องนอนอีกฝั่งหนึ่งเป็นส่วนของ Walk-in Closet และห้องน้ำค่ะ

ส่วนของ Walk-in Closet จะมีประตูบานเลื่อนกั้นกลางระหว่างห้องนอนด้วยนะคะ

ต่อเนื่องมายังห้องน้ำ ภายในห้องน้ำแบ่งพื้นที่เปียกและแห้งอย่างชัดเจน

ผนังฝั่งหนึ่งใน Shower Area จะถูกตกแต่งให้สวยงามด้วยด้วยหินอ่อนนะคะ

พื้นที่ส่วนเปียกจะถูกลดระดับลงมาจากพื้นที่ส่วนแห้งอีกเสต็ปหนึ่ง เพื่อกันไม่ให้น้ำจาก Shower Area ไหลออกไปสู่พื้นที่อื่นๆภายในห้องน้ำ

ส่วนแห้งจะจัดวางสุขภัณฑ์ไว้ข้างเคาน์เตอร์ล้างหน้า ก่อนต่อเนื่องไปยังอ่างอาบน้ำ
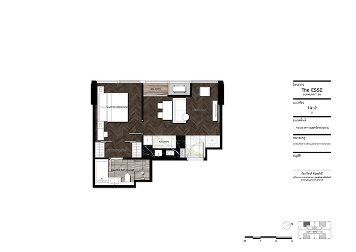
ห้องตัวอย่างถัดมาที่เราได้ชมคือ ห้อง 1 Bedroom ขนาด 43.25 ตร.ม. ภายในห้องแบ่งพื้นที่ใช้สอยอย่างชัดเจน จัดพื้นที่ห้องนอนไว้ด้านในสุด ซึ่งช่วยเปิดรับแสงสว่างได้เต็มที่ ติดกับห้องนอนเป็น Walk-in closet ที่มีประตูบานเลื่อนกั้น พร้อมอยู่ติดห้องน้ำ ในส่วนของพื้นที่นั่งเล่นก็ดูกว้างขวาง มีบิลต์อินคอนโซลทีวีพร้อมตู้เก็บของสูงจรดเพดาน ออกแบบครัวแบบ Open Plan เชื่อมต่อระหว่างมุมรับประทานอาหารและมุมนั่งเล่นไว้ด้วยกัน ต้องบอกว่าการจัด Space ภายในห้องทำไว้ได้ดีมาก ถึงแม้จะเป็นห้องขนาด 43.25 ตร.ม. แต่ก็สามารถจัดมุมนั่งเล่น มุมกินข้าว พื้นที่ครัว และห้องนอนได้อย่างเป็นสัดส่วนสบายๆ กว้างขวางเหมือนดั่งขนาดห้อง 2 ห้องนอนเลยค่ะ

แปลนห้อง 1 Bedroom 1 Bathroom Type 1A-2 ขนาด 43.25 ตารางเมตร

สำหรับไทป์นี้เปิดประตู Digital Door Lock เข้ามาจะเจอส่วนนั่งเล่นก่อนนะคะ

มุมนั่งเล่นสามารถวางโซฟาขนาด 2 ที่นั่ง พร้อมโซฟาเดี่ยวได้อีกตัว ซึ่งแน่นอนว่าตรงกลางมีระยะกว้างมากพอที่จะจัดวางโต๊ะกลางได้ด้วยค่ะ

ติดกับโซฟาจะเป็นมุมรับประทานอาหารขนาด 2 ที่นั่งนะคะ

การตกแต่งผนังด้านหลังคอนโซลทีวีสำหรับ Type นี้จะเป็นวัสดุหินอ่อนนำเข้าจากต่างประเทศเหมือนกับห้องตัวอย่างแรกเลยนะคะ จะต่างกันแค่เพียงสีของหินเท่านั้น

พื้นที่ฝั่งตรงข้ามโต๊ะรับประทานอาหารจะเป็นส่วนครัวนะคะ

ครัวจัดฟังก์ชั่นเป็นรูปตัวยู (U) จะได้วัสดุเหมือนในห้องตัวอย่างห้องแรกเลยนะคะ มีแตกต่างนิดหน่อยที่ขนาดและตำแหน่งของเคาน์เตอร์

พื้นที่ต่อเนื่องจากครัวเข้าไปข้างในจะเป็นห้องนอนและห้องน้ำนะคะ ซึ่งภายในห้องโอบล้อมด้วยหน้าต่างกระจกใส ทำให้มีแสงสว่างสาดส่องเข้ามามากพอ ไม่ต้องพึ่งแสงประดิษฐ์ในเวลากลางวัน

พื้นที่ห้องนอนมีขนาดกว้างกำลังดีเลยนะคะ สามารถจัดวางเตียงขนาด 5-6 ฟุตได้สบาย โดยเหลือพื้นที่เดินได้โดยรอบด้วยค่ะ แถมผนังปลายเตียงยังสามารถโต๊ะคอนโซลทีวีโดยไม่รู้สึกอึดอัดอีกด้วย

เครื่องปรับอากาศภายในห้องเป็นแบบ Concealed Split เหมือนกับห้องตัวอย่างแรกเลยนะคะ ภายในห้องนอนอีกฝั่งหนึ่งเป็นห้องน้ำ และส่วนของ Walk-in Closet ที่มีประตูกระจกใสบานเลื่อนกั้นค่ะ

Walk-in Closet ทางโครงการจะบิลต์อินมาให้ตามภาพเลยนะคะ

ภายในห้องน้ำจะตกแต่งด้วยหินทั้งหมด โทนสีที่นำมาใช้ดูสะอาดตาและเลือกคู่สีได้ค่อนข้างดีเลยค่ะ การวางฟังก์ชันโดยรวมใช้งานได้ดีทุกส่วน

เคาน์เตอร์ล้างหน้าจะบิลต์อินดั่งภาพเลยนะคะ รอบๆ อ่างกรุด้วยหินอ่อนนำเข้าทำให้ดูหรูหรามากขึ้น ตัว ส่วนกระจกเงาจะได้เต็มบานแบบนี้เลยนะคะ

อ่างอาบน้ำจะอยู่ติดกับผนังฝั่งหนึ่งของห้องน้ำนะคะ บริเวณขอบอ่างก็กรุด้วยหินอ่อนสีเข้มนำเข้าเช่นเดียวกับบริเวณล้างหน้า
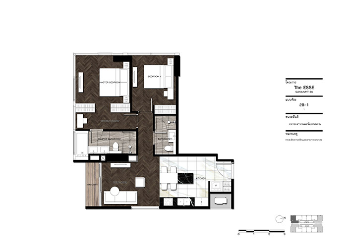
สำหรับห้องตัวอย่างสุดท้ายที่เราจะพาไปดู เป็นห้อง 2 Bedroom ขนาด 73.50 ตร.ม. ลักษณะแปลนด้านหน้าจะเป็นห้องแคบลึก แต่เมื่อเดินเข้าไปจะเป็นพื้นที่กว้างแบบสี่เหลี่ยมจัตุรัส บรรยากาศโดยรวมในห้องนี้จึงให้ความรู้สึกโปร่งโล่งสบายตา การจัดแบ่งพื้นที่ก็เป็นสัดส่วนชัดเจน เปิดห้องเข้ามาเจอส่วนครัวและมุมรับประทานอาหารเลย ซึ่งสามารถจัดวางพื้นที่ดินเนอร์สำหรับ 4 คนได้สบายๆ ถัดไปนั้นเป็นมุมนั่งเล่นที่กว้างพอให้วางโซฟาตัวยาวขนาดใหญ่ได้เลย แถมยังแอบเหลือพื้นที่สำหรับวางโต๊ะข้างและโต๊ะกลางได้อีกด้วย
พื้นที่อีกโซนหนึ่งลึกเข้าไปจะเป็นห้องน้ำ, ห้องนอนเล็ก ซึ่งภายในห้องจะบิลต์อินตู้เสื้อผ้ามาให้เรียบร้อยแล้วค่ะ ส่วนห้องนอนใหญ่เปิดประตูเข้าไปจะเจอส่วน Walk-in Closet ก่อนเลยค่ะ ซึ่งก็มีมุมแต่งตัวพร้อมห้องน้ำส่วนตัว ก่อนจะจัดพื้นที่พักผ่อนไว้ด้านในสุด

แปลนห้อง 2 Bedroom 2 Bathroom ขนาด 73.50 ตารางเมตร

สำหรับไทป์นี้เปิดประตู Digital Door Lock เข้ามาจะเจอส่วนครัวเหมือนกับห้องตัวอย่างแรกเลยค่ะ เพียงแต่มีขนาดที่กว้างและใหญ่กว่า

Counter ครัวจะเป็นรูปแบบตัวแอล (L) จะได้วัสดุเหมือนอย่างในห้องตัวอย่างก่อนหน้าเช่นกัน จะมีแตกต่างนิดหน่อยที่ตำแหน่งและขนาดของอ่างล้างจานที่แบ่งเป็น 2 ช่อง ทำให้การใช้งานสะดวกมากขึ้น รองรับจำนวนสมาชิกในบ้านที่เพิ่มขึ้น

ด้วยขนาดห้องที่ใหญ่ขึ้นทำให้ได้ Counter แบบ Island เล็กๆ เพิ่มขึ้นมาด้วย แถมยังสามารถวางโต๊ะรับประทานอาหารสำหรับ 4 ที่นั่งได้สบายๆ

ติดกับมุมรับประทานอาหารนั้นจะเป็นโซนนั่งเล่นนะคะ พื้นที่ตรงนี้เป็นพื้นที่พักผ่อนหลักๆ ของห้องที่สมาชิกในบ้านจะมานั่งเล่นดูทีวี ทานข้าว ทำอาหารกันในบริเวณนี้ เวลานั่งทานอาหารก็สามารถมองเห็นและพูดคุยกับสมาชิกคนอื่นๆ ที่นั่งดูทีวี หรือยืนทำอาหารอยู่ในครัวได้ ส่วนพื้นที่ลึกเข้าไปจะเป็นโซนห้องนอนและห้องน้ำค่ะ

ห้องนั่งเล่นจะอยู่ติดกับระเบียงที่โอบล้อมไปด้วยหน้าต่างกระจกใส ซึ่งพื้นที่ส่วนนี้มีเพดานสูงโปร่ง สบาย ทำให้น่าใช้งานมากขึ้น

ระยะดูทีวีของห้องนั่งเล่น มีระยะห่างประมาณ 2.4 เมตร มีขนาดทีวีที่เหมาะสมอยู่ที่ 50 นิ้ว พื้นที่ทางเดินนี้เมื่อวางโต๊ะกลางแล้วก็ยังเหลือพื้นที่ให้เดินผ่านเข้าไปยังระเบียงได้ด้วยค่ะ

การตกแต่งผนังด้านหลังคอนโซลทีวีสำหรับ Type นี้จะได้เป็นวัสดุหินอ่อนสีน้ำตาลอ่อนที่นำเข้าจากต่างประเทศ

จากโถงกลางมองตรงไปจะเป็นส่วนของห้องนอนเล็กนะคะ ฝั่งซ้ายมือจะเป็นห้องนอนใหญ่ และฝั่งขวาจะเป็นห้องน้ำค่ะ

มาที่ห้องน้ำกันก่อนดีกว่าค่ะ ภายในห้องน้ำแบ่งพื้นที่ส่วนเปียก-แห้งไว้เรียบร้อย วัสดุของประตูจะเหมือนกับห้องน้ำในห้องแบบแรกเลยนะคะ พื้นที่ด้านในมีขนาดพอๆ กัน และมีวัสดุอุปกรณ์ให้ครบถ้วนเหมือนกัน

วัสดุอุปกรณ์ในห้องน้ำจะได้อ่างล้างหน้า มาพร้อมกับตู้ลอยติดผนังสำหรับเก็บของ ซึ่งเป็นแบบเปิดได้ฝั่งเดียวนะคะ หน้าบานตู้ได้เป็นกระจกและมีซ่อนไฟไว้ใต้ตู้เรียบร้อย ซึ่งห้องจริงที่ส่งมอบให้ลูกบ้านก็จะได้แบบนี้เลยนะคะ

ภายในห้องนอนเล็กจะได้เตียงขนาด 5 ฟุต เหมือนกับห้องตัวอย่างเลยนะคะ ส่วนช่องแสงในห้องจะได้หน้าต่างบานใหญ่รับแสงธรรมชาติเข้ามาภายในได้อย่างเพียงพอและด้วยขนาดบานที่ใหญ่เกือบถึงพื้นทำให้สามารถนอนชมวิวจากบนเตียงได้เลย

พื้นที่รอบเตียงสามารถเดินได้โดยรอบ แถมผนังปลายเตียงยังมีพื้นที่ให้ติดตั้งทีวีได้อีกด้วย

ผนังฝั่งที่ติดกับประตู จะเป็นตู้เสื้อผ้าบิลต์อินที่ได้มาพร้อมกับห้องเลยนะคะ ติดกับตู้เสื้อผ้าจะเป็นโต๊ะทำงานเล็กๆ

มาดูที่ห้อง Master Bedroom กันต่อ ห้องนี้ได้พื้นที่ใช้สอยที่กว้างมาก ภายในจัดฟังก์ชันมาได้ครบทั้งห้องน้ำในตัว และแบ่งพื้นที่แต่งตัวไว้อย่างเป็นสัดส่วน

พื้นที่ในสุดตรงกลางจะเป็นตำแหน่งของโต๊ะเครื่องแป้งที่ทางโครงการ Built-in ไว้ให้เหมือนในห้องตัวอย่างนะคะ

พื้นที่ส่วนพักผ่อนจะถูกเว้นให้เป็นทางเดินระหว่างตู้เสื้อผ้าเข้าไปด้านในนะคะ ซึ่งทางโครงการ Built-in ตู้เสื้อผ้าไว้ให้เรียบร้อยแล้วค่ะ

ต่อไปมาดูส่วนของเตียงนอนบ้าง ห้องจริงที่ได้จะได้เตียงนอนขนาด 6 ฟุตแบบในห้องตัวอย่างเลยนะคะ

จากภาพจะเห็นว่าเมื่อวางเตียงแล้วยังเหลือพื้นที่ปลายเตียงให้เดินได้โดยรอบเลยนะคะ

พื้นที่ใช้สอยปลายเตียงสามารถวางตู้คอนโซลทีวีพร้อมโคมไฟตั้งพื้นได้สบายๆ ติดกันจะมีหน้าต่างไว้รับแสงธรรมชาติและเปิดระบายอากาศ เป็นแบบเดียวกับห้องนอนเล็กเลย ทำให้สามารถนอนชมวิวจากบนเตียงได้

อีกฝั่งหนึ่งของห้องเป็นตำแหน่งสำหรับวางตู้เสื้อผ้าโซนแต่งตัว

สำหรับห้องน้ำจะอยู่ติดกับโต๊ะเครื่องแป้งนะคะ

ต่อไปมาดูห้องน้ำกันค่ะ Mood&Tone ที่ได้จะมาในแนวน้ำตาลดำดูคลาสสิค เรียบหรู ไม่น่าเบื่อง่าย ภายในก็จะให้อุปกรณ์มาครบ เหมือนกับในห้องตัวอย่างเลยค่ะ

อ่างล้างหน้าจะเป็นแบบ His & Hers ด้านหลังมีตู้เก็บของที่ได้หน้าบานเป็นบานกระจกค่ะ

ตำแหน่งของ Bathtub จะอยู่ติดกับหน้าต่างกระจกใสนะคะ ซึ่งช่วยเปิดมุมมองของวิวด้านนอก หากต้องการความเป็นส่วนตัวก็สามารถติดฟิลม์หรือมูลี่ได้ค่ะ

อีกฝั่งจะเป็นพื้นที่อาบน้ำส่วนเปียก ฉากกั้นเป็นกระจก ผนังฝั่งหนึ่งถูกตกแต่งให้สวยงามด้วยด้วยหินอ่อนสีเข้ม
ด้วยทำเล Prime Location ของกรุงเทพฯ ริมถนนสุขุมติด BTS สถานีทองหล่อแบบนี้ THE ESSE SUKHUMVIT 36 จึงเป็นอีกหนึ่งโครงการที่ถูกจับตามองมากที่สุดโครงการหนึ่ง อย่างที่แจ้งไปแล้วว่าทางโครงการจะขายห้องมาให้แบบ Fully Fitted ดังนั้นในห้องมาตรฐานก็จะมี ตู้เก็บของ, เคาน์เตอร์ครัว, เตาไฟฟ้า, เครื่องดูดควัน, อ่างล้างจาน, สุขภัณฑ์ในห้องน้ำ, เครื่องปรับอากาศ, ผ้าม่าน, วอลเปเปอร์ และ Digital Door Lock มาเหมือนกันเกือบทุกรายการค่ะ ซึ่งทาง SINGHA ESTATE ประกาศราคาเริ่มต้นมาที่ 12 ล้านบาท ถ้าเทียบกับคอนโดมิเนียม Luxury ในระดับเดียวกันแล้ว ถือว่าเป็นอีกหนึ่งตัวเลือกที่น่าสนใจและคุ้มค่าแก่การลงทุนมากเลยนะคะ เพราะแนวโน้มในการเติบโตของทำเลค่อนข้างดีในอนาคต ไม่ว่าจะซื้อไว้อยู่อาศัยเองหรือเก็งกำไรยังไงก็คุ้มแน่นอน..
ล่าสุดมีข่าวออกมาว่า โครงการ THE ESSE SUKHUMVIT 36 เตรียมจะเปิด Pre-Sale วันที่ 18-19 พฤศจิกายน 2560 นี้แล้วค่ะ สำหรับคนที่สนใจ อยากได้ข้อมูลเพิ่มเติม หรือจะนัดหมายเข้าไปเยี่ยมชมห้องตัวอย่าง ซึ่งจะเปิดให้ชมตั้งแต่วันที่ 13 พฤศจิกายน 2560 เป็นต้นไป ก็สามารถติดต่อได้ที่ โทร. 1221 หรือกดลงทะเบียนเพื่อรับข้อมูลเพิ่มเติมและสิทธิพิเศษได้ที่ https://goo.gl/h45QbX