

รีวิวฉบับนี้ จะพาทุกคนไปชมเยี่ยมโครงการ The Stage Taopoon Interchange ในเครือของ Real Asset อีกหนึ่งโครงการที่เกาะติดแนวรถไฟฟ้า สายสีน้ำเงิน แถมพ่วงด้วยสายสีม่วงเข้าไปอีก เพราะจุดนี้เป็นสถานีเชื่อมต่อของรถไฟฟ้าทั้ง 2 สายพอดี ทำเลนี้เลยเพิ่มระดับความน่าสนใจขึ้นมาได้อีกเยอะเลยทีเดียว

การเดินทาง
การเดินทางมายังโครงการ The Stage Taopoon Interchange ของเราในครั้งนี้ เริ่มต้นกันจากถนนประชาชื่นครับ มุ่งหน้ามาทางเตาปูนจนสุดถนน ซึ่งจะตัดกับถนนประชาราษฎร์สาย 2 พอดี ตรงนี้เราจะเริ่มเห็นรางรถไฟฟ้ากันแล้ว จากนั้นก็เลี้ยวขวาเข้าถนนประชาราษฎร์ สาย 2 กันเลย วิ่งตรงข้ามแยกเตาปูนมาอีกหน่อยก็จะเห็นตัวโครงการตั้งอยู่ทางซ้ายมือแล้วครับ การเดินทางด้วยรถยนต์จึงไม่ใช่เรื่องยากเท่าไหร่ เพราะสามารถเลือกลงทางด่วนรัชดาภิเษก ตรงแยกประชานุกูลแล้ววิ่งมาตามถนนประชาชื่นก็ได้ หรือจะเลือกข้ามสะพานพระราม 7 มาจากฝั่งถนนจรัญสนิทวงศ์ก็ได้เช่นกัน
แต่ในอนาคตอันใกล้นี้ เมื่อรถไฟฟ้าสายสีม่วงเปิดให้บริการเมื่อไหร่ การเดินทางด้วยรถไฟฟ้าก็จะเป็นการเดินทางที่พึ่งพาเป็นหลักได้ เพราะช่วยประหยัดเวลาและหลีกเลี่ยงปัญหารถติดได้มาก แถมตัวสถานีรถไฟฟ้าก็อยู่ห่างจากหน้าโครงการไปไม่เกิน 400 เมตร เรียกว่ากำลังเดินได้สบายๆ ครับ แต่ถ้าขี้เกียจเดินหน่อย บริเวณใต้สถานีรถไฟฟ้าก็มีวินมอเตอร์ไซค์พร้อมให้บริการอยู่แล้ว ส่วนเรื่องการเดินทางด้วยรถบริการสาธารณะอื่นๆ ก็ค่อนข้างสะดวกเช่นกัน ทั้งรถเมล์ และรถแท็กซี่ เนื่องจากบริเวณแถบนี้มีทั้งโรงเรียน และโรงพยาบาลอยู่ใกล้ๆ รถราจึงมีวิ่งบริการเป็นจำนวนมากอยู่พอสมควรเลยทีเดียวครับ

แผนที่การเดินทางรอบๆ โครงการ

เริ่มจากถนนประชาชื่น บริเวณแยกประชานุกูล หน้าโรงพยาบาลเกษมราษฎร์ ประชาชื่น นะครับ ให้ตรงผ่านแยกประชานุกูลไปทางบางซื่อเลยครับ

โรงพยาบาลเกษมราษฏร์ ประชาชื่น อีกโรงพยาบาลที่อยู่ใกล้โครงการ

จากนั้นขับตรงไปตามถนนประชาชื่น

ขับมาจนถึงแยกประชาชื่น ก่อนจะถึงแยกจะเห็นโลตัส ประชาชื่น หรือที่คนแถวนี้เรียกว่าโลตัส เตาปูน อยู่ด้านซ้ายมือ

ถึงแยกแล้วให้เลี้ยวขวา เข้าถนนประชาราษฎร์สาย 2 ไปทางเตาปูน ตามป้าย

เลี้ยวขวามานิดหน่อย ก็จะเจอ MRT สถานีเตาปูน Interchange

บรรยากาศบนถนนประชาราษฎร์ สาย 2 จะมีคอนโด ขึ้นมาหลายโครงการ ทั้ง Rich Park ที่สร้างเสร็จแล้ว โครงการ ชีวาทัย Interchange และ The Tree Interchange ที่กำลังก่อสร้างอยู่ การเดินทางในช่วงเวลาเร่งด่วนการจราจรอาจจะติดขัดสักหน่อยนะครับ

จากสถานี MRT เตาปูนมาประมาณ 350 เมตร ก็จะถึงสำนักงานขายโครงการแล้วครับ
วิเคราะห์ตัวโครงการ
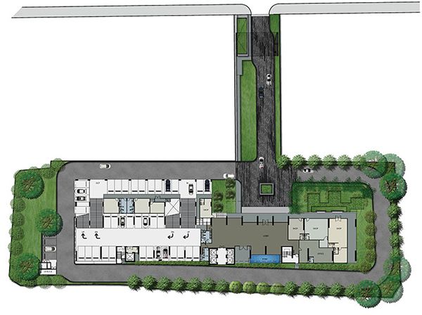
โครงการ The Stage Taopoon Interchange เป็นคอนโด High Rise ตั้งอยู่บนประชาราษฎร์สาย 2 ห่างจากสถานีรถไฟฟ้าเตาปูนมาประมาณ 350 เมตร ก็จะถึงหน้าทางเข้าโครงการ ถ้าดูตามรูปที่ดินของโครงการแล้ว จะเห็นว่าตัวที่ตั้งโครงการจริงๆ จะอยู่ด้านในถัดจากถนนเข้ามาอีกประมาณ 100 เมตร ซึ่งเดิมบริเวณนี้เป็นที่ดินของโรงเรียนเทพสัมฤทธิ์วิทยา ถ้าหากใครที่คุ้นเคยกับทำเลแถบนี้อยู่แล้วก็คงจะนึกภาพตามได้ไม่ยากครับ ด้วยความที่ตัวที่ดินอยู่ถัดเข้ามาด้านใน จึงค่อนข้างลดปัญหาเรื่องมลภาวะทางเสียงไปได้พอสมควรเลยนะครับ เพราะถ้าตัวอาคารที่พักอาศัยอยู่ติดถนนใหญ่ และใกล้กับรางรถไฟฟ้ามากกว่านี้ คงหลีกเลี่ยงเรื่องเสียงรบกวนได้ยาก ในขณะที่พื้นที่รอบๆ โครงการยังเป็นที่พักอาศัยทั้งอาคารพาณิชย์และบ้านเดี่ยวเสียเป็นส่วนใหญ่ จะมีเพื่อนบ้านเป็นตึกสูงของโครงการ The Tree Interchange ที่อยู่ทางด้านทิศตะวันตกเท่านั้นที่อยู่ในระยะประชิด ยังดีหน่อยที่ลักษณะของที่ดินโครงการบังคับให้ตัวอาคารที่พักอาศัยหันหน้าไปทางทิศเหนือ-ใต้ เลยหมดปัญหากังวลเรื่องตำแหน่งห้องที่จะถูกตึกข้างๆ บดบังวิวไปได้เยอะเลย
อย่างที่บอกไปแล้วว่าพื้นที่โดยรอบยังเป็นบ้านพักอาศัยที่อยู่มาก่อนนานแล้ว สภาพแวดล้อมโดยรอบจึงยังคงความเป็นชุมชนอยู่ ถึงแม้ว่าจะมีการเปลี่ยนแปลงไปมากแล้วก็ตาม อาคารพาณิชย์ริมถนนประชาราษฎร์ สาย 2 ยังคงมีร้านค้า ร้านอาหาร และธนาคารพาณิชย์ ที่ให้ความสะดวกสบายในชีวิตประจำวันได้ตามสมควร รวมถึงโรงเรียนเทพสัมฤทธิ์วิทยาที่ยังคงอยู่ทางด้านหลังโครงการ และโรงพยาบาลบางโพที่อยู่ห่างออกไปเพียง 300 เมตรเท่านั้น ในขณะที่ถัดออกไปทางแยกเตาปูนก็มีตลาดสด และห้างโลตัสเตาปูนที่สามารถเป็นที่พึ่งพาให้จับจ่ายซื้อหาข้าวของที่จำเป็นได้ไม่ยาก ทำเลในย่านนี้จึงถือว่าเหมาะกับการอยู่อาศัยพอสมควรเลยทีเดียว

บรรยากาศ 2 ข้างทางบนถนนประชาราษฎร์ สาย 2 ยังคงเป็นอาคารพาณิชย์เรียงรายอยู่ทั้ง 2 ฝั่ง

จะมีร้านอาหารอยู่ประปราย อย่างที่เห็นนี่คือร้านข้าวมันไก่ ที่อยู่ใกล้โครงการที่สุด

ฝั่งตรงข้ามก็จะมีร้านก๋วยเตี๋ยวลูกชิ้นปลานายใบ้ ร้านอร่อยที่อยู้ใกล้ๆ คอนโด

เดินเลยมาอีกหน่อยก็จะถึงทางขึ้นรถไฟฟ้า ระยะทางจากโครงการถึง MRT ประมาณ 350 เมตร ถ้ารถไฟฟ้าเปิดใช้บริการแล้ว น่าจะเพิ่มความสะดวกสบายให้คนในย่านนี้ขึ้นเยอะเลยครับ
สำหรับตัวโครงการเป็นคอนโดอาคารเดี่ยวสูง 36 ชั้น มียูนิตรวมทั้งหมด 773 ยูนิต โดยส่วนที่พักอาศัยจะเริ่มตั้งแต่ชั้น 7 ขึ้นไป ในขณะที่พื้นที่ตั้งแต่ชั้น 1-6 จะถูกจัดสรรให้เป็นพื้นที่จอดรถ ซึ่งสามารถรองรับปริมาณรถได้ถึง 447 คันเลยทีเดียว ถือว่าทางโครงการจัดมาให้เต็มที่มากๆ เมื่อเทียบกับคอนโดแนวรถไฟฟ้าในระดับเดียวกัน พื้นที่ส่วนกลางหลักๆ จะอยู่ที่ชั้น 6-7 มีทั้งฟิตเนส สระว่ายน้ำขนาด 25 x 8 เมตร พื้นที่พักผ่อน รวมถึงห้องสมุด และ Play Room ด้วย ซึ่งจะอยู่รวมกันกับพื้นที่พักอาศัยบนชั้น 7 นั่นเอง ห้องพักบนชั้นนี้จะสะดวกเวลาใช้งานพื้นที่ส่วนกลางในการออกกำลังกาย แต่ก็ต้องแลกกับเป็นส่วนตัวที่เสียไปบ้างครับ นอกจากนี้ที่พื้นที่บนดาดฟ้าชั้น 36 ยังมีสวนหย่อม และมุมพักผ่อนไว้ให้รับลมชมวิวได้อีกด้วย แต่จะว่าไปแล้วพื้นที่ส่วนกลางที่ทางโครงการจัดสรรมาให้นั้น ออกจะกระทัดรัดไปซักหน่อย ถ้าเทียบกับจำนวนยูนิตรวมแล้ว สัดส่วนของการใช้งานพื้นที่ส่วนกลางค่อนข้างหนาแน่นเลยทีเดียว เช่นเดียวกันกับลิฟท์โดยสารที่ทางโครงการจัดไว้ให้ 4 ตัว เฉลี่ยออกมาแล้ว ลิฟต์ 1 ตัว ต่อ 194 ยูนิต นับว่าหนาแน่นเอาเรื่องถึงแม้จะมีลิฟต์ขนของแยกมาต่างหากแต่ก็ไม่ได้ช่วยแก้ปัญหาตรงนี้ได้นะครับ เพราะอย่างไรการใช้งานก็แยกส่วนกันอยู่ดี ถึงเวลาใช้งานจริง ช่วงเช้าๆ ที่ทุกคนรีบจะออกไปทำงานพร้อมๆ กัน คงต้องรอลิฟต์กันนานหน่อย พ้นจากเรื่องส่วนกลางไปแล้ว เรื่องระบบรักษาความปลอดภัยภายในโครงการก็เป็นไปตามมาตรฐานเลยครับ ทั้งเจ้าหน้าที่รักษาความปลอดภัย กล้องวงจรปิดตลอด 24 ชั่วโมง รวมถึงการใช้ Key Card ในการเข้าสู่ตัวอาคาร ซึ่งทั้งหมดนี้ก็เป็นระบบรักษาความปลอดภัยตามมาตรฐานที่เราพอจะคาดเดากันได้ไม่ยาก

ภาพมุมกว้าง เมื่อมองจากโค้งน้ำเจ้าพระยา

แบบจำลองโครงการ จะเห็นระยะทางที่ตัวโครงการร่นจากถนนเข้าไปประมาณ 100 เมตร

ทางเข้าโครงการ

ชั้น G จะเป็น Lobby ขนาดใหญ่ที่อยู่ติดกับ Shop อีก 4 Shop และมีที่จอดรถอีกบางส่วน ส่วนที่จอดรถหลักๆ จะอยู่ที่ชั้น 1-6

หน้าตาของ Lobby ที่ชั้น G

Facility หลักของโครงการจะอยู่ที่ชั้น 7 ทั้งสระว่ายน้ำแยกสระเด็ก Reading Room และ Play Room นอกจาก Facility แล้ว ชั้น 7 ก็จะเป็นชั้นที่เริ่มต้นของห้องพักอาศัยด้วยนะครับ

ห้องสมุดที่ชั้น 7

สระว่ายน้ำระบบเกลือขนาด 8×25 เมตร พร้อมแยกสระเด็ก

แบบจำลองบนชั้น 7

ส่วน Fitness จะอยู่ที่ชั้น 8 เป็นชั้นลอยขึ้นมาจาก Facility ที่ชั้น 7

ชั้น 9 – 36 จะเป็นส่วนของห้องพักอาศัยทั้งหมด เฉลี่ยประมาณ 26 ยูนิตต่อชั้น

Roof Garden บนชั้นดาดฟ้า
พาชมห้องตัวอย่าง
แบบห้องหลักๆ ของโครงการ The Stage Taopoon Interchange มีอยู่ด้วยกัน 2 แบบ คือ 1 ห้องนอน และ 2 ห้องนอน ขนาดห้องเริ่มต้นกันที่ 26 ตร.ม. โดยประมาณ ถึงจะเป็นห้องขนาดเล็กสุดของโครงการ แต่ก็มีการจัดวาง Layout ไว้เป็นสัดส่วน เปิดประตูห้องมาก็จะเจอในส่วนของ Living Area ก่อน ถัดเข้าไปจะเป็นพื้นที่ของห้องนอน ซึ่งทางโครงการกั้นประตูกระจกเลื่อนบานใหญ่ไว้ให้เป็นสัดส่วน ส่วนอีกด้านจะเป็นพื้นที่ของห้องครัว และห้องน้ำ แน่นอนว่าในโซนนี้ก็มีประตูกระจกบานเลื่อนแยกไว้ชัดเจนอีกเหมือนกัน แต่เวลาจะเข้าห้องน้ำจะต้องเดินผ่านห้องครัวก่อนทุกครั้ง ในขณะที่ระเบียงด้านนอกก็มีพื้นที่กระทัดรัด เพียงแค่พอวางเครื่องซักผ้า กับแขวนคอมเพรสเซอร์แอร์
สำหรับห้องตัวอย่างที่ทางโครงการจัดเตรียมไว้ให้ชมกัน จะเป็นห้องขนาด 33.2 ตร.ม. ซึ่งเป็นห้องแบบ 1 ห้องนอน Layout ของห้องนี้จัดมาได้ค่อนข้างน่าสนใจแปลกตา เปิดห้องมาเราจะเจอ Living Area ที่ค่อนข้างกว้างขวางดีทีเดียว พอวางชุดโซฟาไปแล้ว ก็ยังมีที่เหลือสำหรับโต๊ะกินข้าวได้อีกชุด ในห้องตัวอย่างจึงจัดวางโต๊ะกินข้าวไว้ชิดผนังด้านที่ติดกับห้องครัวให้เห็นเป็นไอเดียด้วย การกั้นห้องจะมีลักษณะเป็นผนังทึบ ไม่ใช่ประตูกระจกบานเลื่อนอย่างห้องแบบแรก ซึ่งข้อดีของการกั้นห้องแบบนี้คือ ได้ความเป็นส่วนตัวมากกว่า ผนังของห้องครัวด้านที่ติดกับพื้นที่นั่งเล่น ถูกเจาะช่องติดกระจกบานใสไว้ส่วนหนึ่ง ซึ่งจะช่วยในเรื่องของการเปิดรับแสงจากธรรมชาติ แต่ในขณะเดียวกันก็อาจจะให้ความรู้สึกขาดๆ เกินๆ ไปบ้างเพราะโดยส่วนตัวไม่ค่อยชินกับการออกแบบลักษณะนี้จริงๆ ครับ พื้นที่ห้องครัวจัดไว้เป็นสัดส่วนดี ทั้งประตูบานเลื่อนที่ช่วยป้องกันปัญหากลิ่นรบกวน และประตูระเบียงที่ติดกับห้องครัวก็ช่วยในเรื่องการระบายกลิ่นได้อีกทาง ในขณะที่พื้นที่ของห้องนอนจะจัดสรรพื้นที่ใช้สอยมาได้ค่อนข้างดีทีเดียว เปิดประตูบานสวิงเข้าไป เตียงนอนจะอยู่ใกล้หน้าต่างที่เป็นกระจกเข้ามุม เปิดรับแสงและวิวได้เต็มที่มากๆ อีกด้านเป็นพื้นที่ของห้องน้ำ และโซนแต่งตัวหน้าห้องน้ำที่ดูแล้วลงตัวดีครับ

แบบห้อง Type A 1 ห้องนอน ขนาด 33.20 ตารางเมตร


เมื่อเข้ามาจะเจอกับส่วน Living Area ก่อนเลยนะครับ อย่างที่บอกว่า Living Area ที่นี่ค่อนข้างจะกว้างทีเดียว

ระยะห่างระหว่างทีวีกับโซฟาอยู่ราวๆ 3 เมตร สามารถตั้งทีวีจอใหญ่ได้สบายๆ เลยครับ

โต๊ะทานอาหารขนาด 2 ท่าน ทางโครงการจัดวางไว้ข้างๆ โซฟา ในส่วน Living Area ติดกับผนังครัวที่ทำเป็นช่องกระจกมองเข้าไปเห็นในครัวได้

วางโซฟาขนาด 2 ที่นั่ง อาจจะดูเล็กไปหน่อยนะครับ เพราะต้องเผื่อพื้นที่ให้ดต๊ะทานอาหาร

ชั้นวางทีวีที่โครงการ Built-in มาให้ดู ดูจากระยะห่างแล้ว คงจะต้องใช้ทีวีจอใหญ่หน่อยครับถึงจะได้อรรถรส

เลยเข้ามาด้านใน จะเป็นส่วนครัว

ครัวจะเป็นแบบปิดนะครับ กั้นด้วยประตูกระจกบานเลื่อน

เคาน์เตอร์ครัวจะหน้าตาแบบนี้นะครับ มีช่องวางไมโครเวฟด้านล่าง แต่จะไม่ได้กระจกติดผนังกันเปื้อนแบบในภาพนะครับ

เคาน์เตอร์ครัวจะมีซิงค์ล้างจานแบบฝังอยู่ทางขวามือ ทางซ้ายจะเป็นเตาไฟฟ้า ด้านล่างจะเป็นช่องวางไมโครเวฟและตู้เก็บของ

ซิงค์ล้างจาน

เตาไฟฟ้า 2 หัว ของ Teka

มารพ้อมฮูดดูดควันยี่ห้อเดียวกัน

ระเบียงจะอยู่ติดกับครัวเลยนะครับ จะกั้นด้วยประตูกระจกบานเลื่อน

รางและขอบประตูกระจกเป็นอลูมิเนียมสีดำ

ขนาดของระเบียงก็จะกว้างประมาณนี้นะครับ จุดที่วางเครื่องซักผ้าอยู่ที่ระเบียง

คอมเพรสเซอร์แอร์จะอยู่เหนือเครื่องซักผ้า หันหน้าออกนอกระเบียง

กลับเข้ามาข้างใน เราจะไปดูที่ห้องนอนกันต่อ ในห้องตัวอย่างกับแปลนห้องหัวเตียงจะสลับด้านกันนะครับ เข้าห้องนอนมาแล้วประตูจะอยู่ด้านปลายเตียง ไม่ใช่หัวเตียงเหมือนในแปลนห้อง ห้องนอนวางเตียง 5 ฟุตกำลังดีเลยนะครับ มีพื้นที่รอบๆ เตียงเหลือให้ทำอย่างอื่นได้อีก

ปลายเตียงมีที่เหลือพอให้เดินได้สะดวก แต่จะวางชั้นวางทีวีก็จะดูแคบไป ควรจะใช้ทีวีแบบแขวนผนังจะดีกว่าครับ

จะมีบานกระทุ้ง 1 บาน

ข้างเตียงด้านที่ติดกับหน้าต่างเว้นที่ไว้วางโต๊ะข้างหรือโคมไฟสวยๆ ก็โอเคนะครับ

ข้างเตียงอีกฝั่งจะเป็นโต๊ะเครื่องแป้งที่วางอยู่ติดกับตู้เสื้อผ้า

ห้องน้ำจะอยู่ในห้องนอน ติดกับตู้เสื้อผ้า

การวางสุขภัณฑ์ในห้องน้ำ

อ่างล้างหน้าของ MOGEN มีมาเฉพาะตัวอ่างนะครับ ไม่มีเคาน์เตอร์และตู้เก็บของด้านล่างให้ ทำให้แทบจะไม่มีที่วางของเลย

โถสุขภัณฑ์ก็ของ MOGEN เหมือนกันครับ มีที่แขวนทิชชู่อยู่ด้านข้าง

ส่วน Shower Box จะกั้นด้วยกระจกเทมเปอร์

ชุดฝักบัวที่ได้
ส่วนห้องแบบ 2 ห้องนอนที่ทางโครงการทำห้องตัวอย่างไว้คือ ห้องขนาด 56.1 ตร.ม. ห้องนี้มีพื้นที่กว้างขวางให้ใช้สอยได้ค่อนข้างเหลือเฟือ เปิดประตูเข้าห้องมาจะเป็นพื้นที่โซนกลางห้องที่จัดสรรเป็นส่วนพักผ่อน และมุมรับประทานอาหาร โถงกลางห้องนี้จะโล่งโปร่ง เปิดรับแสงธรรมชาติได้เป็นอย่างดี เพราะมีระเบียงอยู่ติดกับพื้นที่นั่งเล่นนั่นเอง ส่วนห้องนอนจะแยกออกเป็น 2 ฝั่ง โดยห้องนอนใหญ่จะใช้พื้นที่ด้านหนึ่งไปเต็มๆ ภายในห้องมีห้องน้ำในตัวเสร็จสรรพ พร้อมมุมแต่งตัวหน้าห้องน้ำที่สามารถจัดวางตู้เสื้อผ้าและโต๊ะเครื่องแป้งแบบ Built-in ได้อย่างลงตัว ในขณะที่อีกฟากของห้องจะเป็นห้องนอนเล็กขนาดกระทัดรัดกำลังดี อยู่ติดกับห้องน้ำเล็กที่ต้องเดินออกมาเข้าจากทางห้องนั่งเล่น ส่วนห้องครัวก็อยู่ถัดจากห้องน้ำมาทางด้านหน้าห้องครับ แน่นอนว่าห้องครัวมีประตูบานเลื่อนกั้นให้เป็นสัดส่วนเช่นกัน ห้องแบบนี้ค่อนข้างเหมาะกับครอบครัวขนาดเล็ก เพราะมีพื้นที่ใช้สอยมากขึ้น ทำให้ทุกคนมีพื้นที่ส่วนตัวเพียงพอ ในขณะที่พื้นที่ส่วนกลางห้องก็กว้างพอที่จะให้สมาชิกทำกิจกรรมต่างๆ ร่วมกันได้อีกด้วย

Type B 2 ห้องนอน ขนาด 56.10 ตารางเมตร


เข้ามาในห้องแล้วจะเจอส่วน Living Area ก่อนนะครับ แต่ก่อนจะเข้าไปถึงห้องนั่งเล่นเรามาดูส่วนที่อยู่ด้านหน้าห้องกันก่อน

ด้านซ้ายมือจะเป็นโต๊ะทานอาหารขนาด 4 ท่าน

ตู้เก็บของที่ทางโครงการ Built-in มาให้ดูอยู่หน้าห้องใกล้กับโต๊ะทานอาหาร

ถัดจากโต๊ะทานอาหารเข้าไปข้างในจะเป็นห้องนั่งเล่นที่อยู่ติดกับระเบียงห้อง

ห้องนั่งเล่นจะไม่ใหญ่มากนะครับ ระยะห่างระหว่างโซฟากับทีวีประมาณ 2 เมตร

วางโซฟาขนาด 3 ที่นั่ง จะพอดีกับผนังห้อง

ชั้นวางทีวี Built-in เล็กๆ หรือว่าจะใช้ทีวีแบบแขวนผนังก็ได้ครับ

พื้นที่ระเบียงจะกั้นด้วยประตูกระจกบานเลื่อน

คอมเพรสเซอร์แอร์หันหน้าออกนอกระเบียง

ฝั่งขวาจะเรียงกัน 3 ห้องนะครับ คือ ห้องครัว ห้องน้ำ และห้องนอนเล็ก

เริ่มจากครัวก่อน ครัวจะอยู่ด้านขวามือตรงข้ามกับโต๊ะทานอาหารจะเป็นครัวแบบปิด กั้นด้วยประตูกระจกบานเลื่อน

ในครัวอาจจะดูอึดอัดไปสักหน่อยนะครับ เพราะไม่ได้อยู่ติดระเบียงเหมือน Type A ตัวท็อปเป็นลามิเนตสีขาว

ซิงค์ล้างจานแบบฝัง

เตาไฟฟ้า 2 หัวของ Teka

ฮูดดูดควันยี่ห้อเดียวกัน

ช่องวางไมโครเวฟจะอยู่ด้านล่าง

ตู้เก็บจาน ชาม ช้อน ส้อม ด้านล่าง

ชั้นลอยเก็บของด้านบน

มาต่อที่ห้องน้ำ สุขภัณฑ์ที่ใช้และการจัดวางจะเหมือนกับ Type A

Shower Box

มาดูที่ห้องนอนเล็กต่อนะครับ ทางโครงการวางเตียงขนาด 3 ฟุตให้ดู ทำให้พื้นที่รอบๆ เตียงเหลืออยู่พอสมควร

ปลายเตียงมีเหลือให้เดินได้สบายๆ

หน้าต่างข้างเตียงจะเป็นบานฟิกและมีบานกระทุ้ง 1 บาน

อีกฝั่งจะเป็นโต๊ะเครื่องแป้งและตู้เสื้อผ้า

เราข้ามฝั่งมาดูที่ห้องนอนใหญ่กันต่อนะครับ

ห้องนอนใหญ่วางเตียงขนาด 5-6 ฟุตได้เลยครับ

ปลายเตียงมีที่เหลือให้ Built-in ชั้นวางทีวีได้เลย

หน้าต่างด้านหัวเตียงทำเป็นกระจกเข้ามุมให้ด้วยนะครับ

ข้างเตียงอีกด้านจะเป็นโต๊ะเครื่องแป้งและตู้เสื้อผ้า

ตู้เสื้อผ้าจะมีอยู่ 2 ฝั่ง หน้าห้องน้ำ

ภาพมุมกว้างของห้องนอนใหญ่ มองไปที่ห้องน้ำ

การวางสุขภัณฑ์จะคล้ายๆ ห้องน้ำห้องแรกนะครับ แต่ห้องนี้จะได้อ่างล้างหน้าที่มีที่วางของได้เยอะขึ้นหน่อย

อ่างล้างหน้าทรงสี่เหลี่ยมของ MOGEN มีที่วางของรอบๆ และใต้อ่าง

ส่วนโถสุขภัณฑ์ก็จะเหมือนเดิมครับ

Shower Box กั้นด้วยกระจกเทมเปอร์

ชุดฝักบัวที่ได้
ห้องทั้งหมดที่ทางโครงการขายมาให้เป็นห้องเปล่าๆ นะครับ ไม่มีเฟอร์นิเจอร์แถมมาให้ด้วย เว้นแต่ชุดครัว และสุขภัณฑ์ในห้องน้ำเท่านั้น นอกจากนี้ห้องจริงที่ได้ฝ้าเพดานก็สูง 2.6 เมตร แตกต่างจากระยะที่เห็นในห้องตัวอย่างนิดหน่อยครับ ใครรักชอบแบบไหนก็เลือกกันได้ตามสะดวก

Type A1L 1 ห้องนอน ขนาด 26.3 ตารางเมตร

Type A1R 1 ห้องนอน ขนาด 26.3 ตารางเมตร

Type A2R 1 ห้องนอน ขนาด 33.2 ตารางเมตร

Type B1L1 2 ห้องนอน ขนาด 56.1 ตารางเมตร

Type B1L2 2 ห้องนอน ขนาด 56.1 ตารางเมตร

Type B2 2 ห้องนอน ขนาด 61.4 ตารางเมตร
ความคุ้มค่าน่าลงทุน
ทำเลที่ตั้งของโครงการ The Stage Taopoon Interchange อยู่ในย่านที่เหมาะกับการอยู่อาศัย เพราะค่อนข้างสงบ ในขณะที่ยังอยู่ในย่านชุมชน ใกล้ตลาดสด โรงพยาบาล และโรงเรียน ซึ่งเหมาะกับคนที่กำลังมองหาที่พักอาศัยเกาะแนวรถไฟฟ้า และอยู่ไม่ห่างจากความเจริญมากนัก นอกจากนี้พื้นที่บริเวณนี้ยังมีแนวโน้มที่จะมี โอกาศเติบโตได้อีกมาก เนื่องจากห่างออกไปทางด้านเกียกกาย กำลังมีการสร้างรัฐสภาแห่งใหม่ รวมถึงสถานีรถไฟฟ้าที่ใกล้กับโครงการก็เป็นสถานี Interchange ที่เชื่อมต่อรถไฟฟ้าสายสีน้ำเงินและสีม่วงไว้ด้วยกัน ทำให้การเดินทางในอนาคตค่อนข้างสะดวกมากยิ่งขึ้นไปอีก ในขณะที่การซื้อหาห้องเพื่อการลงทุนในย่านนี้ อาจจะต้องทำการบ้านกันหนักหน่อย เพราะทำเลในแถบนี้ยังมีตัวเลือกอื่นๆ ให้เปรียบเทียบอีกมาก จึงอาจจะทำให้การปล่อยเช่าห้องมีคู่แข่งในด้านราคาเป็นจำนวนมาก ผลตอบแทนที่ได้ก็อาจจะไม่เป็นที่น่าพอใจเท่าที่ควร นักลงทุนจึงควรพิจารณาปัจจัยแวดล้อมต่างๆ ให้รอบคอบก่อนการตัดสินใจ