
เริ่มต้นกันที่บริเวณ Lobby ชั้น Ground Floor ก่อนเลยค่ะ ซึ่งก็จะแบ่งออกเป็นส่วนต้อนรับ, พื้นที่รับรอง และ Mail Box
ชื่อโครงการ : Magnolias Ratchadamri Boulevard (แมกโนเลียส์ ราชดำริ บูเลอวาร์ด) เจ้าของโครงการ : บริษัท แมกโนเลีย ควอลิตี้ ดีเวล็อปเม้นต์ คอร์ปอเรชั่น จำกัด (MQDC) ที่ตั้งโครงการ : ย่านราชประสงค์-ย่านราชดำริ พื้นที่โครงการ : 6-2-10 ไร่ ลักษณะโครงการ : High Rise จำนวนอาคาร : 1 อาคาร จำนวนชั้น : 60 ชั้น จำนวนยูนิต : 316 ยูนิต ขนาดห้อง : – 1 Bed / 48-60 ตร.ม. สิ่งอำนวยความสะดวกส่วนกลาง : – สระว่ายน้ำ ราคา : เริ่มต้น 20,000,000 บาท จุดเด่นโครงการ : คอนโดมิเนียมใจกลางของมหานครกรุงเทพ ด้วยทำเลที่ดีที่สุด ห่างจากสถานีรถไฟฟ้าราชดำริประมาณ 260 เมตร ออกแบบโดยได้แรงบันดาลใจจากกลีบดอกแมกโนเลีย ทำให้มีความโดดเด่นอ่อนช้อย สวยงาม เปิดมุมมองเพื่อชื่นชมทัศนียภาพมุมสูงของกรุงเทพได้จากทุกยูนิต บนทำเลทองพื้นสุดท้ายของถนนราชดำริ ภายในโครงการเพรียบพร้อมด้วยบริการเพื่อการพักอาศัยระดับลักชัวรี่ ระบบขนส่งสาธารณะใกล้เคียง : รถไฟฟ้า BTS สถานีราชดำริ – พระพรหมเอราวัน |

หากพูดถึงคอนโดมิเนียมระดับไฮเอนด์ เชื่อว่าภาพที่เกิดขึ้นในใจใครหลายคน คงเป็นภาพรูปแบบคอนโดที่ไม่ต่างกันมากนัก แต่แท้จริงแล้วอาคารที่มีลักษณะคล้ายกันทั้งหมดนั้น สามารถตอบโจทย์การอยู่อาศัยที่ดีแล้วหรือไม่? วันนี้เราเลยจะพาทุกคนไปหาคำตอบกันในรีวิวฉบับนี้ กับโครงการมิกซ์ยูส ระดับลักชัวรี่ “Magnolias Ratchadamri Boulevard (แมกโนเลียส์ ราชดำริ บูเลอวาร์ด)” ผลงานชิ้นโบว์แดงจาก บริษัท แมกโนเลีย ควอลิตี้ ดีเวล็อปเม้นต์ คอร์ปอเรชั่น จำกัด (MQDC) ที่สร้างปรากฏการณ์ตื่นตาตื่นใจให้แก่วงการอสังหาริมทรัพย์ของไทยไม่ใช่น้อย ทั้งในแง่ของงานดีไซน์ที่ฉีกรูปแบบคอนโดเดิมๆ ด้วยการออกแบบสไตล์โมเดิร์น โดยได้แรงบันดาลใจในรูปทรงอาคารจากกลีบดอกแมกโนเลีย ทำให้มีความโดดเด่นอ่อนช้อยสวยงาม จนกลายเป็นแลนด์มาร์คแห่งใหม่ใจกลางเมืองย่านราชดำริ
นอกจากนี้ยังนำเสนอความเป็นที่อยู่อาศัยระดับซูเปอร์ลักชัวรี่ ประกอบด้วยคอนโดมิเนียมหรู, สำนักงาน และโรงแรมวอลดอร์ฟ แอสโทเรีย กรุงเทพ (Waldorf Astoria Bangkok) แบรนด์โรงแรมระดับ 6 ดาว ในเครือฮิลตัน ที่มีสาขาอยู่ในเมืองสำคัญทั่วโลก ซึ่งมาเปิดใน South East Asia เป็นแห่งแรกในโครงการนี้ ภายใต้โจทย์ที่พักอาศัยเพื่อคุณภาพชีวิตที่ดีอย่างยั่งยืน ซึ่งก็สอดคล้องกับปรัชญาของแมกโนเลียที่ว่า “คิดและสร้างสรรค์เพื่อความยั่งยืนของมนุษย์” ได้เป็นอย่างดี

ทำเลศักยภาพใจกลางเมือง
โครงการ “แมกโนเลียส์ ราชดำริ บูเลอวาร์ด” ตั้งอยู่บนทำเลที่น่าสนใจจริงๆ ค่ะ ตัวโครงการอยู่ติดถนนราชดำริ ฝั่งมุ่งหน้าไปทางสีลม อยู่ใกล้ๆ กับโรงแรมเอราวัณและเพนินซูล่า ซึ่งเป็นทำเลที่ดีที่สุดผืนสุดท้ายของราชดำริ ห่างจากแยกราชประสงค์มาประมาณ 200 เมตร จุดเด่นของโครงการคืออยู่ใจกลางเมือง ใกล้ CBD, แหล่งงาน, สถานศึกษา และห้างสรรพสินค้าชั้นนำมากมาย อีกทั้งยังสามารถเชื่อมต่อออกไปยังที่ต่างๆ ได้สะดวก ซึ่งตอบโจทย์ลูกบ้านทั้งคนมีรถและไม่มี สำหรับการเดินทางด้วยรถยนต์ส่วนตัวจะมีจุดขึ้น-ลงทางด่วนใกล้ที่สุดอยู่ที่ถนนพระราม 4 โดยจากถนนราชดำริหน้าโครงการตรงเข้าสู่สี่แยกศาลาแดง เลี้ยวซ้ายเข้าสู่ถนนพระราม 4 อีกประมาณ 2 กิโลเมตร จะพบกับจุดขึ้น-ลงทางพิเศษเฉลิมมหานคร ไม่ว่าจะออกไปโซนกรุงเทพฯ ตะวันออก, ฝั่งธนบุรี หรือกรุงเทพฯ โซนเหนือก็สะดวกทั้งหมด ซึ่งสามารถเชื่อมต่อไปยังทางยกระดับอุตราภิมุข (โทลเวย์) และจุดขึ้น-ลงทางด่วนอีกเส้นทางหนึ่ง คือวิ่งตรงผ่านหน้าห้างสรรพสินค้า Central World จนถึงสี่แยกราชปรารภ แล้วเลี้ยวขวาเข้าสู่ถนนจตุรทิศ เพื่อขึ้นทางพิเศษศรีรัชมุ่งตรงไปเชื่อมต่อกับมอเตอร์เวย์ก็จะไปสนามบินสุวรรณภูมิได้อย่างง่ายดาย

สำหรับการเดินทางด้วยรถสาธารณะ ต้องบอกว่าสะดวกมากที่สุดแล้วค่ะ เพราะอย่างที่บอกว่าตัวโครงการตั้งอยู่ศูนย์กลางธุรกิจและการค้าในย่านราชประสงค์ ใกล้สถานที่สำคัญของกรุงเทพฯ อย่าง ศาลท่านท้าวมหาพรหม รวมทั้งแหล่งช็อปปิ้งสำคัญของกรุงเทพฯ ที่สำคัญคืออยู่ใกล้กับรถไฟฟ้า BTS ถึง 2 สาย ทั้งสายสีเขียว (สถานีชิดลม) และสายสีเขียวเข้ม (สถานีราชดำริ) แถมบริเวณหน้าโครงการก็มีวินมอเตอร์ไซค์, รถเมล์, รถแท็กซี่ผ่านไปมาให้ใช้บริการตลอดทั้งวัน ซึ่งถ้าใครเป็นสายช็อปปิ้งก็คงถูกใจเพราะพิกัดจากโครงการสามารถเดินไปขึ้น Sky Walk เพื่อไปเซ็นทรัลเวิลด์, เกษรพลาซ่า และเซ็นทรัลชิดลม ในระยะเดินเท้าได้สบายๆ หรือถัดไปอีกหน่อยก็จะเป็นสยามสแควร์ ที่มีรถไฟฟ้า BTS สถานีสยาม จุดเปลี่ยนเส้นทางระหว่างสายสุขุมวิทและสายสีลม และมีห้างสรรพสินค้าชื่อดังมากมาย อาทิ สยามพารากอน, สยามเซ็นเตอร์, สยามแสควร์วัน, สยามดิสคัฟเวอรี่ ไปจนถึงมาบุญครอง ให้เลือกจับจ่ายใช้สอยได้อย่างเพลิดเพลิน

และไม่ใช่ว่าเพียบพร้อมไปด้วยแหล่งช็อปปิ้ง สถานที่แฮงค์เอ้าท์เท่านั้นนะคะ ในส่วนของสถานศึกษา สถานพยาบาล รวมถึงสถานที่ราชการก็มีไม่น้อยเลยค่ะ ลองไล่เรียงคร่าวๆ ก็มี จุฬาลงกรณ์มหาวิทยาลัย, โรงเรียนเตรียมอุดมศึกษา, โรงเรียนมาแตร์เดอีวิทยาลัย, โรงเรียนสอนภาษา AUA และสถานทูตประเทศต่างๆ ในประเทศไทย นอกจากนี้ยังมีโรงพยาบาลตำรวจ, โรงพยาบาลบีเอ็นเอช สาขาเซ็นทรัลเวิลด์ แล้วยังมีสำนักงานตำรวจแห่งชาติ, การไฟฟ้านครหลวง สำนักงานใหญ่ เพลินจิต, ราชกรีฑาสโมสร, วัดปทุมวนารามราชวรวิหาร รวมไปจนถึงสวนสาธารณะขนาดใหญ่อย่างสวนลุมพินี และอีกมากมายจนบรรยายไม่หมดเลยค่ะ
เจาะลึกโครงการ
“แมกโนเลียส์ ราชดำริ บูเลอวาร์ด” เป็นโครงการลักชัวรี่ มิกซ์ยูส ตัวอาคารสูง 60 ชั้น บนพื้นที่ 6 ไร่ 2 งาน 70 ตารางวา ประกอบด้วยส่วนคอนโดมีเนียมระดับซูเปอร์ลักชัวรี่ (Residence), สำนักงาน และโรงแรม ในส่วนของห้องพักหรูมีจำนวนทั้งหมด 316 ยูนิต เริ่มตั้งแต่ชั้น 17 – 54 ด้วยขนาดห้องชุดตั้งแต่ 48 – 360 ตารางเมตร โดยทำเป็นสัญญาเช่า (Leasehold) ระยะเวลา 30 ปี จากที่ดินสำนักงานทรัพย์สินส่วนพระมหากษัตริย์ ซึ่งทาง MQDC ต้องการความเป็น Masterpiece ให้ได้มาตรฐานระดับสูงสุดเทียบเท่าระดับโลก ทั้งในเรื่องของเทคโนโลยีเพื่อการอยู่อาศัย รวมไปจนถึงการคัดสรรแต่วัสดุคุณภาพระดับพรีเมี่ยมมาใช้ในโครงการ ครั้งนี้จึงเหมือนเป็นการรวมตัวของเหล่าดีไซเนอร์ทั้งชาวไทยและต่างประเทศเข้าไว้ด้วยกัน เพื่อความเป็นที่สุดของโครงการหรูใจกลางเมือง ซึ่งได้ DI Design และ The Beaumont Partners Co., Ltd. บริษัทออกแบบสัญชาติไทยชื่อดังมาทำงานร่วมกัน อีกทั้งยังมีบริษัทสถาปนิกระดับโลกอย่าง atelier ten จากนิวยอร์ก เข้ามาเป็นที่ปรึกษาการออกแบบเพื่อความยั่งยืน โดยออกแบบให้ตัวอาคารมีเอกลักษณ์เฉพาะด้วยดีไซน์โค้งมนเป็นรูปกลีบดอกแมกโนเลีย ทำให้มีความโดดเด่นอ่อนช้อยสวยงามที่สุดในย่านราชดำริ ซึ่งก็มุ่งเน้นประหยัดพลังงานโดยประยุกต์แนวคิดสถาปัตยกรรมของบ้านไทย ที่เหมาะสมกับสภาพอากาศเมืองร้อนของกรุงเทพฯ โดยเฉพาะทิศทางของแสงแดด มาออกแบบเป็นส่วนชายคา หรือ Sunshade ของตัวอาคารที่ถูกคำนวณอย่างแม่นยำ และดีไซน์ให้กลายเป็นส่วนประดับอย่าง Façade โอบล้อมอาคารร่วมกับการใช้เทคโนโลยีขั้นสูงเพื่อการหมุนเวียนทรัพยากรกลับมาใช้ใหม่ได้อย่างมีประสิทธิภาพ

ในส่วนงานออกแบบ Landscape ก็ได้บริษัท Shma เข้ามาดูแล ส่วนงาน Interior นั้นทางโครงการให้บริษัท PIA ผู้มีชื่อเสียงด้านการออกแบบและมีประสบการณ์กับโครงการระดับหรูมาเป็นผู้ดูแลค่ะ ทั้งนี้โครงการ “แมกโนเลียส์ ราชดำริ บูเลอวาร์ด” จะเป็นโครงการที่พักอาศัยแห่งแรกของไทยที่กำลังจะได้รองรับมาตรฐาน LEED จากอเมริกา ซึ่งถือว่าเป็นมาตรฐานด้านการอนุรักษ์สิ่งแวดล้อมและพลังงานที่เข้มงวดที่สุดในโลก เพราะทางทีมดีไซเนอร์ได้คำนึงแสง ความร้อน อากาศ และการใช้น้ำในโครงการมาเป็นอย่างดี แถมยังเลือกใช้กระจกแบบ IGU และใช้ Sun Shading เพื่อลดความร้อนให้แก่ห้องอีกด้วยค่ะ นอกจากนี้ยังมีระบบหมุนเวียนน้ำบางส่วนที่คุณภาพดีและสามารถนำกลับมาใช้ประโยชน์ต่อได้ เช่น รดน้ำต้นไม้ ตลอดจนระบบเติมอากาศบริสุทธิ์ เพื่อใส่อากาศที่ปราศจากสารพิษเจือปนเข้าไปในโครงการ ทำให้มั่นใจได้เลยค่ะว่านอกจากความสวยหรู และการเดินทางที่สะดวกสบายแล้ว ผู้อยู่อาศัยจะได้คุณภาพชีวิตที่ดีในระยะยาวแน่นอน

ในส่วนของพื้นที่ส่วนกลางทางโครงการก็จัดเต็มแบบสุดๆ เรียกว่าครบครันมากทีเดียวค่ะ ซึ่งคอนเซ็ปต์ของพื้นที่ส่วนกลางถูกออกแบบโดยหลอมรวมความต้องการใช้ชีวิตแบบสังคมเข้ากับความเป็นส่วนตัว สู่รูปแบบของ Facility ที่มีทั้งฟังก์ชั่นการใช้งานร่วมกัน และแยกเป็นส่วนตัว เริ่มจากชั้น 1 เป็นพื้นที่ของเอ็กซ์คลูซีฟล็อบบี้, ห้องจดหมายและตู้ไปรษณีย์ ในส่วนของที่จอดรถก็สามารถจอดได้มากถึง 100% สำหรับ Facility บนอาคารจะอยู่ที่ชั้น 5 และชั้น 10 ประกอบด้วย ห้องสมุดพร้อมวิวสวนโค้งเล่นระดับที่ทางโครงการนำความเขียวขจีของธรรมชาติเข้าไปใส่ไว้ , ศูนย์ฟิตเนสและลู่วิ่งออกกำลังกายริมสวนแนวลาด, ห้องประชุม ห้องพบปะสังสรรค์, สระว่ายน้ำพร้อมสระเด็ก และส่วนจากุชชี่, ห้องอบไอน้ำและซาวน่า, ห้องเปลี่ยนเสื้อผ้าพร้อมล็อกเกอร์, สำนักงานผู้อำนวยการประจำเรสซิเดนซ์ นอกจากนี้ยังมาพร้อมกับระบบรักษาความปลอดภัยตลอด 24 ชม. และยังมีกุญแจรีโมทนิรภัย สำหรับเปิดประตูและควบคุมลิฟท์อีกด้วย

เริ่มต้นกันที่บริเวณ Lobby ชั้น Ground Floor ก่อนเลยค่ะ ซึ่งก็จะแบ่งออกเป็นส่วนต้อนรับ, พื้นที่รับรอง และ Mail Box


พื้นที่ด้านหนึ่งของโถง Lobby จะเป็นส่วน Mail Box นะคะ

มาในส่วนของโถงลิฟท์โดยสารกันบ้างค่ะ ซึ่งมีให้บริการลูกบ้านถึง 4 ตัว ทั้งยังดูหรูหรากว่าคอนโดฯ ทั่วไป ด้วยการประดับตกแต่งด้วยหินอ่อน

บรรยากาศภายในห้องสมุดค่ะ

ภายในห้องดูสูงโปร่ง โอบล้อมด้วยกระจกใส วิวบริเวณข้างห้องสมุดเป็นสวนนะคะ ข้อดีของการมีสวนอยู่ใกล้ๆ ทำให้เวลาอ่านหนังสือสามารถพักสายตามองต้นไม้สีเขียวขจีได้

จากบริเวณห้องสมุดมองออกไปจะเห็นพื้นที่สวนเล่นระดับด้วยนะคะ

พื้นที่สวนขั้นบันไดที่ลูกบ้านสามารถมานั่งเล่นชิลล์ๆ ได้อย่างสบายใจ

บันไดวนขึ้นไปยังส่วนของสระว่ายน้ำและฟิตเนสนะคะ

เมื่อเดินไต่บันไดขึ้นมาจะพบกับลานกว้างๆ

สระว่ายน้ำระบบเกลือขนาดใหญ่ภายใต้บรรยากาศร่มรื่นของพรรณไม้


นอกจากจะมีสระว่ายน้ำสำหรับเด็กแล้วยังมีส่วนของ Jacuzzi ด้วยนะคะ

พื้นที่ติดกับสระว่ายน้ำจะเป็นสวนแบบขั้นบันไดนะคะ ซึ่งลูกบ้านสามารถมองวิวเมืองรอบด้านได้อย่างจุใจ

เดินต่อเนื่องไปยังห้อง Fitness นะคะ ภายในห้องโอบล้อมด้วยกระจกใส ให้ลูกบ้านสามารถออกกำลังกายไปด้วยชมวิวไปด้วยได้อย่างเพลิดเพลิน


ภายในห้องฟิตเนสเต็มไปด้วยอุปกรณ์และเครื่องออกกำลังกายอย่างครบครันเลยนะคะ

กลับมาในส่วนของห้องอบไอน้ำและซาวน่า ที่มาพร้อมห้องเปลี่ยนเสื้อผ้าพร้อมล็อกเกอร์ แยกฝั่งชาย-หญิงด้วยนะคะ

บรรยากาศด้านหน้าห้องอบไอน้ำและซาวน่า

ต่อเนื่องมายังห้อง KID’S ROOM ที่ออกแบบมาสำหรับรองรับสมาชิกตัวน้อยในครอบครัวของลูกบ้าน
เปิดแบบห้อง Magnolias Ratchadamri Boulevard
สำหรับห้องพักอาศัยของโครงการ “แมกโนเลียส์ ราชดำริ บูเลอวาร์ด” มีทั้งหมด 316 ยูนิตนะคะ ซึ่งมีแบบห้องพักหรูให้เลือกด้วยกันถึง 4 แบบ ตั้งแต่ 1 Bedroom ขนาด 48-60 ตารางเมตร จำนวน 88 ยูนิต, 2 Bedroom ขนาดตั้งแต่ 72-106 ตารางเมตร จำนวน 220 ยูนิต, Penthouse ขนาดตั้งแต่ 209-300 ตารางเมตร จำนวน 2 ยูนิต และ Duplex Penthouse ขนาดตั้งแต่ 250-360 ตารางเมตร จำนวน 6 ยูนิต ปัจจุบันตัวโครงการสร้างเสร็จพร้อมอยู่แล้วนะคะ เริ่มมีลูกบ้านบางส่วนทยอยโอนห้องกันเรียบร้อยแล้ว แต่ก็ยังพอมียูนิตเหลืออีกนิดหน่อย ซึ่งเราจะพาไปชมห้องตัวอย่างกันในครั้งนี้ นั่นคือห้อง 2 Bedroom ขนาด 89.47 และ 92.38 ตารางเมตรค่ะ โดยจะแตกต่างกันที่การจัดวาง Layout และวิวเท่านั้นค่ะ แต่ภายในห้องจะตกแต่งมาให้เสร็จสรรพแล้ว หากลูกบ้านเลือกห้องที่มีเฟอร์นิเจอร์รวมมาด้วย ทางโครงการจะเลือกใช้เฟอร์นิเจอร์จากแบรนด์ Olivia Living, Sonder Living, CHANINTR และ Classic Chair เหมือนดั่งห้องตัวอย่างที่เราเก็บมาฝากกันวันนี้
ภายในห้องแต่ละยูนิตมีจุดเด่นคือฟังก์ชั่นที่เป็นสัดส่วน ถูกออกแบบและตกแต่งอย่างพิถีพิถันในสไตล์โมเดิร์นคลาสสิกที่เรียบหรู แต่ยังคงงดงาม แถมยังคัดสรรและเลือกใช้แต่วัสดุคุณภาพแบรนด์ระดับโลก ดีไซน์ให้พื้นที่ส่วนครัวกว้างขวางติดตั้งชุดครัว Bulthaup แบรนด์หรูจากเยอรมนี ในทุกยูนิต อีกทั้งยังผสมผสานห้องครัวและพื้นที่ใช้สอยไว้ด้วยกันอย่างลงตัว ซึ่งก็ตอบสนองไลฟ์สไตล์ของผู้อยู่อาศัยได้เป็นอย่างดี ขณะเดียวกันห้องน้ำก็ใช้แต่เครื่องสุขภัณฑ์ชั้นนำเช่นเดียวกับที่พักอาศัยระดับไฮเอนด์ทั่วโลก แถมยังสั่งทำอ่างอาบน้ำขนาดพิเศษแบรนด์ KASCH มาใช้ในโครงการด้วย ไม่รอช้า.. เราไปเปิดประตูดู Layout ของแต่ละห้องไปพร้อมๆ กันเลยดีกว่าค่ะ

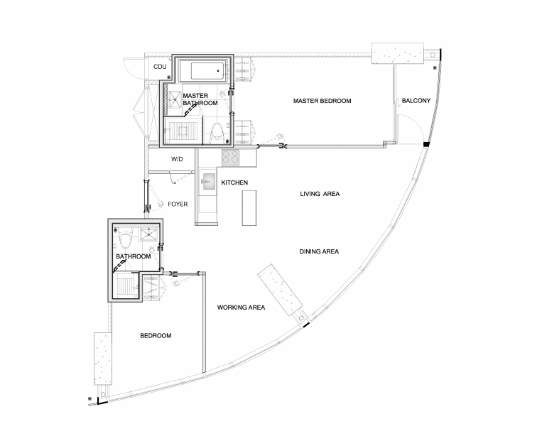
แปลนห้อง 2 Bedroom ขนาด 89.47 ตารางเมตร

ประตูจะเป็นแบบ Digital Door Lock นะคะ

เปิดประตูเข้ามาเจอห้องน้ำ และห้องนอนเล็กก่อนต่อเนื่องไปยังโถงกลางนะคะ ซึ่งภายในห้องนี้ทางโครงการตกแต่งด้วยเฟอร์นิเจอร์ของ Olivia Living ไว้เป็นตัวอย่างทั้งหมด

เรามาดูห้องน้ำกันก่อนดีกว่าค่ะ ภายในห้องน้ำแบ่งพื้นที่เปียกและแห้งอย่างชัดเจน

ทางโครงการจัดวางสุขภัณฑ์จากส่วนแห้งเรียงเข้าไปยังส่วนเปียก โดยใช้สุขภัณฑ์คุณภาพระดับพรีเมี่ยมทั้งหมด

จากภาพจะเห็นว่าส่วนเปียกจะมีบานกระจกกั้นพร้อมยกธรณีสูงขึ้นเล็กน้อยเพื่อกันน้ำกระเด็นมาส่วนแห้ง ซึ่งที่พื้นด้านในจะเซาะร่องไว้สำหรับกันลื่นด้วยนะคะ

ออกจากห้องน้ำมาต่อกันที่ห้องนอนเล็กนะคะ ภายในห้องมีขนาดกระทัดรัด เหมาะสำหรับวางเตียงนอนขนาด 5 ฟุต

นอกจากโอบล้อมด้วยหน้าต่างกระจกใสบานใหญ่ บริเวณรอบๆ เตียงยังมีพื้นที่เหลือให้เดินได้ แถมผนังปลายเตียงยังสามารถติดทีวีเพิ่มโดยไม่รู้สึกคับแคบด้วยค่ะ

กระจกห้องนอนเป็นบานใหญ่มาก สูง 3 เมตรไม่มีอะไรมาบังสายตาเลยนะคะ

ผนังฝั่งที่ติดกับประตู จะเป็นตู้เสื้อผ้าบิลต์อินสูงจรดเพดานที่ได้มาพร้อมกับห้องเลยนะคะ

กลับเข้ามาบริเวณโถงกลางจะเป็นส่วนของมุมทำงาน มุมรับประทานอาหาร มุมนั่งเล่น และครัวเชื่อมต่อถึงกันทั้งหมด

มุมทำงานที่ค่อนข้างเป็นส่วนตัวทีเดียวเลยนะคะ

ต่อเนื่องมายังส่วนครัวถูกจัดให้อยู่ชิดริมผนังฝั่งทางเดิน ตรงข้ามกับมุมนั่งเล่นนะคะ

ครัวจัดฟังก์ชั่นเป็นตัวแอล (L) มาพร้อมไอส์แลนด์ตรงกลางสำหรับเตรียมอาหาร

ระยะห่างระหว่างเคาน์เตอร์กับไอส์แลนด์มีขนาดกำลังดีเลยนะคะ สามารถเดินได้โดยรอบสบายๆ

สำหรับชุดครัวจะเป็นแบรนด์ bulthaup นำเข้าจากต่างประเทศ ซึ่งมาพร้อมเตาไฟฟ้า, เครื่องดูดควัน

สำหรับอ่างล้างจานจะเป็นแบรนด์ FRANKE นะคะ ซึ่งก็เป็นแบรนด์คุณภาพที่นำเข้ามาจากต่างประเทศเช่นกัน

พื้นที่ติดกับครัวจะเป็นมุมนั่งเล่นนะคะ ซึ่งสามารถวางคอนโซลทีวี โซฟาตัวยาว พร้อมโต๊ะกลางได้สบายๆ

สำหรับมุมรับประทานอาหารจะเชื่อมต่อกับมุมนั่งเล่นเลยนะคะ

พื้นที่โถงกลางสามารถวางโต๊ะรับประทานอาหารขนาด 3-4 ที่นั่งได้สบายๆ เลยนะคะ

มาที่ห้องนอนใหญ่กันบ้าง ภายในห้องนอนจะโอบล้อมด้วยหน้าต่างกระจกใสบานใหญ่นะคะ ซึ่งเป็นประตูบานเลื่อนทั้ง 2 ข้าง สามารถเปิดไปรับลมที่ระเบียงได้

พื้นที่ภายในค่อนข้างกว้างทีเดียวค่ะ เพราะบริเวณรอบๆ เตียงมีพื้นที่เหลือเพียงพอสำหรับวางโต๊ะข้างเตียงด้วย ยิ่งถ้าใครที่ชอบดูทีวีก็สามารถติดตั้งไว้ที่ผนังปลายเตียงได้โดยไม่รู้สึกอึดอัดเลยค่ะ

จากระเบียงก็จะมองเห็น City view ประมาณนี้

มุมมองจากระเบียงกลับไปในห้องนอนใหญ่ ผนังหน้าห้องน้ำถูกบิลต์อินให้เป็นตู้เสื้อผ้าทั้งสองฝั่งเลยนะคะ

ภายในห้องน้ำแบ่งพื้นที่เปียกและแห้งอย่างชัดเจน ซึ่งรูปแบบจัดวางจะต่างกับห้องน้ำด้านนอก

ห้องน้ำในห้องนอนใหญ่จะมีอ่างอาบน้ำแบรนด์ KASCH ที่สั่งทำขึ้นมาพิเศษด้วยนะคะ
ห้องตัวอย่างต่อมาที่เราเก็บภาพมาฝากเพื่อประกอบการพิจารณาเป็นห้อง 2 Bedroom ขนาด 92.38 ตร.ม. จะต่างจากห้อง 1 Bedroom แบบแรกทั้งเรื่องขนาดพื้นที่ใช้สอย และ Layout เลยนะคะ ห้องนี้เมื่อเปิดประตูเข้ามาจะมีโถงกลางขนาดใหญ่ที่เป็นพื้นที่ครัวแบบเปิดเชื่อมต่อกับมุมรับประทานอาหารและพื้นที่นั่งเล่น ส่วนห้องนอนจะถูกแบ่งออกไปทางฝั่งขวา โดยห้องนอนเล็กจะใช้ห้องน้ำร่วมกับห้องโถงกลาง ส่วนห้องนอนใหญ่จะมีห้องน้ำให้ในตัวค่ะ

แปลนห้อง 2 Bedroom ขนาด 92.38 ตารางเมตร

สำหรับห้องนี้ เมื่อเปิดประตู Digital Door lock เข้ามาในห้องจะเจอส่วนนั่งเล่นและมุมรับประทานอาหารที่อยู่ติดริมระเบียงก่อนเลยนะคะ

ภายในห้องนี้ทางโครงการตกแต่งด้วยเฟอร์นิเจอร์ของ Olivia Living ไว้เป็นตัวอย่างทั้งหมดเช่นเดียวกับห้องตัวอย่างแรกค่ะ

ความแตกต่างนอกจาก Layout และขนาดห้องแล้ว ก็จะเป็นส่วนของวิวนี่แหละค่ะ โดยห้องนี้จะเป็นห้องที่ได้วิวฝั่งเซ็นทรัลเวิลด์

พื้นที่ฝั่งตรงข้ามโต๊ะรับประทานอาหารจะเป็นส่วนครัวนะคะ

ครัวจัดฟังก์ชั่นเป็นรูปตัวแอล (L) จะได้วัสดุเหมือนในห้องตัวอย่างห้องแรกเลยนะคะ มีแตกต่างนิดหน่อยที่ขนาดและตำแหน่งของไอส์แลนด์

พื้นที่รับประทานอาหารที่อยู่ติดกับห้องครัวจะเป็นระเบียงนะคะ ซึ่งข้อดีของระเบียงที่ติดกับมุมนี้คือช่วยระบายอากาศเวลารับประทานอาหารที่มีกลิ่นได้ดี

พื้นที่ต่อเนื่องจากครัวเข้าไปข้างในจะเป็นห้องนอนและห้องน้ำนะคะ

เรามาเริ่มที่ฝั่งขวามือที่เป็นห้องน้ำก่อนดีกว่าค่ะ ภายในห้องน้ำจะตกแต่งด้วยหินอ่อนเป็นส่วนใหญ่ โทนสีที่นำมาใช้ดูสะอาดตาและเลือกคู่สีได้ค่อนข้างดีเลยค่ะ การวางฟังก์ชันโดยรวมใช้งานได้ดีทุกส่วน

พื้นที่ตรงข้ามกับเคาน์เตอร์ล้างหน้าจะเป็นส่วนเปียกนะคะ ผนังฝั่งหนึ่งใน Shower Area จะถูกตกแต่งให้สวยงามด้วยด้วยหินอ่อน

ตรงข้ามกับห้องน้ำจะเป็นห้องนอนเล็กนะคะ ภายในห้องโอบล้อมด้วยหน้าต่างกระจกใส ทำให้มีแสงสว่างสาดส่องเข้ามามากพอ ไม่ต้องพึ่งแสงประดิษฐ์ในเวลากลางวัน

ภายในห้องนอนเล็กเมื่อวางเตียงขนาด 5 ฟุตแล้วยังเหลือพื้นที่ปลายเตียง ซึ่งสามารถเดินผ่านได้สบายๆ เลยค่ะ หากใครชอบดูทีวีก็สามารถติดตั้งที่ผนังปลายเตียงเพิ่มได้ด้วย พื้นที่ติดกับประตูจะเป็นตู้เสื้อผ้าบิลต์อินสูงจรดเพดานเลยนะคะ

ออกมาจากห้องนอนเล็ก เดินตรงเข้ามาที่ห้องนอนใหญ่กันบ้างดีกว่าค่ะ ภายในห้องนอนแบ่งออกเป็น 2 ฝั่งนะคะ คือโซนพักผ่อน และโซนแต่งตัวที่อยู่ติดกับห้องน้ำ

ในส่วนของพื้นที่พักผ่อนจะโอบล้อมด้วยหน้าต่างกระจกใสนะคะ ซึ่งทางโครงการจัดวางเตียงนอนขนาด 6 ฟุตไว้ให้ดูเป็นตัวอย่าง โดยเหลือพื้นที่เดินโดยรอบด้วยค่ะ

นอกจากเหลือพื้นที่ให้เดินได้โดยรอบแล้ว ยังมีพื้นที่สำหรับวางโต๊ะข้างเตียงด้วยค่ะ

ฝั่งตรงข้ามกับเตียงนอน จะเป็นตู้เสื้อผ้าและโต๊ะเครื่องแป้งที่อยู่ติดห้องน้ำนะคะ

ภายในห้องน้ำใช้วัสดุและสุขภัณฑ์เหมือนๆ กับห้องน้ำด้านนอก จะต่างกันแค่เพิ่มอ่างอาบน้ำแบรนด์ KASCH ที่ทางโครงการสั่งทำขึ้นมาเป็นพิเศษ

วัสดุอุปกรณ์ในห้องน้ำจะได้อ่างล้างหน้า มาพร้อมกับตู้ลอยที่มีหน้าบานเปิด-ปิดสำหรับเก็บของนะคะ ซึ่งห้องจริงที่ส่งมอบให้ลูกบ้านก็จะได้แบบนี้เลยนะคะ
ด้วยทำเล Prime Location ของกรุงเทพฯ ริมถนนราชดำริ ย่านธุรกิจสำคัญของเมืองไทยและแหล่งรวมไลฟ์สไตล์ที่เหนือระดับที่เพียบพร้อมแบบนี้โครงการ “แมกโนเลียส์ ราชดำริ บูเลอวาร์ด” จึงเป็นอีกหนึ่งโครงการหรูที่ถูกจับตามองมากที่สุดโครงการหนึ่ง อย่างที่แจ้งไปแล้วว่าทางโครงการจะขายห้องมาให้แบบ Fully Fitted ดังนั้นในห้องมาตรฐานก็จะมี ชุดครัวแบรนด์ bulthaup ที่มาพร้อมเตาไฟฟ้า, เครื่องดูดควัน, อ่างล้างจาน FRANKE รวมถึงสุขภัณฑ์ในห้องน้ำก็ยังเป็นแบรนด์นำเข้ามาเหมือนกันเกือบทุกรายการค่ะ อาทิ ก๊อกน้ำ Dornbracht และอ่างอาบน้ำ KASCH เป็นต้น ซึ่งทาง MQDC ประกาศราคาเริ่มต้นมาที่ 20 ล้านบาท โดยมีราคาเฉลี่ย ณ ปัจจุบันประมาณ 280,000 บาท/ตร.ม. ถ้าเทียบกับคอนโดมิเนียม Luxury ในระดับเดียวกันแล้ว ถือว่าเป็นอีกหนึ่งตัวเลือกที่น่าสนใจและคุ้มค่าแก่การลงทุนมากเลยนะคะ เพราะแนวโน้มในการเติบโตของทำเลค่อนข้างดีในอนาคต ไม่ว่าจะซื้อไว้อยู่อาศัยเองหรือเก็งกำไรยังไงก็คุ้มแน่นอน..
ใครที่ไม่ติดเรื่องกำลังทรัพย์และกำลังมองหาคอนโดหรูที่เพียบพร้อมไปด้วยความสะดวกสบายทุกอย่างแบบนี้ แนะนำให้แวะเข้าไปเยี่ยมชมที่โครงการดูบรรยากาศจริงกันก่อนเลยค่ะ สอบถามรายละเอียดเพิ่มเติมได้ที่ โทร. 083-095-5054 หรือ www.magnolias-ratchadamri.com